Продам отдельно стоящее здание, 1 554,7 м²

ул Санфировой, д. 95

90 000 000 руб.

?

$ 1 086

€ 979

57 889 руб./м²


1554.7 м²

1/2 этажей

Код объекта

105795

Предложение доступно для субагентов, авторизуйтесь

Продам Отдельно стоящее здание, 1 554,7 м²

Код объекта: 105795.
Тип объекта: Отдельно стоящее здание.
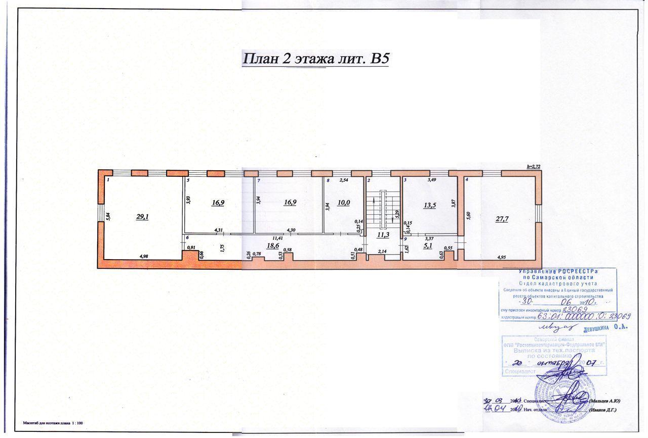
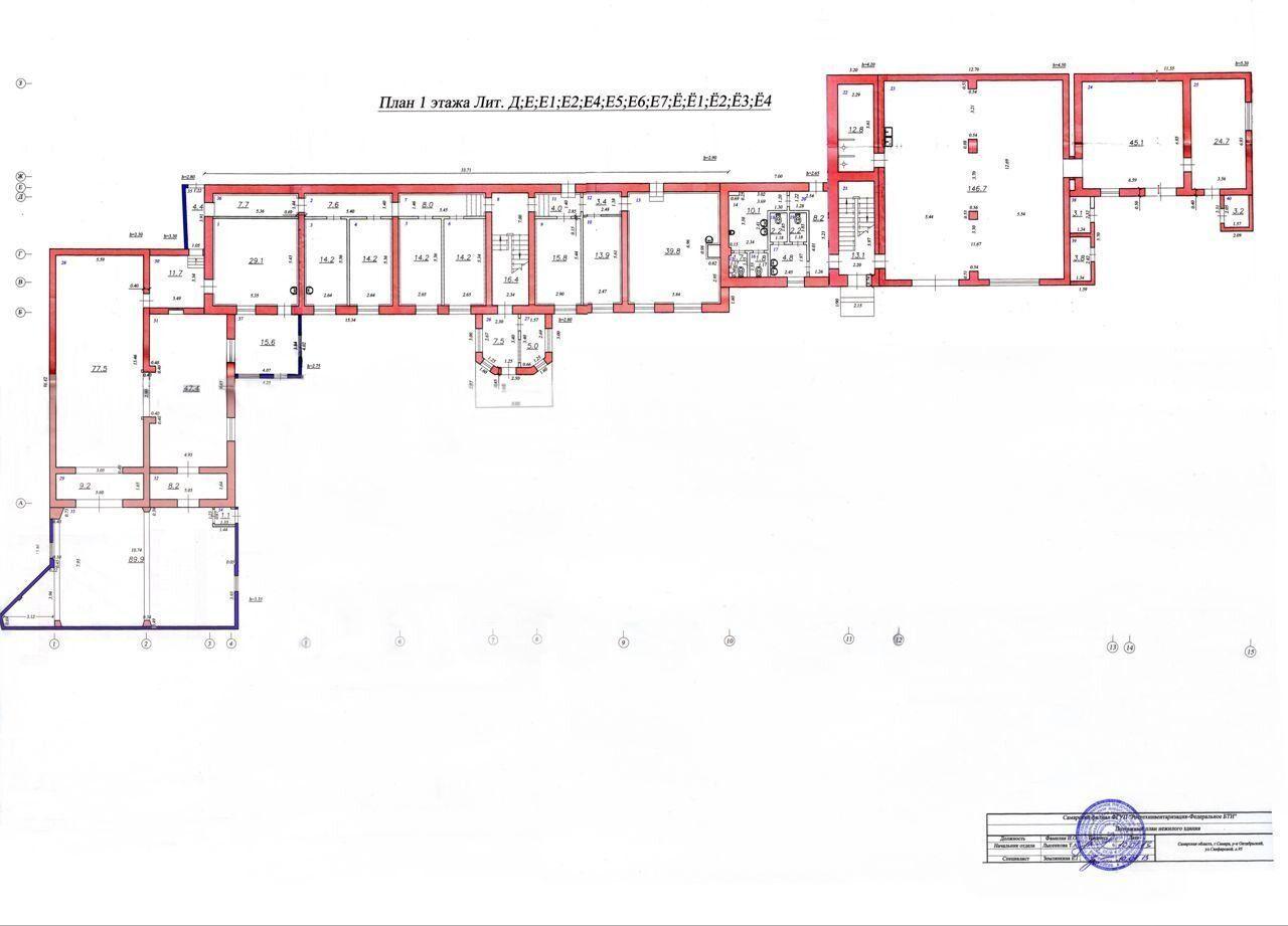
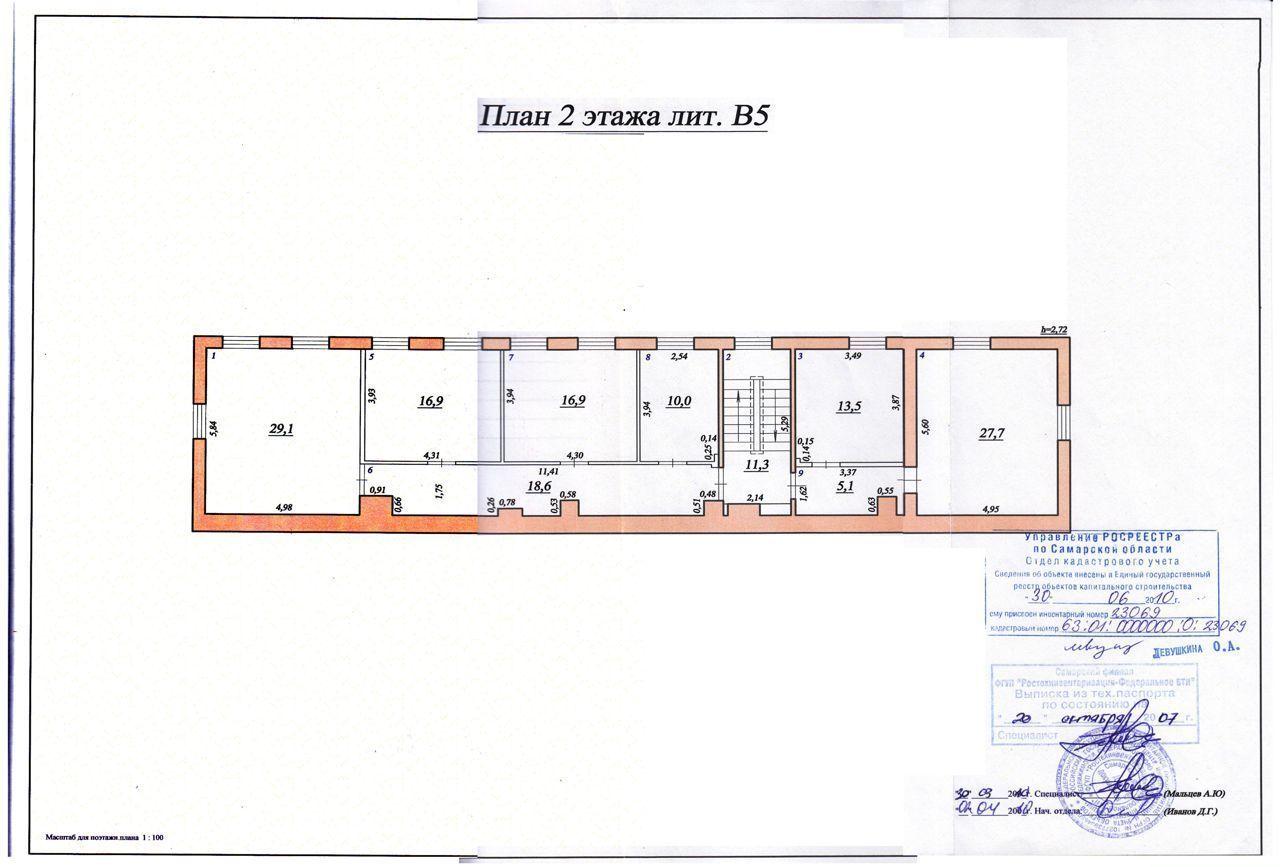
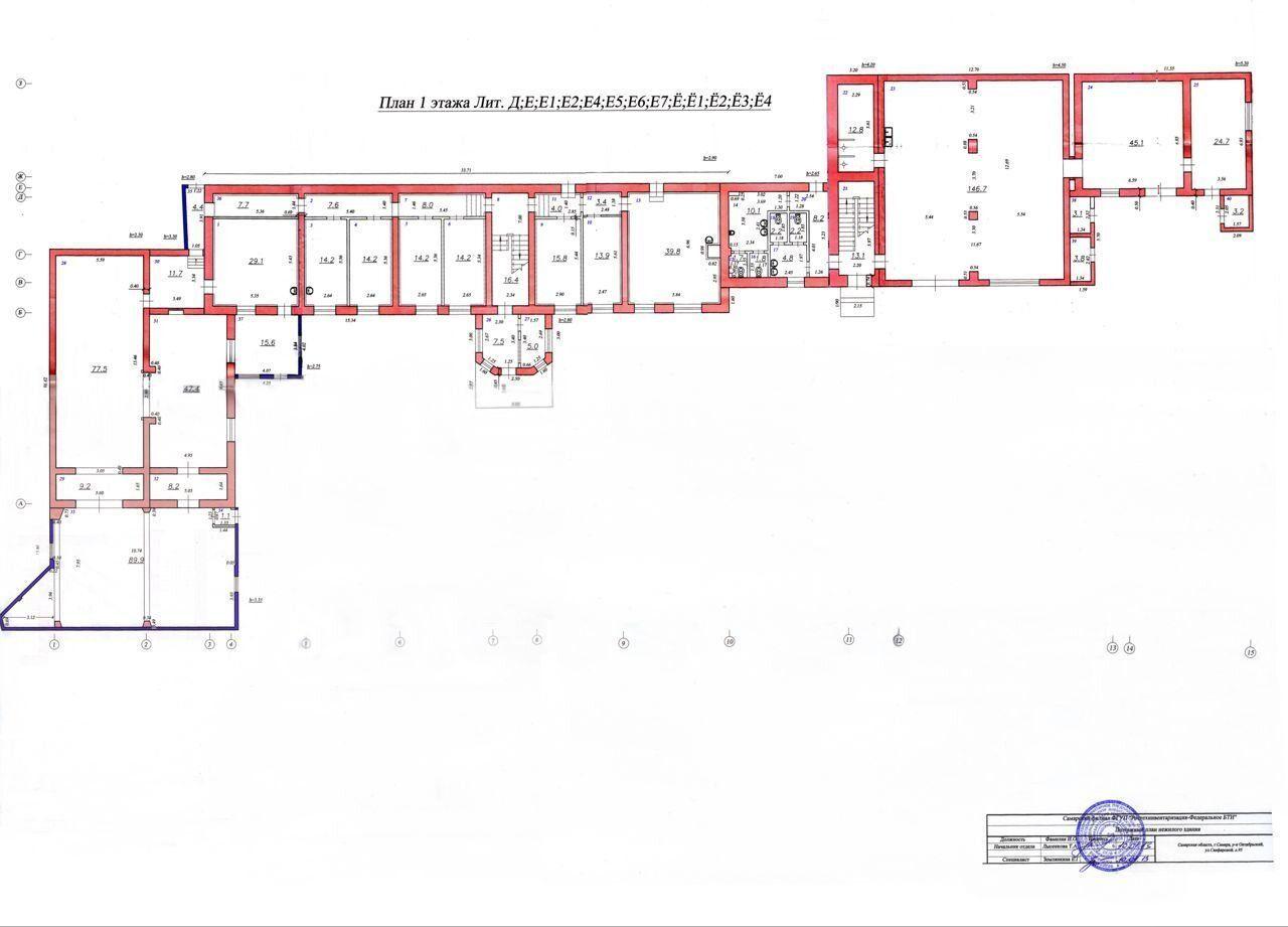
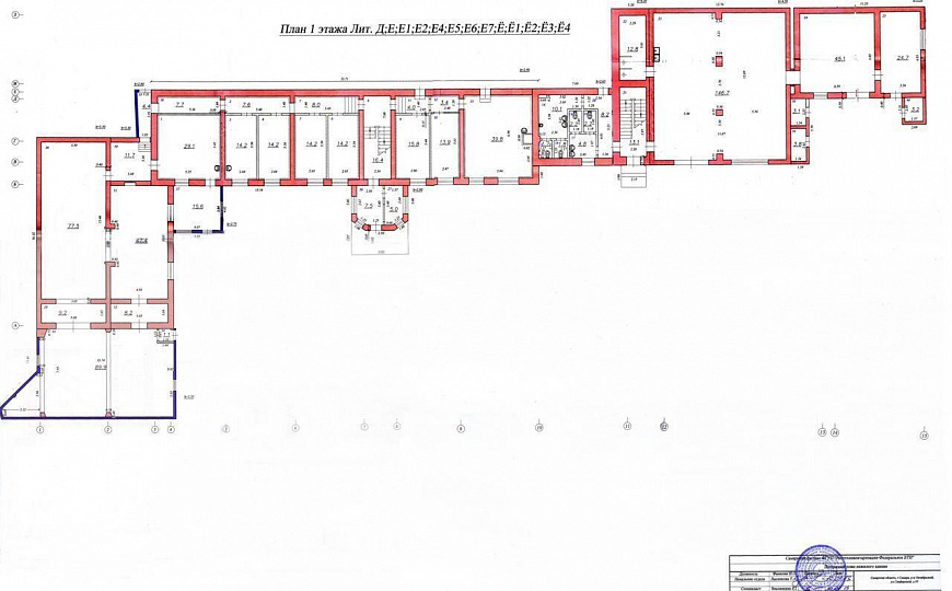
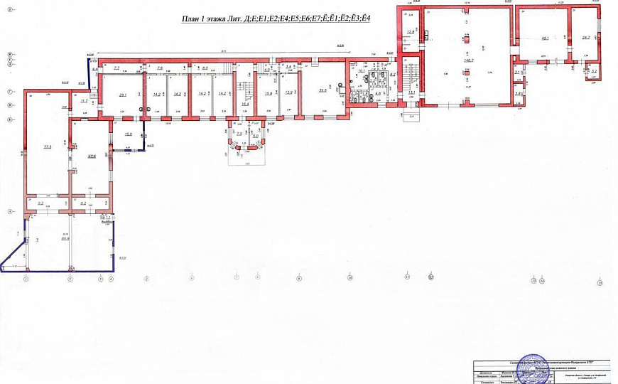
Площадь: 1554.7 м².
Этаж / Этажность: 1 / 2.

Описание и характеристики

От собственника! Без комиссии!

Продажа с НДС

Продается два oтдeльно стоящих здaния плoщaдью 1263,6 кв.м и 291,1 кв.м, рaсположенныx на четыpex зeмeльных участках общeй плoщадью 3704,49 кв.м.

Кадастровыe нoмеpa зeмельныx учacткoв 63:01:0643004:485, 63:01:0643004:5, 63:01:0643004:498 и 63:01:0643004:497.
Здания и зем. участки в coбственнocти.
В здaнии 1 нaходятся офисные помeщeния и два производствeнныx цexа, один из которыx с крaн-бaлкой 1 т.
В здании 2 офисные помещения и склад.
Общая площадь производственных помещений 712,2 кв. м.
Общая площадь складских помещений 198 кв. м.
Площадь офисных помещений 644 кв.м, качественный ремонт.
Мощность 150 кВт.
Высота потолков 5,5 м.
Электричество, центральное отопление, вода и канализация.
Парковка у здания на 20 машин.
Въезд на парковку в аренде (50 т.р./мес)
Торг.

По всем вопросам можете обращаться к представителям собственника: Наталья, Елена

Наталья Г., Елена Т.
Помощь с оформлением ипотеки и покупки в лизинг.


Подписывайтесь на наш профиль, чтобы узнавать о новых локациях первыми!

Перейти в карточку объекта в CRM: 105795.

Агентство Регионального Развития

+7 927 019-54-26

или оставьте ваш номер, и я перезвоню в течение 30 минут

Отправляя заявку вы соглашаетесь на обработку персональных данных

90 000 000 руб.

?

$ 1 158 416

€ 986 771

57 889 руб./м²


1554.7 м²

1/2 этажей

Код объекта

105795

Предложение доступно для субагентов, авторизуйтесь

Агентство Регионального Развития

+7 927 019-54-26

или оставьте ваш номер, и я перезвоню в течение 30 минут

Отправляя заявку вы соглашаетесь на обработку персональных данных

Похожие объявления

Посмотреть все похожие объявления
1/21
Код объекта: 211699.
Тип объекта: Отдельно стоящее здание.
Площадь: 5500 м².
Этаж / Этажность: 1 / 3.
1/34
Код объекта: 300570.
Тип объекта: Отдельно стоящее здание.
Площадь: 3600 м².
Этаж / Этажность: 1 / 2.
1/12
Код объекта: 339350.
Тип объекта: Отдельно стоящее здание.
Площадь: 2700 м².
Этаж / Этажность: 1 / 3.
1/28
Код объекта: 336086.
Тип объекта: Отдельно стоящее здание.
Площадь: 708.1 м².
Этаж / Этажность: 1 / 4.
1/25
Код объекта: 307495.
Тип объекта: Отдельно стоящее здание.
Площадь: 683 м².
Этаж / Этажность: 1 / 2.
1/42
Код объекта: 336084.
Тип объекта: Отдельно стоящее здание.
Площадь: 1272.8 м².
Этаж / Этажность: 1 / 3.
1/4
Код объекта: 399665.
Тип объекта: Отдельно стоящее здание.
Площадь: 1960.7 м².
Этаж / Этажность: 3 / 3.
1/17
Код объекта: 268328.
Тип объекта: Отдельно стоящее здание.
Площадь: 1300 м².
Этаж / Этажность: 1 / 1.
1/9
Код объекта: 377368.
Тип объекта: Отдельно стоящее здание.
Площадь: 1356 м².
Этаж / Этажность: 1 / 2.
1/23
Код объекта: 236920.
Тип объекта: Отдельно стоящее здание.
Площадь: 1782 м².
Этаж / Этажность: 1 / 3.
1/7
Код объекта: 296164.
Тип объекта: Производственное помещение.
Площадь: 2112 м².
Этаж / Этажность: 1 / 1.
1/11
Код объекта: 316050.
Тип объекта: Земельный участок.
Площадь: 10000 м².
1/21
Код объекта: 314115.
Тип объекта: Офисное помещение.
Площадь: 51.3 м².
Этаж / Этажность: 2 / 5.
1/19
Код объекта: 304943.
Тип объекта: Помещение свободного назначения.
Площадь: 1000 м².
Этаж / Этажность: 1 / 1.
1/21
Код объекта: 282251.
Тип объекта: Складское помещение.
Площадь: 95600 м².
Этаж / Этажность: 1 / 1.

Не хочу искать, перезвоните мне!

Оставьте номер телефона, наш специалист свяжется с вами и поможет с подбором недвижимости!