Офис 30 м2 в историческом центре с арендатором

ул Куйбышева, д. 35

5 900 000 руб.

?

$ 1 086

€ 979

196 667 руб./м²


30 м²

1/16 этажей

Код объекта

123822

Предложение доступно для субагентов, авторизуйтесь

Офис 30 м2 в историческом центре с арендатором

Код объекта: 123822.
Тип объекта: Офисное помещение.
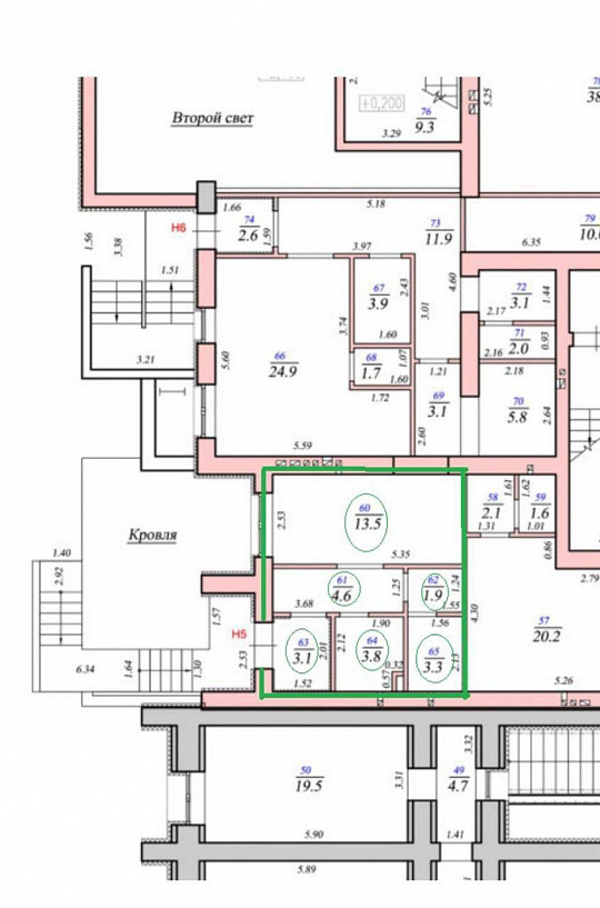
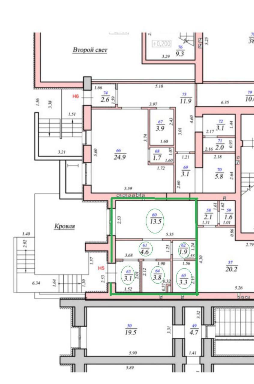
Площадь: 30 м².
Этаж / Этажность: 1 / 16.

Описание и характеристики

От собственника! Без комиссии!

Характеристики:
- 1 линия
- Отдельная входная группа
- Общая парковка
- Доступ 24/7
- ХВС/ГВС
- Свой санузел
- Центральное отопление
- Хороший ремонт
- Кабинетная планировка
- Жилой дом
- Высота потолков 3 м
- Частично с мебелью
- С окнами
- Коммунальные услуги оплачиваются отдельно

Дополнительная информация:
Продается помещение в ЖК Чемпион по ул. Куйбышева 35.

Помещение 30,2 кв.м расположено в новом доме  на 1 этаже, имеет удобную планировку и идеально подходит как для офисной деятельности, так и для организации любого другого бизнеса — от магазина до салона красоты.

Преимущества:
- Качественные материалы, чистовая отделка.
- Отдельный вход с крыльцом
- Отличная транспортная доступность.  
- Развитая инфраструктура: гимназия, поликлиника, площадь Революции, набережная в 5 минутах ходьбы
- Возможность индивидуального оформления пространства под нужды вашего бизнеса.  
- Парковочные места для сотрудников и клиентов.

Дополнительная информация:
- Офис с арендатором. Стабильная ежемесячная арендная плата.

Не упустите возможность приобрести просторное и светлое помещение в историческом районе города! Звоните прямо сейчас для организации просмотра!

По всем вопросам можете обращаться к представителю собственника: Екатерина К.
Помощь с оформлением ипотеки и покупки в лизинг.


Подписывайтесь на наш профиль, чтобы узнавать о новых локациях первыми!

Перейти в карточку объекта в CRM: 123822.

Агентство Регионального Развития

+7 927 019-54-26

или оставьте ваш номер, и я перезвоню в течение 30 минут

Отправляя заявку вы соглашаетесь на обработку персональных данных

5 900 000 руб.

?

$ 75 941

€ 64 688

196 667 руб./м²


30 м²

1/16 этажей

Код объекта

123822

Предложение доступно для субагентов, авторизуйтесь

Агентство Регионального Развития

+7 927 019-54-26

или оставьте ваш номер, и я перезвоню в течение 30 минут

Отправляя заявку вы соглашаетесь на обработку персональных данных

Похожие объявления

Посмотреть все похожие объявления
1/24
Код объекта: 342471.
Тип объекта: Офисное помещение.
Площадь: 60 м².
Этаж / Этажность: 1 / 2.
1/11
Код объекта: 391971.
Тип объекта: Офисное помещение.
Площадь: 44.3 м².
Этаж / Этажность: 1 / 1.
1/23
Код объекта: 343726.
Тип объекта: Офисное помещение.
Площадь: 31 м².
Этаж / Этажность: 1 / 5.
1/21
Код объекта: 314109.
Тип объекта: Офисное помещение.
Площадь: 52.1 м².
Этаж / Этажность: 2 / 5.
1/25
Код объекта: 275663.
Тип объекта: Офисное помещение.
Площадь: 108 м².
Этаж / Этажность: 2 / 3.
1/23
Код объекта: 343726.
Тип объекта: Офисное помещение.
Площадь: 31 м².
Этаж / Этажность: 1 / 5.
1/28
Код объекта: 337360.
Тип объекта: Офисное помещение.
Площадь: 36 м².
Этаж / Этажность: 1 / 18.
1/22
Код объекта: 314097.
Тип объекта: Офисное помещение.
Площадь: 33.1 м².
Этаж / Этажность: 2 / 5.
1/14
Код объекта: 369260.
Тип объекта: Офисное помещение.
Площадь: 21.3 м².
Этаж / Этажность: 3 / 4.
1/7
Код объекта: 296164.
Тип объекта: Производственное помещение.
Площадь: 2112 м².
Этаж / Этажность: 1 / 1.
1/11
Код объекта: 316050.
Тип объекта: Земельный участок.
Площадь: 10000 м².
1/21
Код объекта: 314115.
Тип объекта: Офисное помещение.
Площадь: 51.3 м².
Этаж / Этажность: 2 / 5.
1/19
Код объекта: 304943.
Тип объекта: Помещение свободного назначения.
Площадь: 1000 м².
Этаж / Этажность: 1 / 1.
1/21
Код объекта: 282251.
Тип объекта: Складское помещение.
Площадь: 95600 м².
Этаж / Этажность: 1 / 1.

Не хочу искать, перезвоните мне!

Оставьте номер телефона, наш специалист свяжется с вами и поможет с подбором недвижимости!