Продам офисное помещение, 2 948,2 м²

ул Вилоновская, д. 138

245 000 000 руб.

?

$ 1 086

€ 979

83 102 руб./м²


2948.2 м²

1/7 этажей

Код объекта

107284

Предложение доступно для субагентов, авторизуйтесь

Продам Офисное помещение, 2 948,2 м²

Код объекта: 107284.
Тип объекта: Офисное помещение.
Площадь: 2948.2 м².
Этаж / Этажность: 1 / 7.
Назначения: Арендный бизнес.

Описание и характеристики

Предлагается к продаже офисное здание площадью 2 948,2 кв. м, расположенного по адресу:  г. Самара, ул. Вилоновская, 138.
Здание расположено в сформированной зоне деловой и потребительской активности, рядом с ж/д вокзалом и пригородным автовокзалом, Губернским рынком, в центре большого жилого микрорайона. ЦУМ «САМАРА» является одним из старейших торговых центров города. Губернский рынок аккумулирует покупательские потоки из разных районов города.
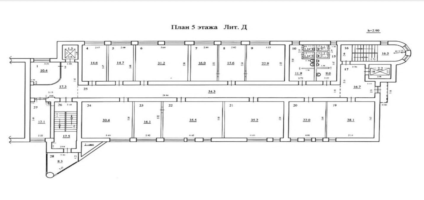
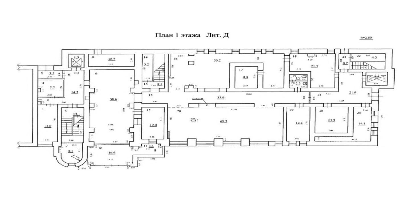
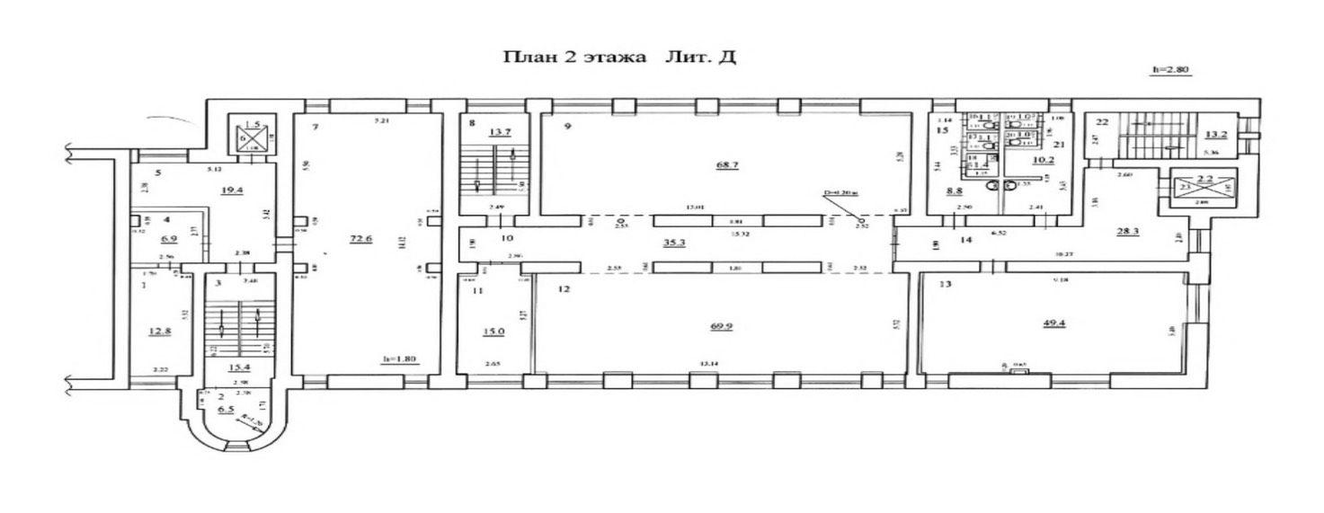
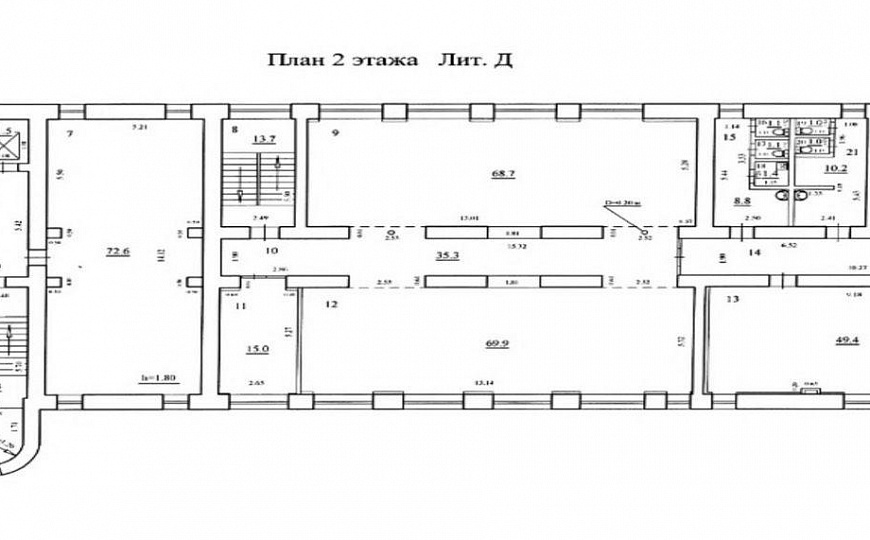
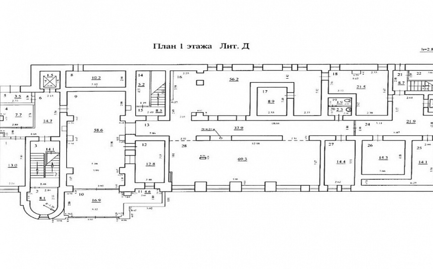
В здании 7 этажей, площадь каждого этажа около 450 кв. м:
1-2 этажи - клиентская зона обслуживания, пространства типа опенспейс;
3-5 этажи - коридорно-кабинетная нарезка;
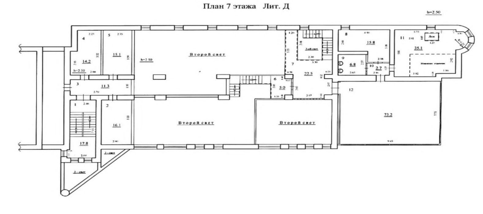
6-7 этажи - кабинеты руководства с высотой потолков 5,5 м, конференц-залом, отдельным санузлами, сауной, комнатами отдыха, кухней, переговорной.
    На 6 этаже имеются два крупных кабинета с высокими потолками с собственными санузлами, комнатами отдыха, душевой/сауной. Помещения объединены общей приемной и выходом в кухню. Также на этаже имеются несколько кабинетов.  
7 этаж представлен в виде просторного помещения с панорамной крышей.

В здании:
•    2 грузопассажирских лифта;
•    по 2 санузла на этаже;
•    система видеонаблюдения;
•    разводка СКС по кабинетам;
•    оптоволоконный интернет, несколько провайдеров;
•    пожарная сигнализация;
•    кондиционеры в кабинетах;
•    все центральные коммуникации;
•    установленная электрическая мощность - 400 кВт, тариф СН-2.
•    Здание и земельный участок в собственности (кадастровые номера 63:01:0519004:570, 63:01:0519004:8);
•    Земельный участок - 879,3 +/- 10,4 кв. м, земли населенных пунктов - занимаемый нежилым зданием (литера Д) административного назначения и прилегающей территорией.

Перейти в карточку объекта в CRM: 107284.

Агентство Регионального Развития

+7 927 019-54-26

или оставьте ваш номер, и я перезвоню в течение 30 минут

Отправляя заявку вы соглашаетесь на обработку персональных данных

245 000 000 руб.

?

$ 3 219 715

€ 2 762 032

83 102 руб./м²


2948.2 м²

1/7 этажей

Код объекта

107284

Предложение доступно для субагентов, авторизуйтесь

Агентство Регионального Развития

+7 927 019-54-26

или оставьте ваш номер, и я перезвоню в течение 30 минут

Отправляя заявку вы соглашаетесь на обработку персональных данных

Похожие объявления

Посмотреть все похожие объявления
1/7
Код объекта: 296164.
Тип объекта: Производственное помещение.
Площадь: 2112 м².
Этаж / Этажность: 1 / 1.
1/11
Код объекта: 316050.
Тип объекта: Земельный участок.
Площадь: 10000 м².
1/21
Код объекта: 314115.
Тип объекта: Офисное помещение.
Площадь: 51.3 м².
Этаж / Этажность: 2 / 5.
1/19
Код объекта: 304943.
Тип объекта: Помещение свободного назначения.
Площадь: 1000 м².
Этаж / Этажность: 1 / 1.
1/13
Код объекта: 299027.
Тип объекта: Помещение свободного назначения.
Площадь: 60 м².
Этаж / Этажность: -1 / 3.

Не хочу искать, перезвоните мне!

Оставьте номер телефона, наш специалист свяжется с вами и поможет с подбором недвижимости!