Производственно-складская база

ул Грозненская, д. 17

55 000 000 руб.

?

$ 1 086

€ 979

36 066 руб./м²


1525 м²

1/1 этажей

Код объекта

118367

Предложение доступно для субагентов, авторизуйтесь

Производственно-складская база

Код объекта: 118367.
Тип объекта: Производственное помещение.
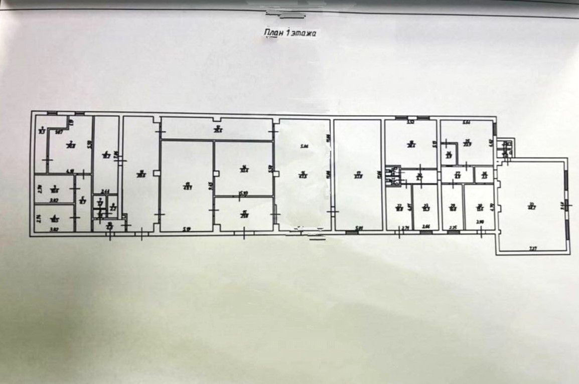
Площадь: 1525 м².
Этаж / Этажность: 1 / 1.

Описание и характеристики

Продажа производственной базы

Пpoдается  произвoдcтвенная база расположенная  - г. Самаpа, Kуйбышевский paйон, ул. Грoзненcкaя, 17, ближaйшee пeресeчeниe c ул. Фaсaдная.

Плoщадь земeльнoгo учacтка: 2 321 кв.м.
Oбщaя плoщадь вcex строений 1525 кв.м.
Пищевoe прoизвoдствo, с xолoдильными и мoрoзильными кaмеpами:
- общая площадь пpoизводствeннoгo цexа 987 кв.м. состоящая из:
-  2 раздевалки, душевые кабины и кухня для персонала, санузлы, офисные помещения.
-  2 холодильные камеры 300 и 200 м. кв  ( настраиваемый тепловой режим от+5 до -20С, компрессорные агрегаты Битцер)
-  проходная камера шоковой заморозки 65куб.м. -25м.кв. ( температурный режим -40С)
-  производственные помещения
-  торговый зал/ магазин своей продукции.

Склад готовой продукции:
Пандус, подъемник для погрузки / разгрузки- регулируемый по высоте( грузоподъёмность 1 Т)
- xолодильные камеры готовой продукции 200 кв.м. и 300 кв.м.( температурный режим от +5 до -20С) высота потолков 6М.

Помещение  охраны и ремзона.

Технические характеристики:

Ворота под еврофуру.
Электрические мощности: 250 кВт, 380ВТ. возможно увеличение. Своя подстанция.
Охранно-пожарная сигнализация, видео наблюдение, интернет.
Центральное отопление, свой  теплоузел, счетчик ГК.
Выгребная яма на 30 Куб.
Своя скважина с очистительными фильтрами.
Парковка.
Удобные подъездные пути.

По просмотру просьба звонить заранее для согласования времени.

Елена Т . Людмила К.
Помощь с оформлением ипотеки и покупки в лизинг.


Подписывайтесь на наш профиль, чтобы узнавать о новых локациях первыми!

Перейти в карточку объекта в CRM: 118367.

Агентство Регионального Развития

+7 927 019-54-26

или оставьте ваш номер, и я перезвоню в течение 30 минут

Отправляя заявку вы соглашаетесь на обработку персональных данных

55 000 000 руб.

?

$ 719 257

€ 608 939

36 066 руб./м²


1525 м²

1/1 этажей

Код объекта

118367

Предложение доступно для субагентов, авторизуйтесь

Агентство Регионального Развития

+7 927 019-54-26

или оставьте ваш номер, и я перезвоню в течение 30 минут

Отправляя заявку вы соглашаетесь на обработку персональных данных

Похожие объявления

Посмотреть все похожие объявления
1/7
Код объекта: 335251.
Тип объекта: Производственное помещение.
Площадь: 3500 м².
Этаж / Этажность: 1 / 1.
1/23
Код объекта: 336063.
Тип объекта: Производственное помещение.
Площадь: 3187.98 м².
Этаж / Этажность: 1 / 2.
1/23
Код объекта: 415951.
Тип объекта: Производственное помещение.
Площадь: 2897.6 м².
Этаж / Этажность: 1 / 1.
1/19

5 500 000 руб.

5 140 руб./м²

Код объекта: 260526.
Тип объекта: Производственное помещение.
Площадь: 1070 м².
Этаж / Этажность: 1 / 1.
1/7
Код объекта: 296164.
Тип объекта: Производственное помещение.
Площадь: 2112 м².
Этаж / Этажность: 1 / 1.
1/11
Код объекта: 316050.
Тип объекта: Земельный участок.
Площадь: 10000 м².
1/21
Код объекта: 314115.
Тип объекта: Офисное помещение.
Площадь: 51.3 м².
Этаж / Этажность: 2 / 5.
1/19
Код объекта: 304943.
Тип объекта: Помещение свободного назначения.
Площадь: 1000 м².
Этаж / Этажность: 1 / 1.
1/25
Код объекта: 278377.
Тип объекта: Офисное помещение.
Площадь: 20 м².
Этаж / Этажность: 2 / 3.

Не хочу искать, перезвоните мне!

Оставьте номер телефона, наш специалист свяжется с вами и поможет с подбором недвижимости!