Магазин с арендаторами

г Тольятти, Автозаводский р-н, ул Ворошилова, д. 11а

20 615 000 руб.

?

$ 1 086

€ 979

133 000 руб./м²


155 м²

1/1 этажей

Код объекта

121641

Предложение доступно для субагентов, авторизуйтесь

Магазин с арендаторами

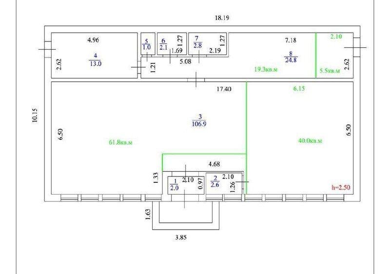
Код объекта: 121641.
Тип объекта: Помещение свободного назначения.
Площадь: 155 м².
Этаж / Этажность: 1 / 1.

Описание и характеристики

От собственника! Без комиссии!

Характеристики:
- 1 линия
- Отдельная входная группа
- Своя парковка
- Есть возможность разместить вывеску
- Погрузка/разгрузка: Главный вход, Запасной вход
- Доступ 24/7
- ХВС
- Свой санузел
- Электрическое отопление
- Есть кондиционер
- Чистовой ремонт
- Стрит ритейл
- Имеется запасной выход
- Без лифта
- С окнами
- Возможность перепланировки
- Коммунальные услуги оплачиваются отдельно

Дополнительная информация:
Продажа к капитального строения (стрит- ритейлер первая линия) с земельным участком. На всю площадь согласованы арендаторы.

По всем вопросам можете обращаться к представителю собственника: Руслан К.
Помощь с оформлением ипотеки и покупки в лизинг.


Подписывайтесь на наш профиль, чтобы узнавать о новых локациях первыми!

Перейти в карточку объекта в CRM: 121641.

Агентство Регионального Развития

+7 927 019-54-26

или оставьте ваш номер, и я перезвоню в течение 30 минут

Отправляя заявку вы соглашаетесь на обработку персональных данных

20 615 000 руб.

?

$ 245 422

€ 211 895

133 000 руб./м²


155 м²

1/1 этажей

Код объекта

121641

Предложение доступно для субагентов, авторизуйтесь

Агентство Регионального Развития

+7 927 019-54-26

или оставьте ваш номер, и я перезвоню в течение 30 минут

Отправляя заявку вы соглашаетесь на обработку персональных данных

Похожие объявления

Посмотреть все похожие объявления
1/11
Код объекта: 263347.
Тип объекта: Помещение свободного назначения.
Площадь: 138.5 м².
Этаж / Этажность: 1 / 16.
1/6
Код объекта: 234037.
Тип объекта: Помещение свободного назначения.
Площадь: 145 м².
Этаж / Этажность: 1 / 1.
1/12
Код объекта: 263394.
Тип объекта: Помещение свободного назначения.
Площадь: 117.1 м².
Этаж / Этажность: 1 / 16.
1/31
Код объекта: 219493.
Тип объекта: Помещение свободного назначения.
Площадь: 155.2 м².
Этаж / Этажность: 3 / 16.
1/26
Код объекта: 263416.
Тип объекта: Помещение свободного назначения.
Площадь: 167.1 м².
Этаж / Этажность: 1 / 10.
1/11
Код объекта: 263347.
Тип объекта: Помещение свободного назначения.
Площадь: 138.5 м².
Этаж / Этажность: 1 / 16.
1/6
Код объекта: 234037.
Тип объекта: Помещение свободного назначения.
Площадь: 145 м².
Этаж / Этажность: 1 / 1.
1/12
Код объекта: 263394.
Тип объекта: Помещение свободного назначения.
Площадь: 117.1 м².
Этаж / Этажность: 1 / 16.
1/16
Код объекта: 238433.
Тип объекта: Помещение свободного назначения.
Площадь: 174 м².
Этаж / Этажность: 1 / 4.
1/35
Код объекта: 251780.
Тип объекта: Помещение свободного назначения.
Площадь: 135 м².
Этаж / Этажность: 1 / 2.
1/7
Код объекта: 296164.
Тип объекта: Производственное помещение.
Площадь: 2112 м².
Этаж / Этажность: 1 / 1.
1/11
Код объекта: 316050.
Тип объекта: Земельный участок.
Площадь: 10000 м².
1/21
Код объекта: 314115.
Тип объекта: Офисное помещение.
Площадь: 51.3 м².
Этаж / Этажность: 2 / 5.
1/19
Код объекта: 304943.
Тип объекта: Помещение свободного назначения.
Площадь: 1000 м².
Этаж / Этажность: 1 / 1.
1/25
Код объекта: 278377.
Тип объекта: Офисное помещение.
Площадь: 20 м².
Этаж / Этажность: 2 / 3.

Не хочу искать, перезвоните мне!

Оставьте номер телефона, наш специалист свяжется с вами и поможет с подбором недвижимости!