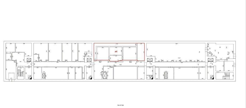
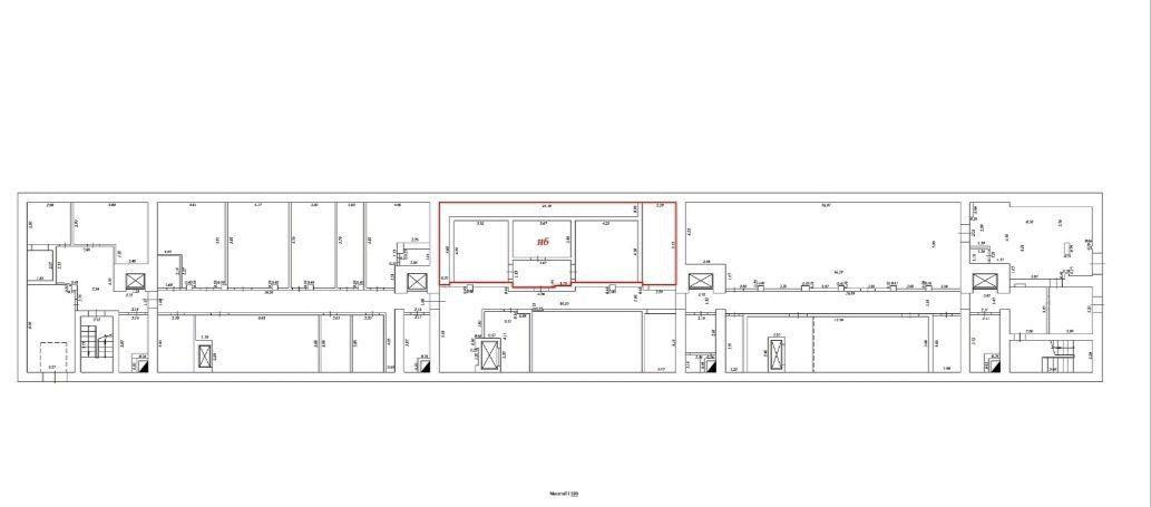
Помещение 79,8м² с высоким трафиком.

пр-кт Кирова, д. 180

4 300 000 руб.

?

$ 1 086

€ 979

53 885 руб./м²


79.8 м²

-1/9 этажей

Код объекта

117290

Предложение доступно для субагентов, авторизуйтесь

Помещение 79,8м² с высоким трафиком.

Код объекта: 117290.
Тип объекта: Помещение свободного назначения.
Площадь: 79.8 м².
Этаж / Этажность: -1 / 9.

Описание и характеристики

От собственника! Без комиссии!

Характеристики:
- Теплый склад
- Доступ 24/7
- Центральное отопление

Дополнительная информация:
Продаются помещения на цокольном этаже в жилом доме общей площадью 79,8м2.
В наличие есть все необходимые коммуникации: электроснабжение, горячее водоснабжение, водоотведение, отопление, канализация.
У входа оборудованы парковочные места на 6 машин, удобный подъезд для транспорта.
В данный момент помещения сданы в аренду и приносят хороший ежемесячный доход.
Помещения подходят под склад, творческие мастерские, производство, можно использовать как холодильную камеру.

По всем вопросам можете обращаться к представителю собственника: Вадим П
Помощь с оформлением ипотеки и покупки в лизинг.


Подписывайтесь на наш профиль, чтобы узнавать о новых локациях первыми!

Перейти в карточку объекта в CRM: 117290.

Агентство Регионального Развития

+7 927 019-54-26

или оставьте ваш номер, и я перезвоню в течение 30 минут

Отправляя заявку вы соглашаетесь на обработку персональных данных

4 300 000 руб.

?

$ 53 105

€ 45 705

53 885 руб./м²


79.8 м²

-1/9 этажей

Код объекта

117290

Предложение доступно для субагентов, авторизуйтесь

Агентство Регионального Развития

+7 927 019-54-26

или оставьте ваш номер, и я перезвоню в течение 30 минут

Отправляя заявку вы соглашаетесь на обработку персональных данных

Похожие объявления

Посмотреть все похожие объявления
1/19
Код объекта: 260306.
Тип объекта: Помещение свободного назначения.
Площадь: 500 м².
Этаж / Этажность: 1 / 1.
1/8
Код объекта: 230354.
Тип объекта: Помещение свободного назначения.
Площадь: 126 м².
Этаж / Этажность: -1 / 10.
1/11
Код объекта: 258136.
Тип объекта: Помещение свободного назначения.
Площадь: 253 м².
Этаж / Этажность: -1 / 5.
1/13
Код объекта: 238578.
Тип объекта: Помещение свободного назначения.
Площадь: 48 м².
Этаж / Этажность: 1 / 9.
1/32
Код объекта: 343768.
Тип объекта: Помещение свободного назначения.
Площадь: 39 м².
Этаж / Этажность: 2 / 20.
1/15
Код объекта: 325053.
Тип объекта: Помещение свободного назначения.
Площадь: 64.3 м².
Этаж / Этажность: 1 / 9.
1/16
Код объекта: 230448.
Тип объекта: Помещение свободного назначения.
Площадь: 77 м².
Этаж / Этажность: 1 / 14.
1/28
Код объекта: 338954.
Тип объекта: Помещение свободного назначения.
Площадь: 94.9 м².
Этаж / Этажность: -1 / 25.
1/4

7 950 000 руб.

100 000 руб./м²

Код объекта: 344975.
Тип объекта: Помещение свободного назначения.
Площадь: 79.5 м².
Этаж / Этажность: 1 / 10.
1/14
Код объекта: 350745.
Тип объекта: Помещение свободного назначения.
Площадь: 100.9 м².
Этаж / Этажность: 1 / 16.
1/7
Код объекта: 296164.
Тип объекта: Производственное помещение.
Площадь: 2112 м².
Этаж / Этажность: 1 / 1.
1/26
Код объекта: 307426.
Тип объекта: Бизнес-центр/офисный центр.
Площадь: 210 м².
Этаж / Этажность: 4 / 4.
1/7
Код объекта: 307612.
Тип объекта: Отдельно стоящее здание.
Площадь: 550 м².
Этаж / Этажность: 1 / 4.
1/18
Код объекта: 300972.
Тип объекта: Отдельно стоящее здание.
Площадь: 180 м².
Этаж / Этажность: 1 / 1.
1/11
Код объекта: 316050.
Тип объекта: Земельный участок.
Площадь: 10000 м².

Не хочу искать, перезвоните мне!

Оставьте номер телефона, наш специалист свяжется с вами и поможет с подбором недвижимости!