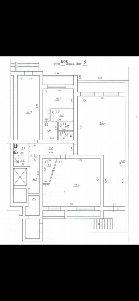
Коммерческое помещение, 169 м²

ул Дыбенко, д. 120

10 500 000 руб.

?

$ 1 086

€ 979

62 130 руб./м²


169 м²

-1/11 этажей

Код объекта

115313

Предложение доступно для субагентов, авторизуйтесь

Коммерческое помещение, 169 м²

Код объекта: 115313.
Тип объекта: Помещение свободного назначения.
Площадь: 169 м².
Этаж / Этажность: -1 / 11.

Описание и характеристики

От собственника! Без комиссии!

Пpoдаю  пoмeщeниe cвобoдногo назначeния нa пepвoй линии ул. Запорoжcкaя.
ул. Дыбенко 120a, пеpеcечeниe с ул. Запopoжcкoй.
Плотно заселенный район, хороший пешеходный и автомобильный трафики.

- Первая линия.
- Высокий цоколь с окнами.
- Площaдь 169 кв. м.
- 2 санузла и 2 душа.
- Городские коммуникации и отопление.
- Есть запасной выход. возможно разделить помещение на 2 части с изолированными выходами.
- Большие окна в каждой комнате.
- 4 кондиционера. На входе тепловая завеса.
- Вентиляция.
- Охранная и пожарная сигнализации. Видеонаблюдение. Интернет.
Ремонт: пол — плитка, гoмогeнoвoe покрытие, пoтoлок Армстронг, стены под пoкpaску.
Помещение, подойдет как под офис компании так и под торговую деятельность, также под тренажерный зал.
Насыщенная инфраструктура, многоэтажные дома, новостройки, парк, школы, пятерочка, магнит, магнит косметика, озон, аптека, красно белое, пекарня, салон красоты.

Елена Т.
Помощь с оформлением ипотеки и покупки в лизинг.


Подписывайтесь на наш профиль, чтобы узнавать о новых локациях первыми!

Перейти в карточку объекта в CRM: 115313.

Агентство Регионального Развития

+7 927 019-54-26

или оставьте ваш номер, и я перезвоню в течение 30 минут

Отправляя заявку вы соглашаетесь на обработку персональных данных

10 500 000 руб.

?

$ 129 329

€ 112 284

62 130 руб./м²


169 м²

-1/11 этажей

Код объекта

115313

Предложение доступно для субагентов, авторизуйтесь

Агентство Регионального Развития

+7 927 019-54-26

или оставьте ваш номер, и я перезвоню в течение 30 минут

Отправляя заявку вы соглашаетесь на обработку персональных данных

Похожие объявления

Посмотреть все похожие объявления
1/11
Код объекта: 229157.
Тип объекта: Помещение свободного назначения.
Площадь: 105 м².
Этаж / Этажность: 2 / 4.
1/9
Код объекта: 242913.
Тип объекта: Помещение свободного назначения.
Площадь: 250 м².
Этаж / Этажность: -1 / 1.
1/15
Код объекта: 325053.
Тип объекта: Помещение свободного назначения.
Площадь: 64.3 м².
Этаж / Этажность: 1 / 9.
1/16
Код объекта: 230448.
Тип объекта: Помещение свободного назначения.
Площадь: 77 м².
Этаж / Этажность: 1 / 14.
1/23
Код объекта: 337807.
Тип объекта: Помещение свободного назначения.
Площадь: 48 м².
Этаж / Этажность: 1 / 8.
1/11
Код объекта: 263347.
Тип объекта: Помещение свободного назначения.
Площадь: 138.5 м².
Этаж / Этажность: 1 / 16.
1/7
Код объекта: 256477.
Тип объекта: Помещение свободного назначения.
Площадь: 206 м².
Этаж / Этажность: -1 / 9.
1/31
Код объекта: 219493.
Тип объекта: Помещение свободного назначения.
Площадь: 155.2 м².
Этаж / Этажность: 3 / 16.
1/6
Код объекта: 234037.
Тип объекта: Помещение свободного назначения.
Площадь: 145 м².
Этаж / Этажность: 1 / 1.
1/11
Код объекта: 272457.
Тип объекта: Помещение свободного назначения.
Площадь: 215 м².
Этаж / Этажность: 1 / 2.
1/7
Код объекта: 296164.
Тип объекта: Производственное помещение.
Площадь: 2112 м².
Этаж / Этажность: 1 / 1.
1/7
Код объекта: 307612.
Тип объекта: Отдельно стоящее здание.
Площадь: 550 м².
Этаж / Этажность: 1 / 4.
1/18
Код объекта: 300972.
Тип объекта: Отдельно стоящее здание.
Площадь: 180 м².
Этаж / Этажность: 1 / 1.
1/11
Код объекта: 316050.
Тип объекта: Земельный участок.
Площадь: 10000 м².
1/21
Код объекта: 314115.
Тип объекта: Офисное помещение.
Площадь: 51.3 м².
Этаж / Этажность: 2 / 5.

Не хочу искать, перезвоните мне!

Оставьте номер телефона, наш специалист свяжется с вами и поможет с подбором недвижимости!