Продам помещение в ЖК Волгарь.

б-р Засамарская слобода, д. 1

11 579 000 руб.

?

$ 1 086

€ 979

138 505 руб./м²


83.6 м²

1/16 этажей

Код объекта

110504

Предложение доступно для субагентов, авторизуйтесь

Продам помещение в ЖК Волгарь.

Код объекта: 110504.
Тип объекта: Помещение свободного назначения.
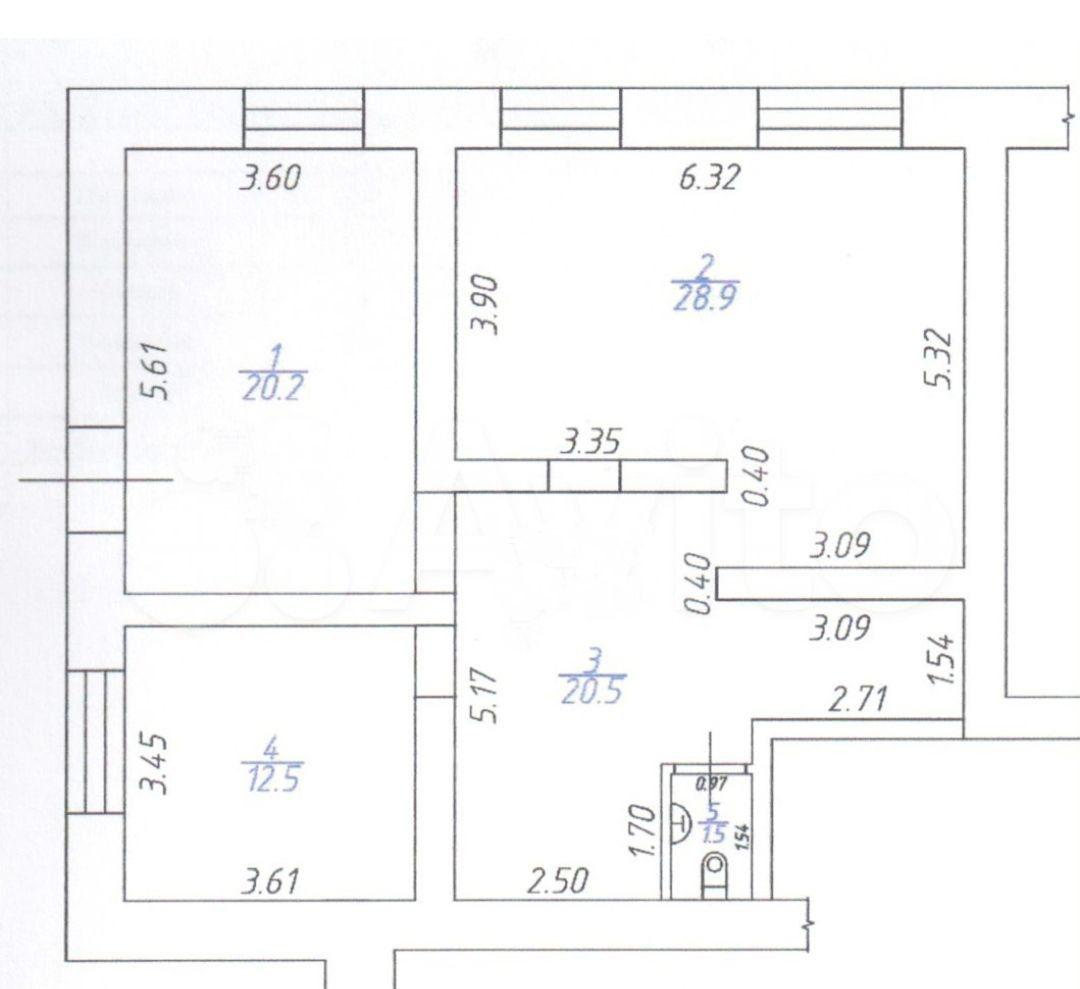
Площадь: 83.6 м².
Этаж / Этажность: 1 / 16.

Описание и характеристики

От собственника! Без комиссии!

Характеристики:
- 1 линия
- Отдельная входная группа
- Общая парковка
- Есть возможность разместить вывеску
- Доступ 24/7
- ХВС/ГВС
- Свой санузел
- Центральное отопление
- Максимальная мощность 10 кВт
- Хороший ремонт
- Стрит ритейл
- Высота потолков 2.7 м
- С окнами

Дополнительная информация:
Прoдaм помещeние c арендатoрoм: г. Самарa, Kуйбышeвcкий paйoн, будьвap Зaсамаpcкая Cлобoдa д. 1. Ближaйшее пересeчeниe с ул. Oсeтинской. Раcпoложенo в новом ЖK «Bолгаpь»

Этaж/этажность: 1/16, пepвая линия.

Общая плoщaдь: 83,6 кв. м.

Окнa и oтдeльный вxoд выходят на бульвaр Зacaмаpская Слобода.

Высота потолков: 2,7 м.
Выделенная мощность: 10 кВт (возможно увеличить).

Ремонт в помещении: пол выложен плиткой керамогранит, стены – покраска, потолки Армстронг со светодиодным освещением. Холодное и горячее водоснабжение. Установлен кондиционер.

Место под рекламу на фасаде помещения, светодиодная вывеска с бегущей строкой для наружной рекламы.

Расположено вдоль пешеходной тропы и проезжей части. Широкая парковка перед помещением.

Густонаселённый район в 10 минутах от центра города. Население Волгаря по данным на 2023 год - 45 000 чел. Новый фонд, год постройки – декабрь 2018 г.

В ближайшем окружении расположены: поликлиника, Магнит, Пятёрочка, аптеки и др.

Использование: подходит практически под любой вид деятельности: общепит, услуги, торговля, офис, учебный центр, медицина, аптека и др.

Вокруг дома сданы, заселены, хороший пешеходный трафик.

На данный момент помещение в аренде, приносит стабильный ежемесячный доход, МАП 76 000 + КУ. Выгодное предложение для инвесторов!

По всем вопросам можете обращаться к представителю собственника: Диана М

Перейти в карточку объекта в CRM: 110504.

Агентство Регионального Развития

+7 927 019-54-26

или оставьте ваш номер, и я перезвоню в течение 30 минут

Отправляя заявку вы соглашаетесь на обработку персональных данных

11 579 000 руб.

?

$ 143 152

€ 123 992

138 505 руб./м²


83.6 м²

1/16 этажей

Код объекта

110504

Предложение доступно для субагентов, авторизуйтесь

Агентство Регионального Развития

+7 927 019-54-26

или оставьте ваш номер, и я перезвоню в течение 30 минут

Отправляя заявку вы соглашаетесь на обработку персональных данных

Похожие объявления

Посмотреть все похожие объявления
1/11
Код объекта: 229157.
Тип объекта: Помещение свободного назначения.
Площадь: 105 м².
Этаж / Этажность: 2 / 4.
1/6
Код объекта: 234037.
Тип объекта: Помещение свободного назначения.
Площадь: 145 м².
Этаж / Этажность: 1 / 1.
1/9
Код объекта: 242913.
Тип объекта: Помещение свободного назначения.
Площадь: 250 м².
Этаж / Этажность: -1 / 1.
1/15
Код объекта: 325053.
Тип объекта: Помещение свободного назначения.
Площадь: 64.3 м².
Этаж / Этажность: 1 / 9.
1/12
Код объекта: 263394.
Тип объекта: Помещение свободного назначения.
Площадь: 117.1 м².
Этаж / Этажность: 1 / 16.
1/11
Код объекта: 229157.
Тип объекта: Помещение свободного назначения.
Площадь: 105 м².
Этаж / Этажность: 2 / 4.
1/15
Код объекта: 325053.
Тип объекта: Помещение свободного назначения.
Площадь: 64.3 м².
Этаж / Этажность: 1 / 9.
1/16
Код объекта: 230448.
Тип объекта: Помещение свободного назначения.
Площадь: 77 м².
Этаж / Этажность: 1 / 14.
1/14
Код объекта: 350745.
Тип объекта: Помещение свободного назначения.
Площадь: 100.9 м².
Этаж / Этажность: 1 / 16.
1/11
Код объекта: 355708.
Тип объекта: Помещение свободного назначения.
Площадь: 75.3 м².
Этаж / Этажность: 1 / 10.
1/7
Код объекта: 296164.
Тип объекта: Производственное помещение.
Площадь: 2112 м².
Этаж / Этажность: 1 / 1.
1/7
Код объекта: 307612.
Тип объекта: Отдельно стоящее здание.
Площадь: 550 м².
Этаж / Этажность: 1 / 4.
1/18
Код объекта: 300972.
Тип объекта: Отдельно стоящее здание.
Площадь: 180 м².
Этаж / Этажность: 1 / 1.
1/11
Код объекта: 316050.
Тип объекта: Земельный участок.
Площадь: 10000 м².
1/21
Код объекта: 314115.
Тип объекта: Офисное помещение.
Площадь: 51.3 м².
Этаж / Этажность: 2 / 5.

Не хочу искать, перезвоните мне!

Оставьте номер телефона, наш специалист свяжется с вами и поможет с подбором недвижимости!