Аренда офис 93,7 м старый город

ул Некрасовская, д. 60

56 220 руб.

?

$ 1 086

€ 979

600 руб./м²


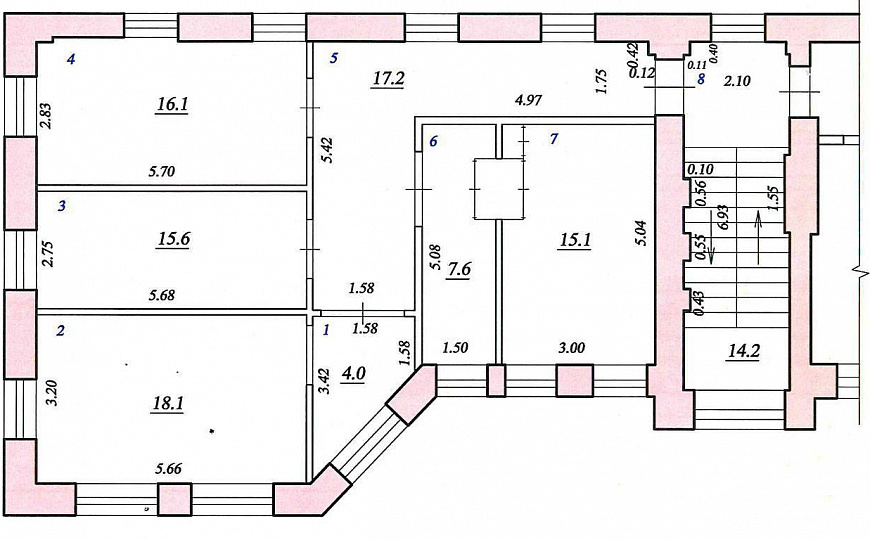
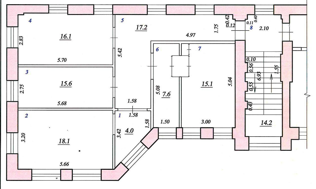
93.7 м²

5/5 этажей

Код объекта

130151

Предложение доступно для субагентов, авторизуйтесь

Аренда офис 93,7 м старый город

Код объекта: 130151.
Тип объекта: Бизнес-центр/офисный центр.
Площадь: 93.7 м².
Этаж / Этажность: 5 / 5.

Описание и характеристики

От собственника! Без комиссии!

Характеристики:
- 1 линия
- Общая входная группа
- Общая парковка
- Доступ 24/7
- Общий санузел
- Центральное отопление
- Есть кондиционер
- Хороший ремонт
- Кабинетная планировка
- Офисный центр
- Без лифта
- Частично с мебелью
- С окнами
- Инфраструктура: Кафе/столовые, Магазины, Банки
- Коммунальные услуги включены

Дополнительная информация:
Аренда уютного офиса площадью 93,7 кв.м в историческом центре города

• Расположен в тихом старом городе, окружён атмосферой спокойствия и комфорта

• Полностью изолированный, никаких соседей – все крыло  исключительно Ваше !

• Включены коммунальные услуги, кроме электроэнергии

• Тишина и покой гарантированы, идеальное решение для продуктивной работы

Отличный выбор для ценителей комфортной рабочей обстановки.

Свяжитесь с нами прямо сейчас, чтобы арендовать этот уникальный офис и создать своё собственное пространство для успеха!

По всем вопросам можете обращаться к представителю собственника: Диана М

Перейти в карточку объекта в CRM: 130151.

Агентство Регионального Развития

+7 927 019-54-26

или оставьте ваш номер, и я перезвоню в течение 30 минут

Отправляя заявку вы соглашаетесь на обработку персональных данных

56 220 руб.

?

$ 719

€ 610

600 руб./м²


93.7 м²

5/5 этажей

Код объекта

130151

Предложение доступно для субагентов, авторизуйтесь

Агентство Регионального Развития

+7 927 019-54-26

или оставьте ваш номер, и я перезвоню в течение 30 минут

Отправляя заявку вы соглашаетесь на обработку персональных данных

Похожие объявления

Посмотреть все похожие объявления
1/27
Код объекта: 277508.
Тип объекта: Бизнес-центр/офисный центр.
Площадь: 40 м².
Этаж / Этажность: 1 / 3.
1/7
Код объекта: 290359.
Тип объекта: Бизнес-центр/офисный центр.
Площадь: 42.1 м².
Этаж / Этажность: 4 / 6.
1/28
Код объекта: 303246.
Тип объекта: Бизнес-центр/офисный центр.
Площадь: 100 м².
Этаж / Этажность: 5 / 6.
1/38
Код объекта: 268476.
Тип объекта: Бизнес-центр/офисный центр.
Площадь: 75 м².
Этаж / Этажность: 1 / 9.
1/20
Код объекта: 367023.
Тип объекта: Бизнес-центр/офисный центр.
Площадь: 75 м².
Этаж / Этажность: 2 / 5.
1/7
Код объекта: 252832.
Тип объекта: Бизнес-центр/офисный центр.
Площадь: 71 м².
Этаж / Этажность: 2 / 3.
1/28
Код объекта: 303246.
Тип объекта: Бизнес-центр/офисный центр.
Площадь: 100 м².
Этаж / Этажность: 5 / 6.
1/20
Код объекта: 303255.
Тип объекта: Бизнес-центр/офисный центр.
Площадь: 70 м².
Этаж / Этажность: 3 / 6.
1/38
Код объекта: 268476.
Тип объекта: Бизнес-центр/офисный центр.
Площадь: 75 м².
Этаж / Этажность: 1 / 9.
1/20
Код объекта: 367023.
Тип объекта: Бизнес-центр/офисный центр.
Площадь: 75 м².
Этаж / Этажность: 2 / 5.
1/7
Код объекта: 296164.
Тип объекта: Производственное помещение.
Площадь: 2112 м².
Этаж / Этажность: 1 / 1.
1/11
Код объекта: 316050.
Тип объекта: Земельный участок.
Площадь: 10000 м².
1/21
Код объекта: 314115.
Тип объекта: Офисное помещение.
Площадь: 51.3 м².
Этаж / Этажность: 2 / 5.
1/19
Код объекта: 304943.
Тип объекта: Помещение свободного назначения.
Площадь: 1000 м².
Этаж / Этажность: 1 / 1.
1/21
Код объекта: 282251.
Тип объекта: Складское помещение.
Площадь: 95600 м².
Этаж / Этажность: 1 / 1.

Не хочу искать, перезвоните мне!

Оставьте номер телефона, наш специалист свяжется с вами и поможет с подбором недвижимости!