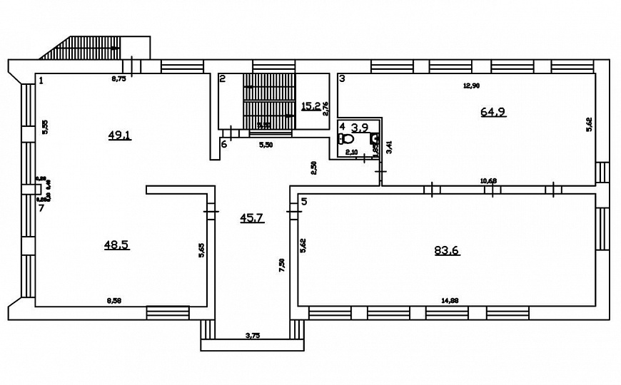
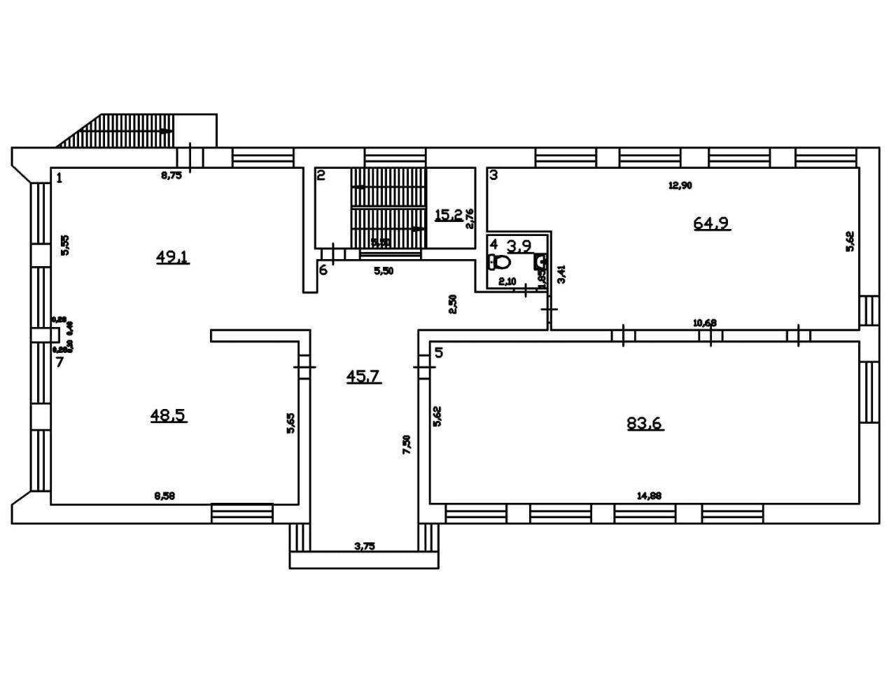
Офис 311м² на первой линии.

ул Блюхера, д. 24

622 000 руб.

?

$ 1 086

€ 979

2 000 руб./м²


311 м²

2/3 этажей

Код объекта

119150

Предложение доступно для субагентов, авторизуйтесь

Офис 311м² на первой линии.

Код объекта: 119150.
Тип объекта: Бизнес-центр/офисный центр.
Площадь: 311 м².
Этаж / Этажность: 2 / 3.
Назначения: Офис.

Описание и характеристики

От собственника! Без комиссии!

Предлагается в долгосрочную аренду офисное помещение в новом бизнес-центре!

Идеально подойдет для ведения бизнеса любой направленности благодаря своей функциональности и расположению.

  Основные характеристики:
- Первый этаж с отдельным входом  
- Парковка собственная, удобная и доступная круглосуточно  
- Круглосуточный доступ (режим работы — 24/7)  
- Наличие холодной и горячей воды (ХВС/ГВС), центрального отопления и кондиционера  
- Собственный санузел, расположенный непосредственно внутри офиса  
- Просторная открытая планировка с возможностью легкого зонирования и организации рабочих мест  
- Современный евроремонт высокого качества  
- Высокие потолки (3 метра) обеспечивают дополнительное пространство и комфорт  
- Система видеонаблюдения обеспечивает безопасность персонала и имущества  
- Возможность аренды дополнительного складского помещения  
- Личная территория на крыше с террасой для отдыха сотрудников  
- Места под наружную рекламу на здании для привлечения клиентов  
- Кухонная зона оборудована на минус первом этаже  
- Общая мощность электроэнергии составляет 50 кВт  

Дополнительно предлагается инфраструктура бизнес-центра: рядом расположены кафе, столовые, магазины и банки, что позволит сотрудникам комфортно проводить рабочие дни.

Обратите внимание: коммунальные платежи оплачиваются отдельно от арендной платы!


Контактная информация указана ниже. Звоните прямо сейчас и приходите посмотреть новое просторное рабочее пространство для вашего бизнеса!

По всем вопросам можете обращаться к представителю собственника: Дмитрий И

Перейти в карточку объекта в CRM: 119150.

Агентство Регионального Развития

+7 927 019-54-26

или оставьте ваш номер, и я перезвоню в течение 30 минут

Отправляя заявку вы соглашаетесь на обработку персональных данных

622 000 руб.

?

$ 7 991

€ 6 870

2 000 руб./м²


311 м²

2/3 этажей

Код объекта

119150

Предложение доступно для субагентов, авторизуйтесь

Агентство Регионального Развития

+7 927 019-54-26

или оставьте ваш номер, и я перезвоню в течение 30 минут

Отправляя заявку вы соглашаетесь на обработку персональных данных

Похожие объявления

Посмотреть все похожие объявления
1/26
Код объекта: 349388.
Тип объекта: Бизнес-центр/офисный центр.
Площадь: 504 м².
Этаж / Этажность: 2 / 2.
1/11
Код объекта: 278865.
Тип объекта: Бизнес-центр/офисный центр.
Площадь: 500 м².
Этаж / Этажность: 1 / 5.
1/17
Код объекта: 403401.
Тип объекта: Бизнес-центр/офисный центр.
Площадь: 390 м².
Этаж / Этажность: 1 / 3.
1/19
Код объекта: 396467.
Тип объекта: Бизнес-центр/офисный центр.
Площадь: 780 м².
Этаж / Этажность: 1 / 2.
1/26
Код объекта: 307426.
Тип объекта: Бизнес-центр/офисный центр.
Площадь: 350 м².
Этаж / Этажность: 2 / 4.
1/23
Код объекта: 340321.
Тип объекта: Бизнес-центр/офисный центр.
Площадь: 272 м².
Этаж / Этажность: 1 / 3.
1/16
Код объекта: 252431.
Тип объекта: Бизнес-центр/офисный центр.
Площадь: 230 м².
Этаж / Этажность: 3 / 5.
1/17
Код объекта: 403401.
Тип объекта: Бизнес-центр/офисный центр.
Площадь: 390 м².
Этаж / Этажность: 1 / 3.
1/22
Код объекта: 289805.
Тип объекта: Бизнес-центр/офисный центр.
Площадь: 235 м².
Этаж / Этажность: 1 / 3.
1/29
Код объекта: 342299.
Тип объекта: Бизнес-центр/офисный центр.
Площадь: 337 м².
Этаж / Этажность: 6 / 8.
1/7
Код объекта: 296164.
Тип объекта: Производственное помещение.
Площадь: 2112 м².
Этаж / Этажность: 1 / 1.
1/11
Код объекта: 316050.
Тип объекта: Земельный участок.
Площадь: 10000 м².
1/21
Код объекта: 314115.
Тип объекта: Офисное помещение.
Площадь: 51.3 м².
Этаж / Этажность: 2 / 5.
1/19
Код объекта: 304943.
Тип объекта: Помещение свободного назначения.
Площадь: 1000 м².
Этаж / Этажность: 1 / 1.
1/21
Код объекта: 282251.
Тип объекта: Складское помещение.
Площадь: 95600 м².
Этаж / Этажность: 1 / 1.

Не хочу искать, перезвоните мне!

Оставьте номер телефона, наш специалист свяжется с вами и поможет с подбором недвижимости!