Сдам в аренду складское помещение

ул Береговая, д. 30

11 050 000 руб.

?

$ 1 086

€ 979

850 руб./м²


13000 м²

1/1 этажей

Код объекта

127763

Предложение доступно для субагентов, авторизуйтесь

Сдам в аренду складское помещение

Код объекта: 127763.
Тип объекта: Отдельно стоящее здание.
Площадь: 13000 м².
Этаж / Этажность: 1 / 1.

Описание и характеристики

От собственника! Без комиссии!

Характеристики:
- Теплый склад
- Доступ 24/7
- ХВС/ГВС
- Свой санузел
- Автономное отопление
- Высота потолков 10 м
- Высота ворот 5 м
- Напольное покрытие - Антипыль
- Максимальная мощность 30 кВт
- Подъездные пути под грузовой транспорт, легковой транспорт
- Дополнительные преимущества: Место для маневра транспорта, Площадка рядом с помещением
- Видеонаблюдение
- Коммунальные услуги оплачиваются отдельно

Дополнительная информация:
Сдача в аренду современного складского комплекса класса А в Самаре

Адрес: г. Самара, ул. Береговая, д. 30

Выгодное расположение рядом с выездом из города по Кировскому мосту и удобной транспортной развязкой с Заводским шоссе обеспечивает удобный подъезд грузового транспорта любого тоннажа.

Основные характеристики объекта:

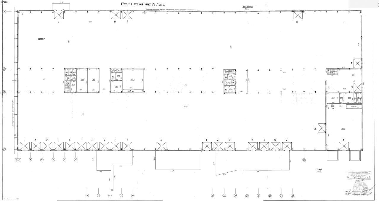
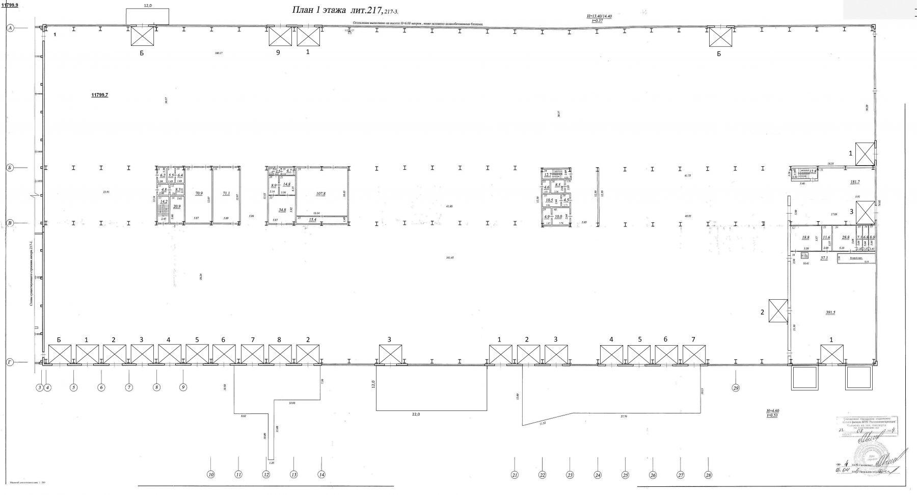
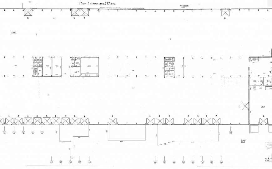
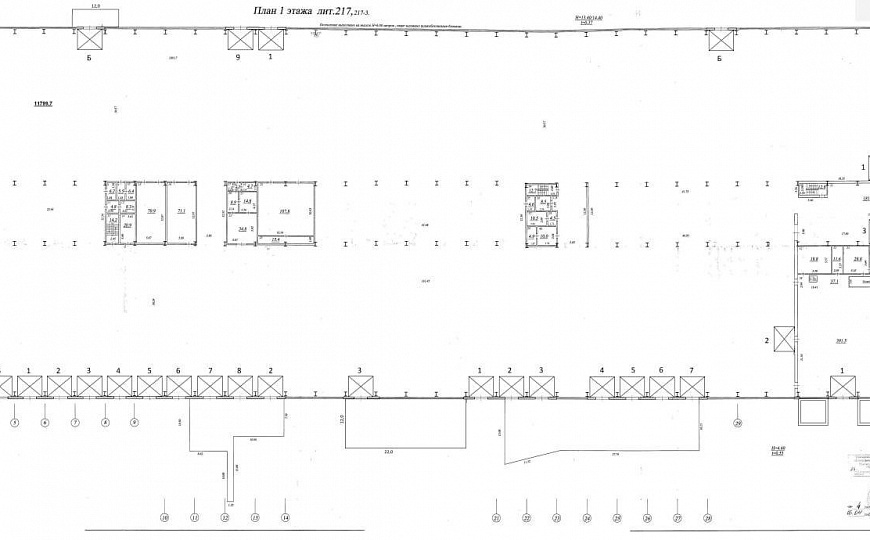
-  Общая площадь здания: 13 000 кв.м, прямоугольное помещение размерами 72×180 метров.
-  Высота потолков до балки: 10 метров. Бетонные полы с антипылевым покрытием обеспечивают чистоту внутри помещения.
- Светодиодное освещение и дополнительное естественное освещение через современные зенитные фонари создают комфортные условия работы.
-  Автоматизированная система пожарной сигнализации (АПС) и современное оборудование пожаротушения гарантируют безопасность хранения товаров.
- Санитарные комнаты и бытовые зоны оборудованы для удобства сотрудников.
-  Регулируемый температурный режим поддерживается собственной газовой котельной.

Ворота и площадки для разгрузки:

- 14 ворот dock-shelter: расположенные на высоте 1,2 метра над уровнем земли, оснащены подвижными платформами для быстрой и безопасной разгрузки крупнотоннажного транспорта.
- 8 ворот с рампой: размещены на высоте 0,8 метра, предназначены для разгрузки легкового и малотоннажного транспорта.
- Дополнительно предусмотрены две внешние выносы крытых рампы с подъёмом на высоту 1,2 метра.

Дополнительные преимущества:

- Просторные парковочные места для грузовых машин и автопарк легковых авто позволяют эффективно организовать логистику.
- Охраняемая база с ограждённой территорией, видеонаблюдением и постоянным освещением обеспечивает высокий уровень безопасности имущества арендаторов.
- Есть возможность аренды офисов в административном корпусе, что позволяет удобно разместить офисное пространство непосредственно на территории склада.

Арендные условия:

- Дата начала предоставления площади в аренду: с 1 января 2026 года.
- Стоимость аренды: 850 руб./кв.м. + коммунальные платежи (УСН).

Свяжитесь с нами сегодня, чтобы ознакомиться с условиями и узнать больше деталей!

По всем вопросам можете обращаться к представителю собственника: Дмитрий И

Перейти в карточку объекта в CRM: 127763.

Агентство Регионального Развития

+7 927 019-54-26

или оставьте ваш номер, и я перезвоню в течение 30 минут

Отправляя заявку вы соглашаетесь на обработку персональных данных

11 050 000 руб.

?

$ 145 216

€ 124 573

850 руб./м²


13000 м²

1/1 этажей

Код объекта

127763

Предложение доступно для субагентов, авторизуйтесь

Агентство Регионального Развития

+7 927 019-54-26

или оставьте ваш номер, и я перезвоню в течение 30 минут

Отправляя заявку вы соглашаетесь на обработку персональных данных

Похожие объявления

Посмотреть все похожие объявления
1/7
Код объекта: 296164.
Тип объекта: Производственное помещение.
Площадь: 2112 м².
Этаж / Этажность: 1 / 1.
1/11
Код объекта: 316050.
Тип объекта: Земельный участок.
Площадь: 10000 м².
1/21
Код объекта: 314115.
Тип объекта: Офисное помещение.
Площадь: 51.3 м².
Этаж / Этажность: 2 / 5.
1/19
Код объекта: 304943.
Тип объекта: Помещение свободного назначения.
Площадь: 1000 м².
Этаж / Этажность: 1 / 1.
1/13
Код объекта: 299027.
Тип объекта: Помещение свободного назначения.
Площадь: 60 м².
Этаж / Этажность: -1 / 3.

Не хочу искать, перезвоните мне!

Оставьте номер телефона, наш специалист свяжется с вами и поможет с подбором недвижимости!