Сдам офисное помещение, 64 м²

ул Галактионовская, д. 30

45 000 руб.

?

$ 1 086

€ 979

703 руб./м²


64 м²

2/2 этажей

Код объекта

93195

Предложение доступно для субагентов, авторизуйтесь

Сдам Офисное помещение, 64 м²

Код объекта: 93195.
Тип объекта: Офисное помещение.
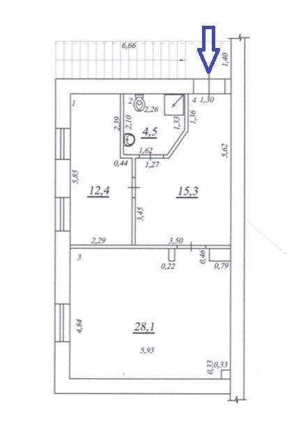
Площадь: 64 м².
Этаж / Этажность: 2 / 2.
Назначения: Офис, Услуги.

Описание и характеристики

ОТ СОБСТВЕННИКА. БЕЗ КОМИССИИ ДЛЯ АРЕНДАТОРА !


Предлагается в аренду офисное помещение,  площадью 64 м², расположенное в центре города, на 2-м этаже 2-этажного здания в г. Самаре по ул.  Галактионовской д. 30.
Основные характеристики и преимущества помещения:
Помещение находится в историческом районе города рядом с Троицким рынком. Удобное расположение  предполагает доступность всех районов в том числе и на общественном транспорте. Это является большим преимуществом и дает отличный автомобильный и пешеходный трафик. Объект расположен на охраняемой и огороженной территории  по всему периметру.
Офис состоит из трех смежных кабинетов.
В помещении имеется кондиционер.
На полу плитка, потолок армстронг, стены под покраску, вы можете выбрать любой цвет, подходящий под вашу деятельность. Возможна аренда с необходимой для вашего бизнеса мебелью, а так же оргтехникой.  
- Возможность размещения рекламной вывески на фасаде здания;
- доступ 24/7;
- возможность организации 2-3 парковочных места во дворе.
- Коммуникации: Свой санузел, холодная и горячая вода, центральная канализация, всё это создаст комфортные условия для ваших сотрудников.
- Разрешенная эл.мощность 35 кВт (возможно увеличение).
- Высота потолков - 2,85 метра позволяет разместить мебель, стеллажи для хранения необходимой продукции и материалов, способствует нормальной циркуляции воздуха в помещении.
- Предоставляется юр. адрес.
По всем вопроса обращайтесь к представителю собственника - Диана М.

Диана

Перейти в карточку объекта в CRM: 93195.

Агентство Регионального Развития

+7 927 019-54-26

или оставьте ваш номер, и я перезвоню в течение 30 минут

Отправляя заявку вы соглашаетесь на обработку персональных данных

45 000 руб.

?

$ 579

€ 493

703 руб./м²


64 м²

2/2 этажей

Код объекта

93195

Предложение доступно для субагентов, авторизуйтесь

Агентство Регионального Развития

+7 927 019-54-26

или оставьте ваш номер, и я перезвоню в течение 30 минут

Отправляя заявку вы соглашаетесь на обработку персональных данных

Похожие объявления

Посмотреть все похожие объявления
1/15
Код объекта: 258973.
Тип объекта: Офисное помещение.
Площадь: 82 м².
Этаж / Этажность: 1 / 2.
1/23
Код объекта: 236046.
Тип объекта: Офисное помещение.
Площадь: 56 м².
Этаж / Этажность: 2 / 2.
1/25
Код объекта: 350712.
Тип объекта: Офисное помещение.
Площадь: 62.7 м².
Этаж / Этажность: 1 / 4.
1/16
Код объекта: 367383.
Тип объекта: Офисное помещение.
Площадь: 60 м².
Этаж / Этажность: 1 / 3.
1/20
Код объекта: 262262.
Тип объекта: Офисное помещение.
Площадь: 31.2 м².
Этаж / Этажность: 7 / 9.
1/21
Код объекта: 314115.
Тип объекта: Офисное помещение.
Площадь: 51.3 м².
Этаж / Этажность: 2 / 5.
1/11
Код объекта: 262179.
Тип объекта: Офисное помещение.
Площадь: 50 м².
Этаж / Этажность: 2 / 2.
1/15
Код объекта: 258973.
Тип объекта: Офисное помещение.
Площадь: 82 м².
Этаж / Этажность: 1 / 2.
1/23
Код объекта: 236046.
Тип объекта: Офисное помещение.
Площадь: 56 м².
Этаж / Этажность: 2 / 2.
1/11
Код объекта: 217431.
Тип объекта: Офисное помещение.
Площадь: 55 м².
Этаж / Этажность: 4 / 5.
1/7
Код объекта: 296164.
Тип объекта: Производственное помещение.
Площадь: 2112 м².
Этаж / Этажность: 1 / 1.
1/11
Код объекта: 316050.
Тип объекта: Земельный участок.
Площадь: 10000 м².
1/21
Код объекта: 314115.
Тип объекта: Офисное помещение.
Площадь: 51.3 м².
Этаж / Этажность: 2 / 5.
1/19
Код объекта: 304943.
Тип объекта: Помещение свободного назначения.
Площадь: 1000 м².
Этаж / Этажность: 1 / 1.
1/21
Код объекта: 282251.
Тип объекта: Складское помещение.
Площадь: 95600 м².
Этаж / Этажность: 1 / 1.

Не хочу искать, перезвоните мне!

Оставьте номер телефона, наш специалист свяжется с вами и поможет с подбором недвижимости!