Продажа Бизнес-центра в г.Казань

ул Куйбышева, д. 1

1 600 000 000 руб.

?

$ 1 086

€ 979

113 038 руб./м²


14154.5 м²

1/3 этажей

Код объекта

117859

Предложение доступно для субагентов, авторизуйтесь

Продажа Бизнес-центра в г.Казань

Код объекта: 117859.
Тип объекта: Готовый арендный бизнес.
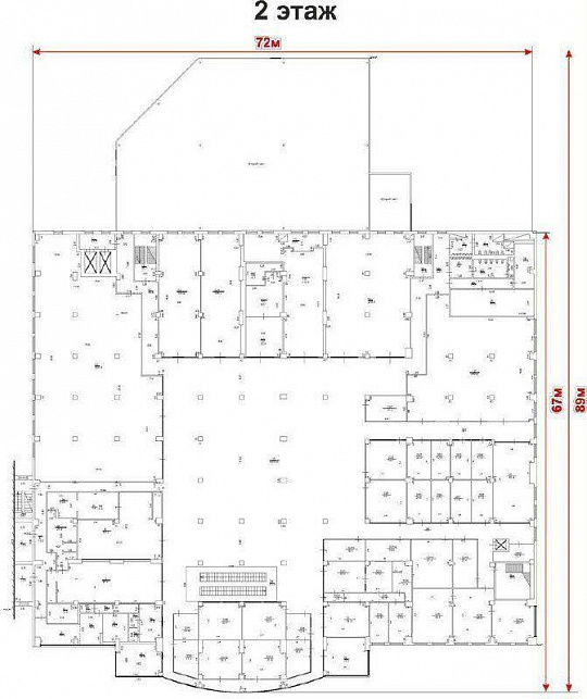
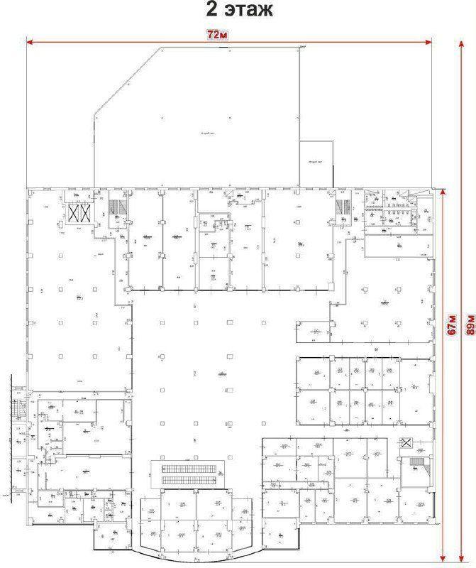
Площадь: 14154.5 м².
Этаж / Этажность: 1 / 3.
Месячный арендный поток (МАП): 4500000 руб.
Окупаемость: 29.6 лет
Доходность: 3.4 %

Описание и характеристики

Стоимость объекта: 1 600 000 000 руб.
Месячный арендный поток (МАП): 4 500 000 руб.
Окупаемость: 29.6 лет
Доходность: 3.4 %
От собственника! Без комиссии!

Характеристики:
- 1 линия
- Отдельная входная группа
- Своя парковка
- Есть возможность разместить вывеску
- Погрузка/разгрузка: Запасной вход
- Доступ по общему графику
- ХВС/ГВС
- Хороший ремонт
- Торговый/офисный центр
- Видеонаблюдение

Дополнительная информация:
Продается уникальная возможность приобрести действующий трехэтажный бизнес-центр, расположенный на пересечении оживленных улиц Ахтямова и Сары Садыковой в г.Казань. Общая площадь здания составляет внушительные 14 154 квадратных метров, что открывает множество перспектив для бизнеса. Земельные участки площадью 7 650 м2 и 3118 м2  обеспечивают дополнительное пространство для дальнейшего развития и расширения.

На территории бизнес-центра предусмотрены все необходимые коммуникации. Удобный доступ к транспортной инфраструктуре и развитая парковочная зона создают комфортные условия для сотрудников и клиентов.

Каждый этаж здания продуман с точки зрения функциональности и современных требований к офисным помещениям и торговым площадям. Такой бизнес-центр идеально подходит для размещения различных компаний.
Собственник готов обсудить условия сделки с заинтересованными лицами.

По всем вопросам можете обращаться к представителю собственника: Наталья Г. и Людмила К.

Перейти в карточку объекта в CRM: 117859.

Агентство Регионального Развития

+7 927 019-54-26

или оставьте ваш номер, и я перезвоню в течение 30 минут

Отправляя заявку вы соглашаетесь на обработку персональных данных

1 600 000 000 руб.

?

$ 19 780 902

€ 17 133 409

113 038 руб./м²


14154.5 м²

1/3 этажей

Код объекта

117859

Предложение доступно для субагентов, авторизуйтесь

Агентство Регионального Развития

+7 927 019-54-26

или оставьте ваш номер, и я перезвоню в течение 30 минут

Отправляя заявку вы соглашаетесь на обработку персональных данных

Похожие объявления

Посмотреть все похожие объявления
1/26
Код объекта: 376716.
Тип объекта: Готовый арендный бизнес.
Площадь: 13000 м².
Этаж / Этажность: 1 / 1.
1/26
Код объекта: 376716.
Тип объекта: Готовый арендный бизнес.
Площадь: 13000 м².
Этаж / Этажность: 1 / 1.
1/7
Код объекта: 296164.
Тип объекта: Производственное помещение.
Площадь: 2112 м².
Этаж / Этажность: 1 / 1.
1/7
Код объекта: 307612.
Тип объекта: Отдельно стоящее здание.
Площадь: 550 м².
Этаж / Этажность: 1 / 4.
1/18
Код объекта: 300972.
Тип объекта: Отдельно стоящее здание.
Площадь: 180 м².
Этаж / Этажность: 1 / 1.
1/11
Код объекта: 316050.
Тип объекта: Земельный участок.
Площадь: 10000 м².
1/21
Код объекта: 314115.
Тип объекта: Офисное помещение.
Площадь: 51.3 м².
Этаж / Этажность: 2 / 5.

Не хочу искать, перезвоните мне!

Оставьте номер телефона, наш специалист свяжется с вами и поможет с подбором недвижимости!