Отдельно стоящее здание

пр-кт Карла Маркса, д. 495а

91 000 000 руб.

?

$ 1 086

€ 979

14 000 руб./м²


6500 м²

1/2 этажей

Код объекта

124804

Предложение доступно для субагентов, авторизуйтесь

Отдельно стоящее здание

Код объекта: 124804.
Тип объекта: Отдельно стоящее здание.
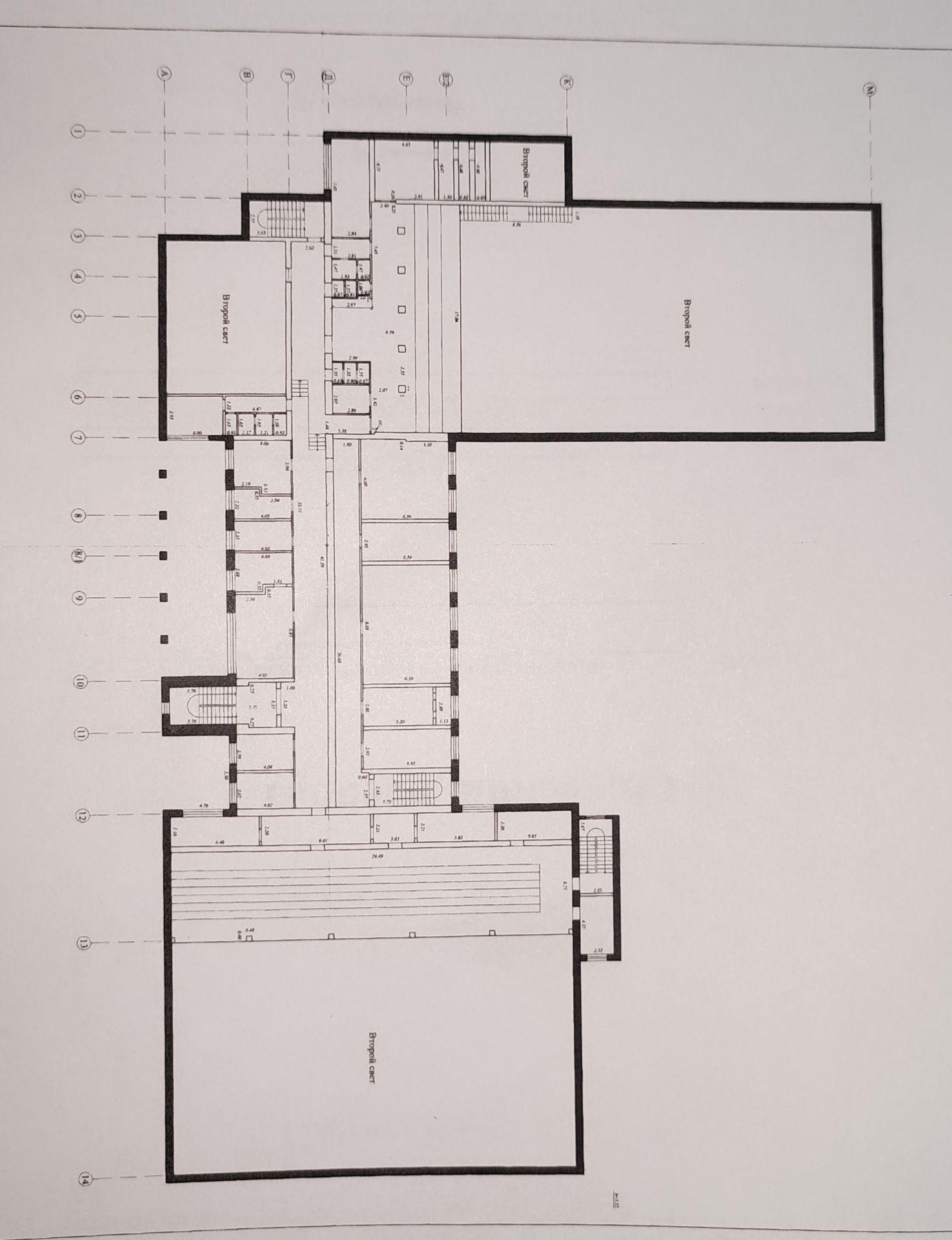
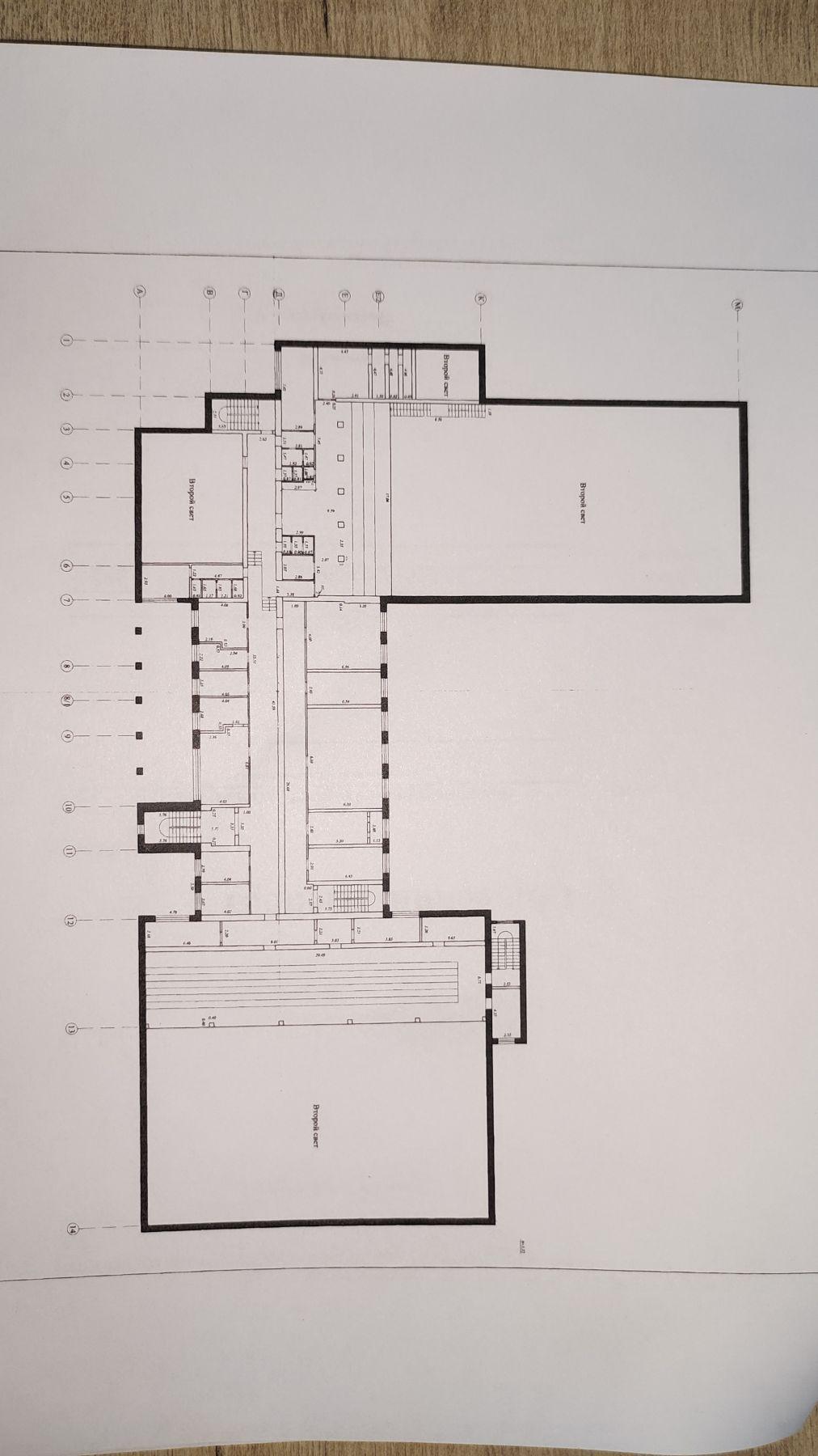
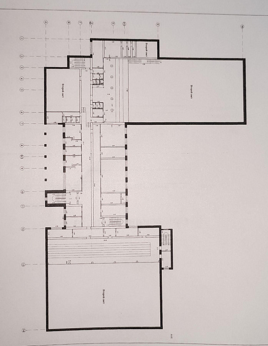
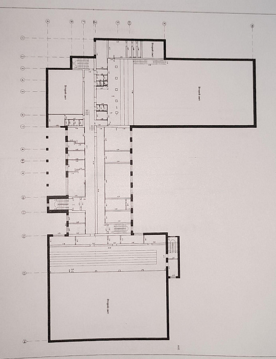
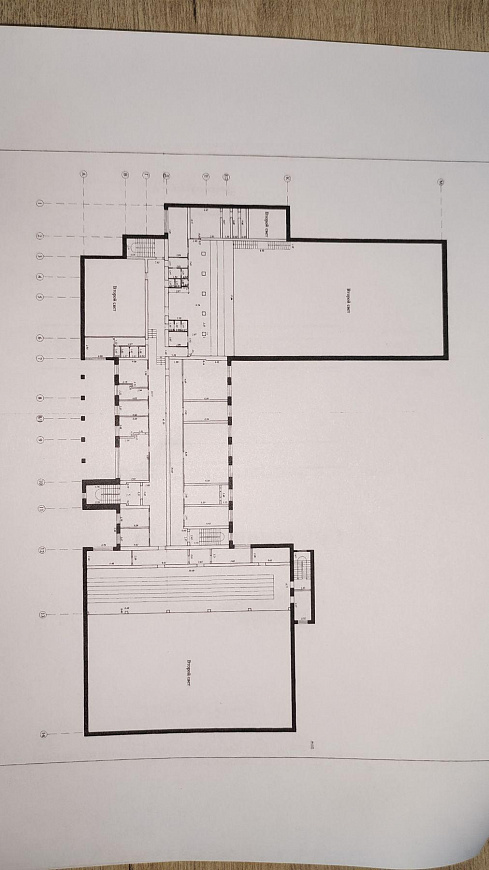
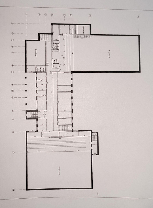
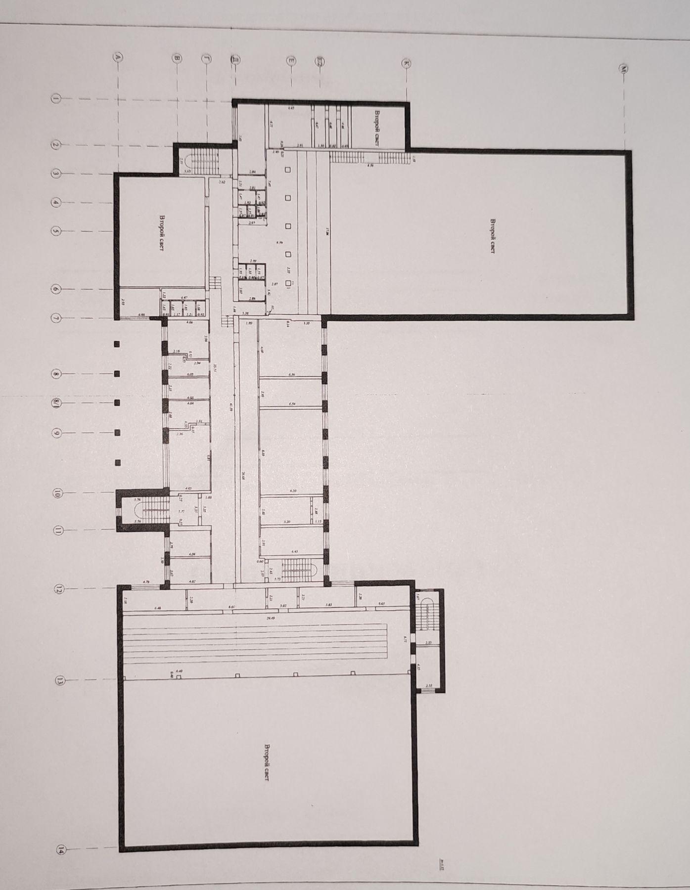
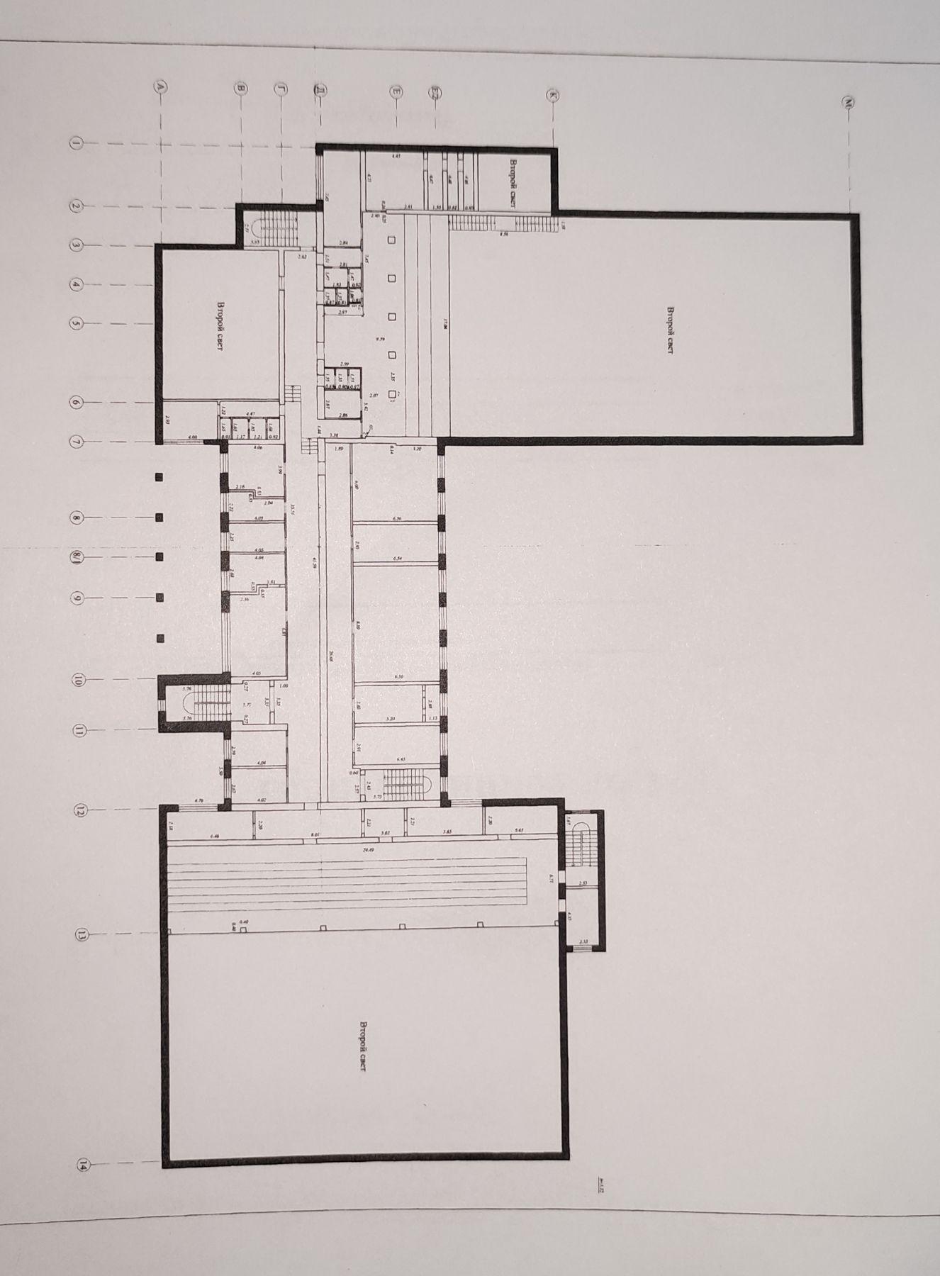
Площадь: 6500 м².
Этаж / Этажность: 1 / 2.

Описание и характеристики

От собственника! Без комиссии!

ПРОДАЕТСЯ ОТДЕЛЬНО СТОЯЩЕЕ АДМИНИСТРАТИВНО-ПРОИЗВОДСТВЕННОЕ ЗДАНИЕ
Адрес: г.Самара, проспект Карла Маркса, д.495а  
Идеально подходит для любых видов бизнеса!

ОСОБЕННОСТИ ОБЪЕКТА:
- Общая площадь: 6500 м².  
- Этажность: 2 этажа, с возможностью удобной организации пространства под различные нужды — от производства и складирования до офиса и детского центра.    
- Просторная входная группа с удобством подъезда транспорта прямо с улицы.  
- Доступ к объекту открыт круглосуточно согласно общеустановленному графику аренды помещений.  
- Удобный въезд на охраняемую уличную парковку с центральной магистрали города.

ТЕХНИЧЕСКИЕ ХАРАКТЕРИСТИКИ:
- Тип помещения: административно-производственное.  
- Черновые отделочные работы позволяют владельцу самостоятельно обустроить пространство под конкретные задачи своего бизнеса.  
- Покрытие полов: качественный бетон, идеально подходящий для производственной деятельности и хранения товаров.  
- Высота потолков достигает 9,2 метра, обеспечивая простор и свободу размещения оборудования любого формата.  
- Возможность самостоятельного обустройства коммуникаций, исходя из нужд будущего владельца.

ДОПОЛНИТЕЛЬНЫЕ ВОЗМОЖНОСТИ ИСПОЛЬЗОВАНИЯ:
- Организация офисов и административных зон высокой комфортности.  
- Открытие магазинов, фитнес-центров, столовых, детских центров и кафе быстрого питания.  
- Размещение производственных цехов и склада готовой продукции.  
- Проведение мероприятий отдыха и развлечений с привлечением большого количества посетителей.  
- Работа пекарен, студий красоты и предприятий бытового обслуживания населения.

Почему именно этот объект?
Потому что это идеальное решение для старта собственного дела или расширения существующего бизнеса с минимальными затратами на подготовку и максимальным потенциалом роста прибыли!

Свяжитесь прямо сейчас и получите выгодные условия покупки идеального производственного комплекса под любые виды коммерческой деятельности!

По всем вопросам можете обращаться к представителю собственника:Елена Т.
Помощь с оформлением ипотеки и покупки в лизинг.


Подписывайтесь на наш профиль, чтобы узнавать о новых локациях первыми!

Перейти в карточку объекта в CRM: 124804.

Агентство Регионального Развития

+7 927 019-54-26

или оставьте ваш номер, и я перезвоню в течение 30 минут

Отправляя заявку вы соглашаетесь на обработку персональных данных

91 000 000 руб.

?

$ 1 110 971

€ 976 859

14 000 руб./м²


6500 м²

1/2 этажей

Код объекта

124804

Предложение доступно для субагентов, авторизуйтесь

Агентство Регионального Развития

+7 927 019-54-26

или оставьте ваш номер, и я перезвоню в течение 30 минут

Отправляя заявку вы соглашаетесь на обработку персональных данных

Похожие объявления

Посмотреть все похожие объявления
1/21
Код объекта: 211699.
Тип объекта: Отдельно стоящее здание.
Площадь: 5500 м².
Этаж / Этажность: 1 / 3.
1/34
Код объекта: 300570.
Тип объекта: Отдельно стоящее здание.
Площадь: 3600 м².
Этаж / Этажность: 1 / 2.
1/12
Код объекта: 339350.
Тип объекта: Отдельно стоящее здание.
Площадь: 2700 м².
Этаж / Этажность: 1 / 3.
1/28
Код объекта: 336086.
Тип объекта: Отдельно стоящее здание.
Площадь: 708.1 м².
Этаж / Этажность: 1 / 4.
1/32
Код объекта: 251764.
Тип объекта: Отдельно стоящее здание.
Площадь: 3000 м².
Этаж / Этажность: 3 / 3.
1/21
Код объекта: 211699.
Тип объекта: Отдельно стоящее здание.
Площадь: 5500 м².
Этаж / Этажность: 1 / 3.
1/28
Код объекта: 367064.
Тип объекта: Отдельно стоящее здание.
Площадь: 5710 м².
Этаж / Этажность: 1 / 4.
1/16
Код объекта: 409865.
Тип объекта: Отдельно стоящее здание.
Площадь: 7301 м².
Этаж / Этажность: 1 / 1.
1/42
Код объекта: 252453.
Тип объекта: Отдельно стоящее здание.
Площадь: 7841.6 м².
Этаж / Этажность: 1 / 4.
1/32
Код объекта: 377695.
Тип объекта: Отдельно стоящее здание.
Площадь: 5164.9 м².
Этаж / Этажность: 1 / 5.
1/7
Код объекта: 296164.
Тип объекта: Производственное помещение.
Площадь: 2112 м².
Этаж / Этажность: 1 / 1.
1/11
Код объекта: 316050.
Тип объекта: Земельный участок.
Площадь: 10000 м².
1/21
Код объекта: 314115.
Тип объекта: Офисное помещение.
Площадь: 51.3 м².
Этаж / Этажность: 2 / 5.
1/19
Код объекта: 304943.
Тип объекта: Помещение свободного назначения.
Площадь: 1000 м².
Этаж / Этажность: 1 / 1.
1/25
Код объекта: 278377.
Тип объекта: Офисное помещение.
Площадь: 20 м².
Этаж / Этажность: 2 / 3.

Не хочу искать, перезвоните мне!

Оставьте номер телефона, наш специалист свяжется с вами и поможет с подбором недвижимости!