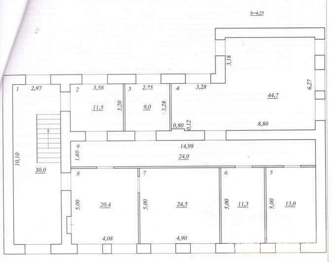
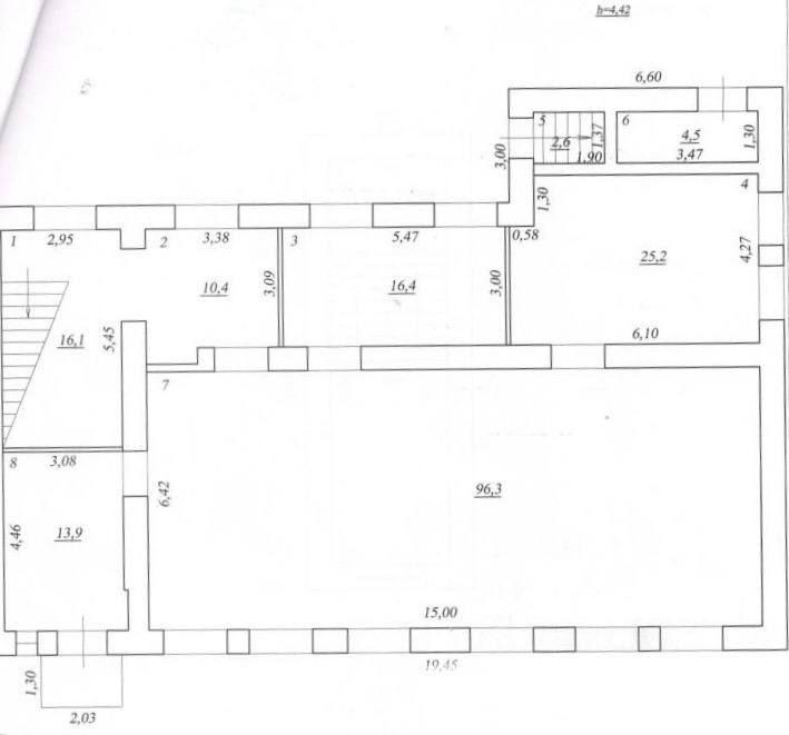
Здание 600 м2 на ул.Куйбышева на зем.участке 2,5 сотки

ул Куйбышева, д. 22

38 000 000 руб.

?

$ 1 086

€ 979

63 333 руб./м²


600 м²

1/3 этажей

Код объекта

118805

Предложение доступно для субагентов, авторизуйтесь

Здание 600 м2 на ул.Куйбышева на зем.участке 2,5 сотки

Код объекта: 118805.
Тип объекта: Отдельно стоящее здание.
Площадь: 600 м².
Этаж / Этажность: 1 / 3.

Описание и характеристики

От собственника! Без комиссии!

Характеристики:
- 2 линия
- Отдельная входная группа
- Общая парковка
- Доступ 24/7
- ХВС
- Свой санузел
- Центральное отопление
- Есть кондиционер
- Предчистовой ремонт
- Кабинетная планировка
- Отдельно стоящее здание
- Высота потолков 4.5 м
- С окнами

Дополнительная информация:
Здание кирпичное двухэтажное с мансардным этажом. Земельный участок 2,5 сотки в собственности. Огороженная территория, место для парковки автомобилей во дворе. . Своя котельная. Высота потолков на 1 и 2 этажах - 4,5 м, на мансардном этаже - 3,5 м. На каждом этаже санузел. Имеется собственный дворик . Небольшая асфальтированная общая парковка перед зданием . Все коммуникации на данный момент отключены , нужны новые ТУ .
Собственник физ.лицо.

По всем вопросам можете обращаться к представителю собственника: Диана М, Наталья Г
Помощь с оформлением ипотеки и покупки в лизинг.


Подписывайтесь на наш профиль, чтобы узнавать о новых локациях первыми!

Перейти в карточку объекта в CRM: 118805.

Агентство Регионального Развития

+7 927 019-54-26

или оставьте ваш номер, и я перезвоню в течение 30 минут

Отправляя заявку вы соглашаетесь на обработку персональных данных

38 000 000 руб.

?

$ 467 690

€ 407 402

63 333 руб./м²


600 м²

1/3 этажей

Код объекта

118805

Предложение доступно для субагентов, авторизуйтесь

Агентство Регионального Развития

+7 927 019-54-26

или оставьте ваш номер, и я перезвоню в течение 30 минут

Отправляя заявку вы соглашаетесь на обработку персональных данных

Похожие объявления

Посмотреть все похожие объявления
1/14
Код объекта: 255476.
Тип объекта: Отдельно стоящее здание.
Площадь: 280 м².
Этаж / Этажность: 2 / 2.
1/38
Код объекта: 379310.
Тип объекта: Отдельно стоящее здание.
Площадь: 2876 м².
Этаж / Этажность: 3 / 3.
1/28
Код объекта: 337630.
Тип объекта: Отдельно стоящее здание.
Площадь: 50000 м².
Этаж / Этажность: 1 / 1.
1/14
Код объекта: 256653.
Тип объекта: Отдельно стоящее здание.
Площадь: 1000 м².
Этаж / Этажность: 2 / 2.
1/11
Код объекта: 339075.
Тип объекта: Отдельно стоящее здание.
Площадь: 15000 м².
Этаж / Этажность: 1 / 1.
1/10
Код объекта: 230159.
Тип объекта: Отдельно стоящее здание.
Площадь: 700 м².
Этаж / Этажность: -1 / 2.
1/28
Код объекта: 336086.
Тип объекта: Отдельно стоящее здание.
Площадь: 708.1 м².
Этаж / Этажность: 1 / 4.
1/25
Код объекта: 307495.
Тип объекта: Отдельно стоящее здание.
Площадь: 683 м².
Этаж / Этажность: 1 / 2.
1/40
Код объекта: 341737.
Тип объекта: Отдельно стоящее здание.
Площадь: 508.8 м².
Этаж / Этажность: 1 / 1.
1/16
Код объекта: 238314.
Тип объекта: Отдельно стоящее здание.
Площадь: 520 м².
Этаж / Этажность: 1 / 1.
1/7
Код объекта: 296164.
Тип объекта: Производственное помещение.
Площадь: 2112 м².
Этаж / Этажность: 1 / 1.
1/11
Код объекта: 316050.
Тип объекта: Земельный участок.
Площадь: 10000 м².
1/21
Код объекта: 314115.
Тип объекта: Офисное помещение.
Площадь: 51.3 м².
Этаж / Этажность: 2 / 5.
1/19
Код объекта: 304943.
Тип объекта: Помещение свободного назначения.
Площадь: 1000 м².
Этаж / Этажность: 1 / 1.
1/25
Код объекта: 278377.
Тип объекта: Офисное помещение.
Площадь: 20 м².
Этаж / Этажность: 2 / 3.

Не хочу искать, перезвоните мне!

Оставьте номер телефона, наш специалист свяжется с вами и поможет с подбором недвижимости!