Универсальное помещение 80 м2

ул Больничная, д. 39

8 100 000 руб.

?

$ 1 086

€ 979

101 631 руб./м²


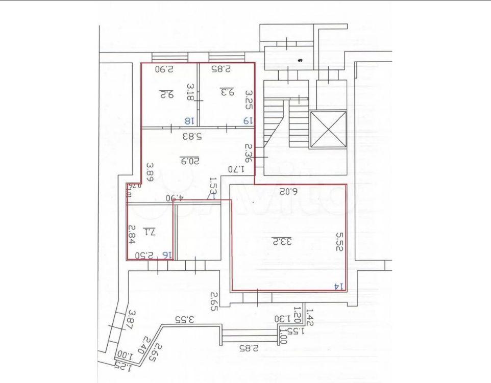
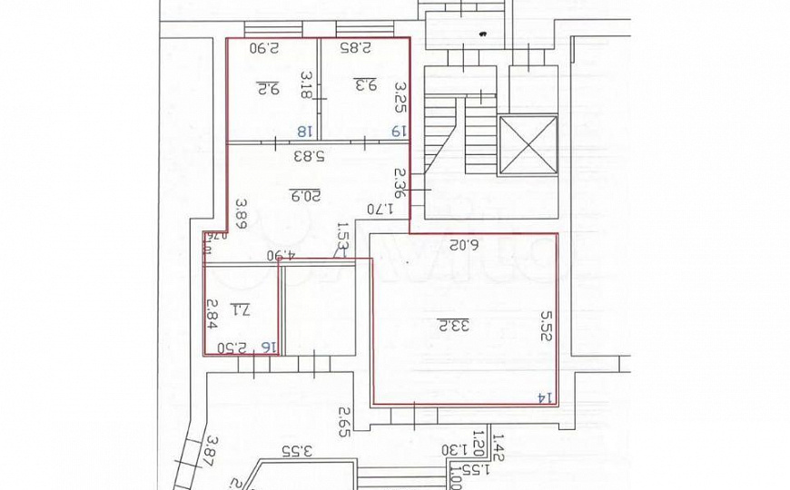
79.7 м²

-1/10 этажей

Код объекта

123414

Предложение доступно для субагентов, авторизуйтесь

Универсальное помещение 80 м2

Код объекта: 123414.
Тип объекта: Офисное помещение.
Площадь: 79.7 м².
Этаж / Этажность: -1 / 10.

Описание и характеристики

От собственника! Без комиссии!

Характеристики:
- Отдельная входная группа
- Своя парковка
- Доступ 24/7
- ХВС/ГВС
- Свой санузел
- Центральное отопление
- Хороший ремонт
- Кабинетная планировка
- Жилой дом
- Видеонаблюдение
- С окнами

Дополнительная информация:

Продажа универсального помещения, общей площадью 79,7 м2 по документам, по факту 90,7 м2, на цокольном этаже в 10-ти этажном жилом доме.

Имеются окна с решетками. Два входа. Есть возможность разделить помещение на два отдельных. Парковка перед входом. Возможность повесить вывеску. Высота потолков 2,5 м. Выделенная мощность 7 кВт с возможностью увеличения. Приточно-вытяжная вентиляция с фильтрацией и обогревом воздуха, охранно-пожарная сигнализация, система видеонаблюдения. Светильники - светодиодные. Пол - крупноформатный керамогранит, стены - окрашены, потолок - в зале натяжной, в остальных помещениях Армстронг. Остановка общественного транспорта в 70 м

В ближайшем окружении: офисный центр, супермаркет Пятёрочка, супермаркет Магнит, магазин Добрый день, стоматологический центр, магазин электротоваров, пекарня, магазин спортивного питания, салон красоты и пр.

Возможно под использовать под магазин, офис, склад, пункт выдачи и т.д. Удобное расположение. Активная бизнес локация. Развитая инфраструктура.

По всем вопросам можете обращаться к представителю собственника: Григорий.
Помощь с оформлением ипотеки и покупки в лизинг.


Подписывайтесь на наш профиль, чтобы узнавать о новых локациях первыми!

Перейти в карточку объекта в CRM: 123414.

Агентство Регионального Развития

+7 927 019-54-26

или оставьте ваш номер, и я перезвоню в течение 30 минут

Отправляя заявку вы соглашаетесь на обработку персональных данных

8 100 000 руб.

?

$ 100 141

€ 86 738

101 631 руб./м²


79.7 м²

-1/10 этажей

Код объекта

123414

Предложение доступно для субагентов, авторизуйтесь

Агентство Регионального Развития

+7 927 019-54-26

или оставьте ваш номер, и я перезвоню в течение 30 минут

Отправляя заявку вы соглашаетесь на обработку персональных данных

Похожие объявления

Посмотреть все похожие объявления
1/25
Код объекта: 275663.
Тип объекта: Офисное помещение.
Площадь: 108 м².
Этаж / Этажность: 2 / 3.
1/21
Код объекта: 314109.
Тип объекта: Офисное помещение.
Площадь: 52.1 м².
Этаж / Этажность: 2 / 5.
1/23
Код объекта: 343726.
Тип объекта: Офисное помещение.
Площадь: 31 м².
Этаж / Этажность: 1 / 5.
1/16
Код объекта: 316120.
Тип объекта: Офисное помещение.
Площадь: 30 м².
Этаж / Этажность: 1 / 16.
1/39
Код объекта: 336073.
Тип объекта: Офисное помещение.
Площадь: 72.8 м².
Этаж / Этажность: 4 / 5.
1/19
Код объекта: 308657.
Тип объекта: Офисное помещение.
Площадь: 67.1 м².
Этаж / Этажность: 1 / 5.
1/24
Код объекта: 342471.
Тип объекта: Офисное помещение.
Площадь: 60 м².
Этаж / Этажность: 1 / 2.
1/8
Код объекта: 253186.
Тип объекта: Офисное помещение.
Площадь: 73 м².
Этаж / Этажность: -1 / 5.
1/39
Код объекта: 336073.
Тип объекта: Офисное помещение.
Площадь: 72.8 м².
Этаж / Этажность: 4 / 5.
1/7
Код объекта: 296164.
Тип объекта: Производственное помещение.
Площадь: 2112 м².
Этаж / Этажность: 1 / 1.
1/7
Код объекта: 307612.
Тип объекта: Отдельно стоящее здание.
Площадь: 550 м².
Этаж / Этажность: 1 / 4.
1/18
Код объекта: 300972.
Тип объекта: Отдельно стоящее здание.
Площадь: 180 м².
Этаж / Этажность: 1 / 1.
1/11
Код объекта: 316050.
Тип объекта: Земельный участок.
Площадь: 10000 м².
1/21
Код объекта: 314115.
Тип объекта: Офисное помещение.
Площадь: 51.3 м².
Этаж / Этажность: 2 / 5.

Не хочу искать, перезвоните мне!

Оставьте номер телефона, наш специалист свяжется с вами и поможет с подбором недвижимости!