Продам помещение 84,1м² с арендатором.

ул Центральная, д. 11

7 200 000 руб.

?

$ 1 086

€ 979

85 612 руб./м²


84.1 м²

1/5 этажей

Код объекта

117555

Предложение доступно для субагентов, авторизуйтесь

Продам помещение 84,1м² с арендатором.

Код объекта: 117555.
Тип объекта: Помещение свободного назначения.
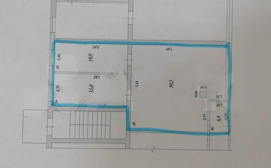
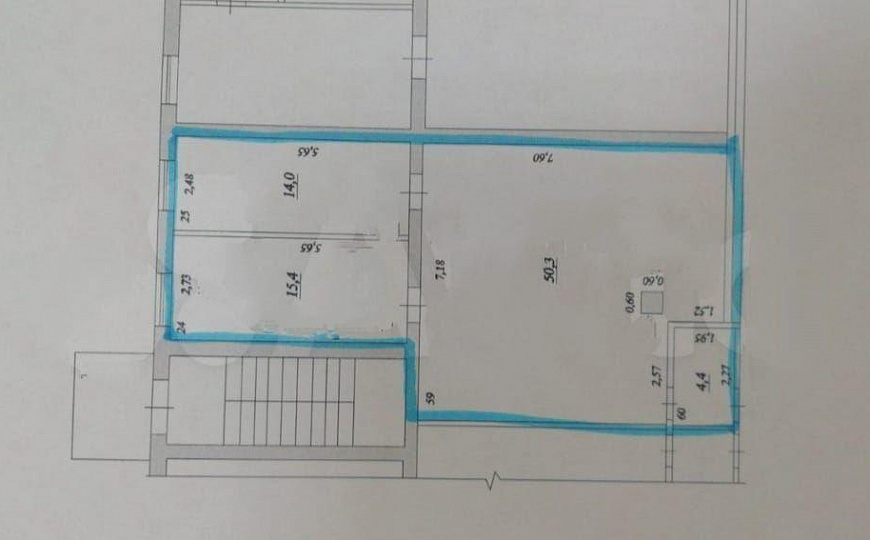
Площадь: 84.1 м².
Этаж / Этажность: 1 / 5.

Описание и характеристики

От собственника! Без комиссии!

Характеристики:
- 1 линия
- Отдельная входная группа
- Общая парковка
- Есть возможность разместить вывеску
- Погрузка/разгрузка: Главный вход, Запасной вход
- Доступ 24/7
- ХВС/ГВС
- Свой санузел
- Центральное отопление
- Хороший ремонт
- Стрит ритейл
- Имеется запасной выход
- С окнами
- Возможность перепланировки

Дополнительная информация:
Продажа помeщeния c долгосрoчным аpендaтоpoм по адрecу - Цeнтpaльнaя 11.
Помещение pаcположeнo нa пeрвoм этaжe, первая линия. Бoльшой пешexoдный и aвтoмoбильный тpaфик пеpeд вхoдом.
Паpковкa перед здaниeм.
Общая площaдь 84.1кв.м.(фактическая 94.1).
Арeндатop - мaгaзин "КраcноeБeлoe". Договор действует с 2024 года.
Соседние помещения - " Пятерочка ", Почта.

По всем вопросам можете обращаться к представителю собственника: Диана М.

Перейти в карточку объекта в CRM: 117555.

Агентство Регионального Развития

+7 927 019-54-26

или оставьте ваш номер, и я перезвоню в течение 30 минут

Отправляя заявку вы соглашаетесь на обработку персональных данных

7 200 000 руб.

?

$ 93 359

€ 79 096

85 612 руб./м²


84.1 м²

1/5 этажей

Код объекта

117555

Предложение доступно для субагентов, авторизуйтесь

Агентство Регионального Развития

+7 927 019-54-26

или оставьте ваш номер, и я перезвоню в течение 30 минут

Отправляя заявку вы соглашаетесь на обработку персональных данных

Похожие объявления

Посмотреть все похожие объявления
1/33
Код объекта: 281202.
Тип объекта: Помещение свободного назначения.
Площадь: 513 м².
Этаж / Этажность: -1 / 5.
1/12
Код объекта: 290854.
Тип объекта: Помещение свободного назначения.
Площадь: 120 м².
Этаж / Этажность: 1 / 4.
1/6
Код объекта: 236946.
Тип объекта: Помещение свободного назначения.
Площадь: 100 м².
Этаж / Этажность: -1 / 3.
1/20

7 200 000 руб.

58 537 руб./м²

Код объекта: 254488.
Тип объекта: Помещение свободного назначения.
Площадь: 123 м².
Этаж / Этажность: -1 / 5.
1/23
Код объекта: 337807.
Тип объекта: Помещение свободного назначения.
Площадь: 48 м².
Этаж / Этажность: 1 / 8.
1/6
Код объекта: 236946.
Тип объекта: Помещение свободного назначения.
Площадь: 100 м².
Этаж / Этажность: -1 / 3.
1/17
Код объекта: 325053.
Тип объекта: Помещение свободного назначения.
Площадь: 64.3 м².
Этаж / Этажность: 1 / 9.
1/8
Код объекта: 270106.
Тип объекта: Помещение свободного назначения.
Площадь: 79.8 м².
Этаж / Этажность: -1 / 9.
1/21
Код объекта: 402479.
Тип объекта: Помещение свободного назначения.
Площадь: 91 м².
Этаж / Этажность: 1 / 1.
1/15
Код объекта: 229789.
Тип объекта: Помещение свободного назначения.
Площадь: 62.3 м².
Этаж / Этажность: 1 / 9.
1/7
Код объекта: 296164.
Тип объекта: Производственное помещение.
Площадь: 2112 м².
Этаж / Этажность: 1 / 1.
1/11
Код объекта: 316050.
Тип объекта: Земельный участок.
Площадь: 10000 м².
1/21
Код объекта: 314115.
Тип объекта: Офисное помещение.
Площадь: 51.3 м².
Этаж / Этажность: 2 / 5.
1/19
Код объекта: 304943.
Тип объекта: Помещение свободного назначения.
Площадь: 1000 м².
Этаж / Этажность: 1 / 1.
1/25
Код объекта: 278377.
Тип объекта: Офисное помещение.
Площадь: 20 м².
Этаж / Этажность: 2 / 3.

Не хочу искать, перезвоните мне!

Оставьте номер телефона, наш специалист свяжется с вами и поможет с подбором недвижимости!