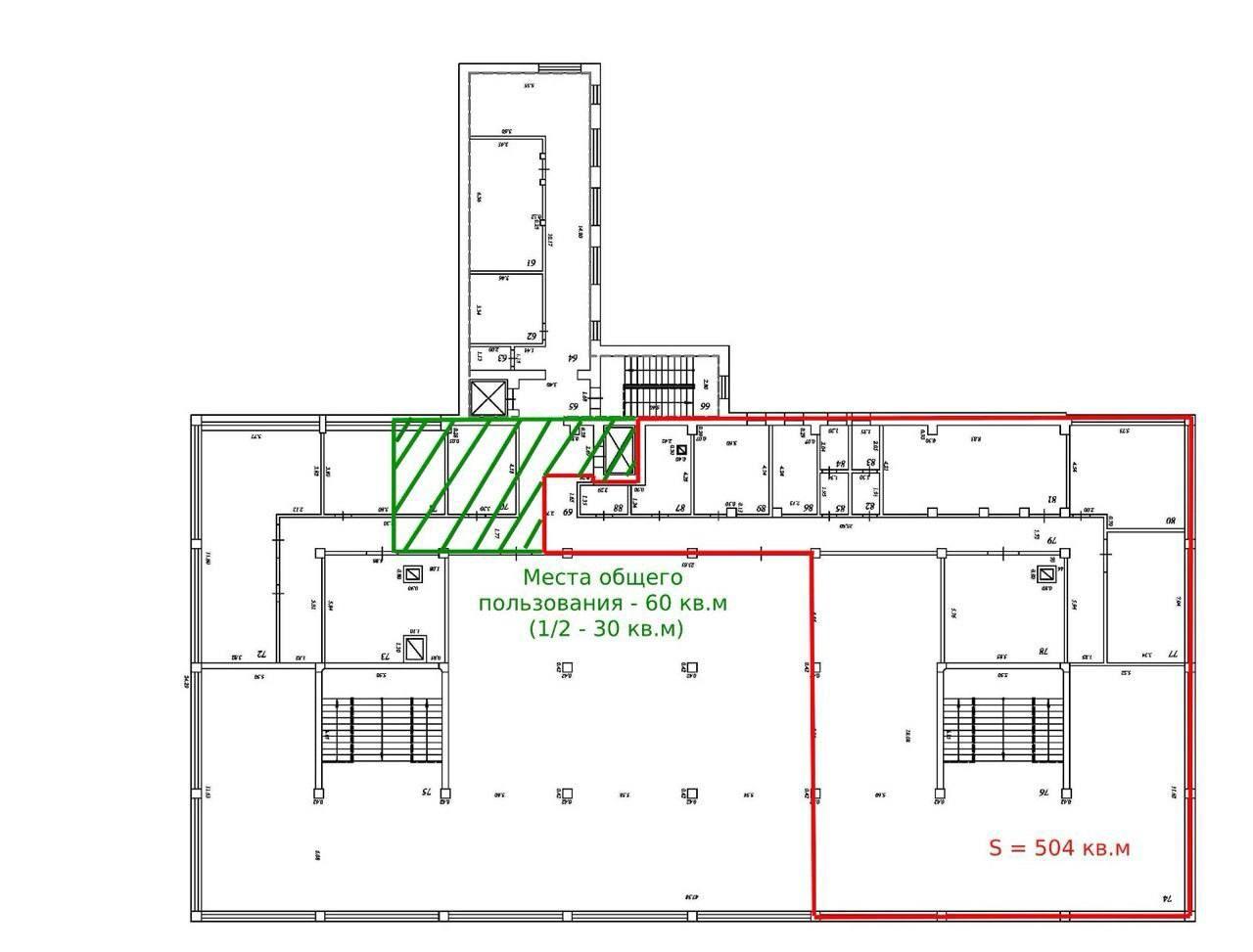
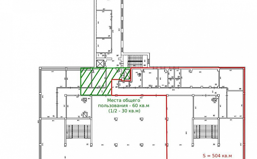
Помещение 504м в Торговом центре

Московское шоссе, д. 306а

453 600 руб.

?

$ 1 086

€ 979

900 руб./м²


504 м²

2/2 этажей

Код объекта

125917

Предложение доступно для субагентов, авторизуйтесь

Помещение 504м в Торговом центре

Код объекта: 125917.
Тип объекта: Бизнес-центр/офисный центр.
Площадь: 504 м².
Этаж / Этажность: 2 / 2.

Описание и характеристики

От собственника! Без комиссии!

Характеристики:
- 1 линия
- Общая входная группа
- Общая парковка
- Есть возможность разместить вывеску
- Погрузка/разгрузка: Главный вход, Запасной вход
- Доступ по общему графику
- ХВС/ГВС
- Свой санузел
- Центральное отопление
- Есть кондиционер
- Хороший ремонт
- Торговый/офисный центр
- Имеется запасной выход
- С окнами
- Возможность перепланировки
- Видеонаблюдение
- Коммунальные услуги оплачиваются отдельно

Дополнительная информация:
Описание помещения

просторное торговое помещение площадью 504 м², расположенное по адресу: Московское шоссе, д. 306А в ТЦ Квадрат.

▌ Основные характеристики:

- Площадь: 504 м²
- Расположение: второй этаж торгового центра, расположенного напротив популярного ТЦ «Эль Рио»
- Первый этаж занимает супермаркет «Пятёрочка», обеспечивающий дополнительный поток покупателей
- Высокий пешеходный трафик
- Собственная парковка
- Наличие отдельного санузла
- Высота потолков — 3,5 метра

▌ Преимущества размещения бизнеса в данном помещении:

- Удобная транспортная доступность и близость крупных магистралей
- Хорошее освещение и возможность организации привлекательного витринного пространства
- Возможность быстрого привлечения клиентов за счёт близости крупного супермаркета , магистрали.

Предложенное помещение подходит для различных форматов торговли, включая розничные магазины, салоны красоты, фитнес-центры, кафе и рестораны, офисы обслуживания и многое

По всем вопросам можете обращаться к представителю собственника: Ирина Л.
Помощь с оформлением ипотеки и покупки в лизинг.


Подписывайтесь на наш профиль, чтобы узнавать о новых локациях первыми!

Перейти в карточку объекта в CRM: 125917.

Агентство Регионального Развития

+7 927 019-54-26

или оставьте ваш номер, и я перезвоню в течение 30 минут

Отправляя заявку вы соглашаетесь на обработку персональных данных

453 600 руб.

?

$ 5 783

€ 4 905

900 руб./м²


504 м²

2/2 этажей

Код объекта

125917

Предложение доступно для субагентов, авторизуйтесь

Агентство Регионального Развития

+7 927 019-54-26

или оставьте ваш номер, и я перезвоню в течение 30 минут

Отправляя заявку вы соглашаетесь на обработку персональных данных

Похожие объявления

Посмотреть все похожие объявления
1/20
Код объекта: 342299.
Тип объекта: Бизнес-центр/офисный центр.
Площадь: 337 м².
Этаж / Этажность: 6 / 8.
1/14
Код объекта: 403401.
Тип объекта: Бизнес-центр/офисный центр.
Площадь: 390 м².
Этаж / Этажность: 1 / 3.
1/16
Код объекта: 252124.
Тип объекта: Бизнес-центр/офисный центр.
Площадь: 610 м².
Этаж / Этажность: -1 / 7.
1/26
Код объекта: 307426.
Тип объекта: Бизнес-центр/офисный центр.
Площадь: 350 м².
Этаж / Этажность: 2 / 4.
1/22
Код объекта: 314265.
Тип объекта: Бизнес-центр/офисный центр.
Площадь: 600 м².
Этаж / Этажность: 2 / 3.
1/11
Код объекта: 278865.
Тип объекта: Бизнес-центр/офисный центр.
Площадь: 500 м².
Этаж / Этажность: 1 / 5.
1/10
Код объекта: 394356.
Тип объекта: Бизнес-центр/офисный центр.
Площадь: 400 м².
Этаж / Этажность: 2 / 2.
1/14
Код объекта: 403401.
Тип объекта: Бизнес-центр/офисный центр.
Площадь: 390 м².
Этаж / Этажность: 1 / 3.
1/15
Код объекта: 402214.
Тип объекта: Бизнес-центр/офисный центр.
Площадь: 363 м².
Этаж / Этажность: 1 / 5.
1/16
Код объекта: 252124.
Тип объекта: Бизнес-центр/офисный центр.
Площадь: 610 м².
Этаж / Этажность: -1 / 7.
1/7
Код объекта: 296164.
Тип объекта: Производственное помещение.
Площадь: 2112 м².
Этаж / Этажность: 1 / 1.
1/11
Код объекта: 316050.
Тип объекта: Земельный участок.
Площадь: 10000 м².
1/21
Код объекта: 314115.
Тип объекта: Офисное помещение.
Площадь: 51.3 м².
Этаж / Этажность: 2 / 5.
1/19
Код объекта: 304943.
Тип объекта: Помещение свободного назначения.
Площадь: 1000 м².
Этаж / Этажность: 1 / 1.
1/21
Код объекта: 282251.
Тип объекта: Складское помещение.
Площадь: 95600 м².
Этаж / Этажность: 1 / 1.

Не хочу искать, перезвоните мне!

Оставьте номер телефона, наш специалист свяжется с вами и поможет с подбором недвижимости!