Объявление снято с публикации Посмотреть все похожие объявления

Помещение свободного назначения, 280 м²

ул Некрасовская, д. 54

170 000 руб.

?

$ 1 086

€ 979

607 руб./м²


280 м²

1/2 этажей

Код объекта

124004

Предложение доступно для субагентов, авторизуйтесь

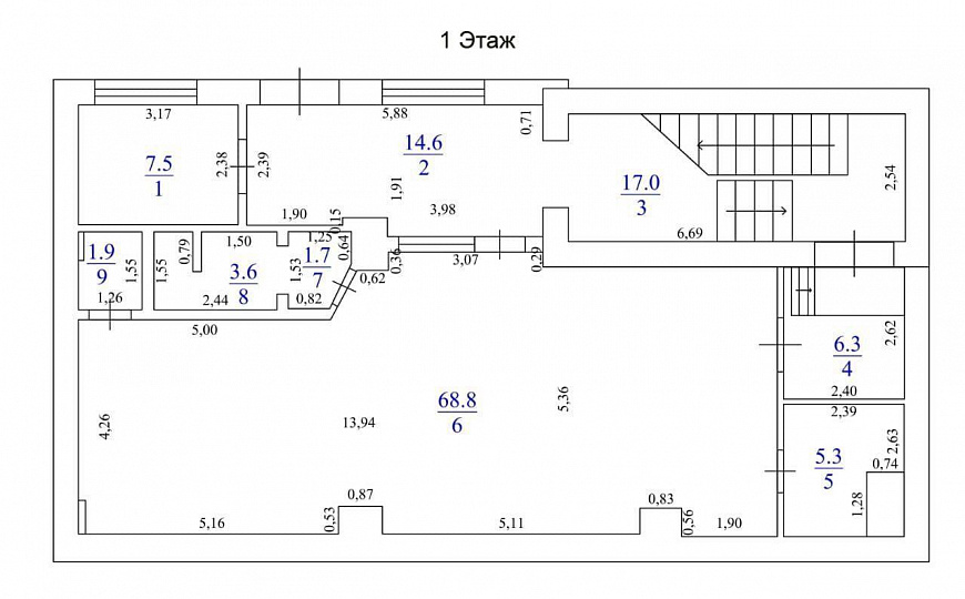
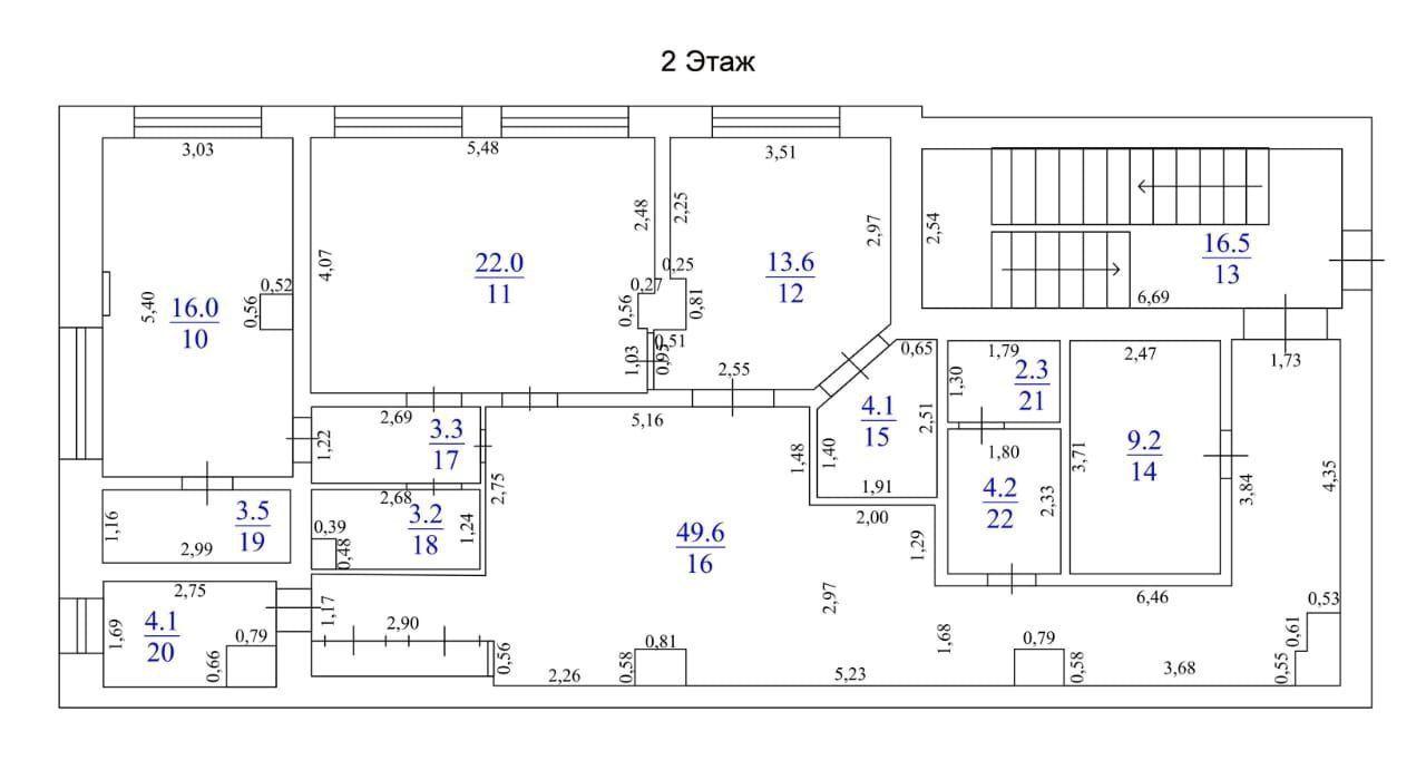
Помещение свободного назначения, 280 м²

Код объекта: 124004.
Тип объекта: Отдельно стоящее здание.
Площадь: 280 м².
Этаж / Этажность: 1 / 2.

Описание и характеристики

От собственника! Без комиссии!

Идеальное помещение для вашего бизнеса!

-Отдельно стоящий объект с выделенной входной группой — идеальный выбор для представительства вашей компании.
-Полностью оборудовано для комфортной работы сотрудников: кабинетная планировка, высота потолков 3 метра, отличный ремонт и собственный санузел.
-Комфорт и безопасность гарантированы видеонаблюдением и круглосуточным доступом.
-Все удобства рядом: кафе, столовые, магазины и банки — ваш бизнес всегда под рукой!
-Система кондиционирования обеспечивает комфорт в любое время года.
-Экономия ваших ресурсов: коммунальные платежи оплачиваются отдельно от аренды.
-Отличное месторасположение: вторая линия, общая парковка обеспечит удобный подъезд вашим клиентам и сотрудникам.

Хотите арендовать идеальное пространство для своего бизнеса?
Свяжитесь с нами прямо сейчас!

Примечание: коммунальный сервис оплачивается дополнительно.

Характеристики:
- 2 линия
- Отдельная входная группа
- Общая парковка
- Доступ 24/7
- ХВС/Бойлер
- Свой санузел
- Центральное отопление
- Есть кондиционер
- Хороший ремонт
- Кабинетная планировка
- Отдельно стоящее здание
- Без лифта
- Высота потолков 3 м
- Видеонаблюдение
- С окнами
- Инфраструктура: Кафе/столовые, Магазины, Банки
- Коммунальные услуги оплачиваются отдельно

По всем вопросам можете обращаться к представителю собственника: Ирина Р.
Помощь с оформлением ипотеки и покупки в лизинг.


Подписывайтесь на наш профиль, чтобы узнавать о новых локациях первыми!

Перейти в карточку объекта в CRM: 124004.

Агентство Регионального Развития

+7 927 019-54-26

или оставьте ваш номер, и я перезвоню в течение 30 минут

Отправляя заявку вы соглашаетесь на обработку персональных данных

170 000 руб.

?

$ 2 193

€ 1 874

607 руб./м²


280 м²

1/2 этажей

Код объекта

124004

К сожалению, этот объект уже сдан или продан. Но вы можете посмотреть похожие варианты или воспользоваться бесплатной услугой подбора подходящего помещения (участка). Для этого оставьте телефон в форме ниже

Агентство Регионального Развития

+7 927 019-54-26

или оставьте ваш номер, и я перезвоню в течение 30 минут

Отправляя заявку вы соглашаетесь на обработку персональных данных

Объявление снято с публикации

Похожие объявления

Посмотреть все похожие объявления
1/33
Код объекта: 260841.
Тип объекта: Отдельно стоящее здание.
Площадь: 260 м².
Этаж / Этажность: 2 / 3.
1/23
Код объекта: 260837.
Тип объекта: Отдельно стоящее здание.
Площадь: 300 м².
Этаж / Этажность: 1 / 3.
1/33
Код объекта: 350647.
Тип объекта: Отдельно стоящее здание.
Площадь: 317 м².
Этаж / Этажность: 1 / 1.
1/33
Код объекта: 337913.
Тип объекта: Отдельно стоящее здание.
Площадь: 67.5 м².
Этаж / Этажность: 1 / 1.
1/40
Код объекта: 344114.
Тип объекта: Отдельно стоящее здание.
Площадь: 284.3 м².
Этаж / Этажность: 1 / 5.
1/33
Код объекта: 260841.
Тип объекта: Отдельно стоящее здание.
Площадь: 260 м².
Этаж / Этажность: 2 / 3.
1/23
Код объекта: 260837.
Тип объекта: Отдельно стоящее здание.
Площадь: 300 м².
Этаж / Этажность: 1 / 3.
1/33
Код объекта: 350647.
Тип объекта: Отдельно стоящее здание.
Площадь: 317 м².
Этаж / Этажность: 1 / 1.
1/15
Код объекта: 350595.
Тип объекта: Отдельно стоящее здание.
Площадь: 300 м².
Этаж / Этажность: 1 / 2.
1/16
Код объекта: 376880.
Тип объекта: Отдельно стоящее здание.
Площадь: 267.7 м².
Этаж / Этажность: 1 / 1.
1/7
Код объекта: 296164.
Тип объекта: Производственное помещение.
Площадь: 2112 м².
Этаж / Этажность: 1 / 1.
1/11
Код объекта: 316050.
Тип объекта: Земельный участок.
Площадь: 10000 м².
1/21
Код объекта: 314115.
Тип объекта: Офисное помещение.
Площадь: 51.3 м².
Этаж / Этажность: 2 / 5.
1/19
Код объекта: 304943.
Тип объекта: Помещение свободного назначения.
Площадь: 1000 м².
Этаж / Этажность: 1 / 1.
1/21
Код объекта: 282251.
Тип объекта: Складское помещение.
Площадь: 95600 м².
Этаж / Этажность: 1 / 1.

Не хочу искать, перезвоните мне!

Оставьте номер телефона, наш специалист свяжется с вами и поможет с подбором недвижимости!