Гостиница, санаторий, пансионат, 2 000 м²

ул Огородная, д. 80

800 000 руб.

?

$ 1 086

€ 979

400 руб./м²


2000 м²

1/1 этажей

Код объекта

134164

Предложение доступно для субагентов, авторизуйтесь

Гостиница, санаторий, пансионат, 2 000 м²

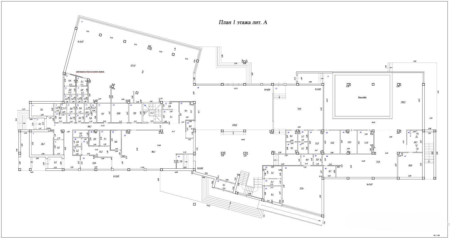
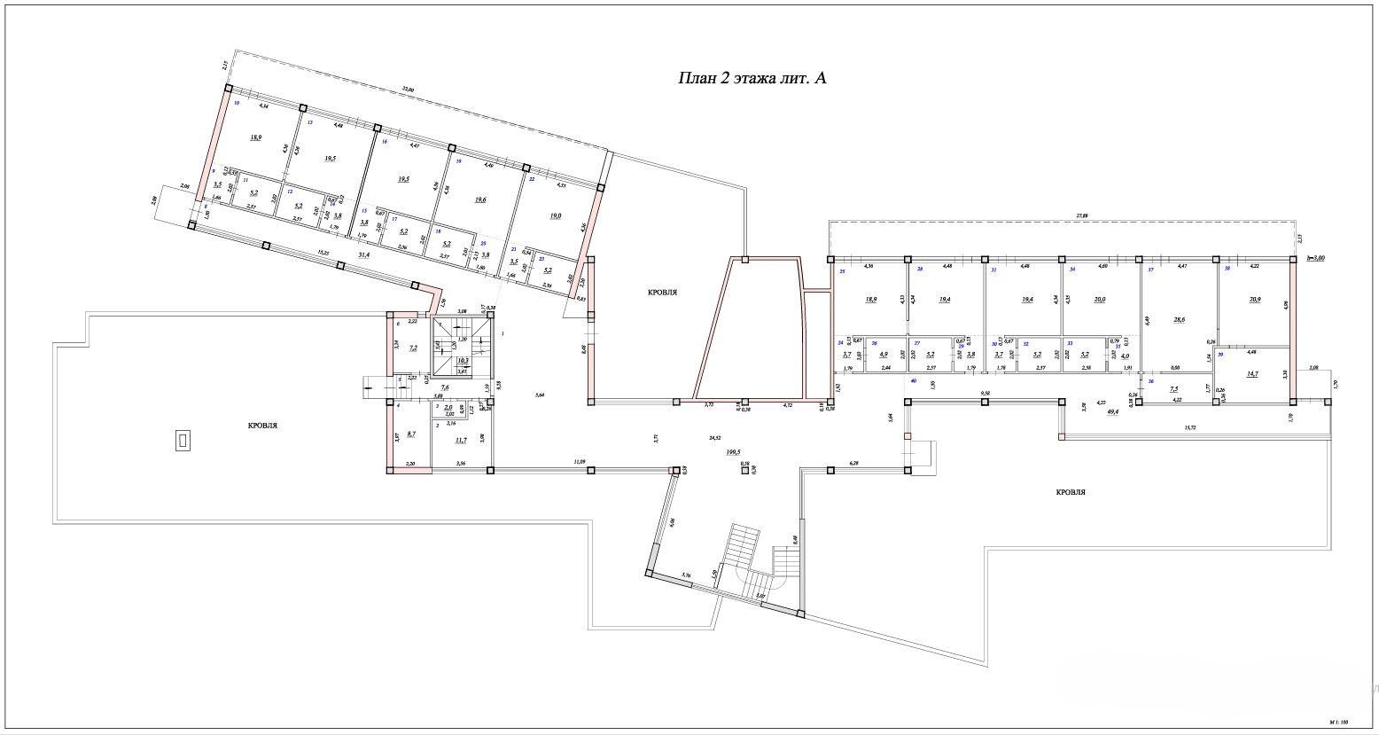
Код объекта: 134164.
Тип объекта: Отдельно стоящее здание.
Площадь: 2000 м².
Этаж / Этажность: 1 / 1.

Описание и характеристики

От собственника! Без комиссии!

Сдаётся в аренду 3-х этажный гостиничный комплекс, общей площадью 2000 м2, на берегу живописного озера в с. Бобровка Кинельского р-на. Строение и земля в собственности. Назначение земли - туризм.

Гостиничный комплекс располагается на территории рыболовного клуба. Номерной фонд - 10 номеров. Возможна реконструкция. Выделенная мощность 250 кВт. Газ, собственная котельная. Две скважины, заведены в строение. Предчистовая отделка. Тёплые полы. В наличии плитка, сантехника, обои, мебель. Арендные каникулы в счёт ремонта. Асфальтированная дорога до здания. Большая парковка.

Возможное использование: гостиница, туристический комплекс, спортивно-развлекательный центр, санаторий, пансионат и прочее.
Живописное место, красивое озеро, беседки, рыбалка, возможна организация отдыха на воде.

По всем вопросам можете обращаться к представителю собственника: Григорий.

Перейти в карточку объекта в CRM: 134164.

Агентство Регионального Развития

+7 927 019-54-26

или оставьте ваш номер, и я перезвоню в течение 30 минут

Отправляя заявку вы соглашаетесь на обработку персональных данных

800 000 руб.

?

$ 10 519

€ 8 926

400 руб./м²


2000 м²

1/1 этажей

Код объекта

134164

Предложение доступно для субагентов, авторизуйтесь

Агентство Регионального Развития

+7 927 019-54-26

или оставьте ваш номер, и я перезвоню в течение 30 минут

Отправляя заявку вы соглашаетесь на обработку персональных данных

Похожие объявления

Посмотреть все похожие объявления
1/13
Код объекта: 297752.
Тип объекта: Отдельно стоящее здание.
Площадь: 673 м².
Этаж / Этажность: 2 / 2.
1/26
Код объекта: 263205.
Тип объекта: Отдельно стоящее здание.
Площадь: 1278.1 м².
Этаж / Этажность: 1 / 3.
1/30
Код объекта: 260838.
Тип объекта: Отдельно стоящее здание.
Площадь: 2600 м².
Этаж / Этажность: -1 / 3.
1/20
Код объекта: 338511.
Тип объекта: Отдельно стоящее здание.
Площадь: 1000 м².
Этаж / Этажность: 1 / 1.
1/18
Код объекта: 255910.
Тип объекта: Отдельно стоящее здание.
Площадь: 415.3 м².
Этаж / Этажность: 1 / 2.
1/8
Код объекта: 269087.
Тип объекта: Отдельно стоящее здание.
Площадь: 2188 м².
Этаж / Этажность: 1 / 4.
1/19
Код объекта: 263478.
Тип объекта: Отдельно стоящее здание.
Площадь: 1500 м².
Этаж / Этажность: 1 / 1.
1/23
Код объекта: 410083.
Тип объекта: Отдельно стоящее здание.
Площадь: 2400 м².
Этаж / Этажность: 3 / 4.
1/18
Код объекта: 422559.
Тип объекта: Отдельно стоящее здание.
Площадь: 2327.7 м².
Этаж / Этажность: 1 / 3.
1/30
Код объекта: 260838.
Тип объекта: Отдельно стоящее здание.
Площадь: 2600 м².
Этаж / Этажность: -1 / 3.
1/21
Код объекта: 211699.
Тип объекта: Отдельно стоящее здание.
Площадь: 5500 м².
Этаж / Этажность: 1 / 3.
1/34
Код объекта: 300570.
Тип объекта: Отдельно стоящее здание.
Площадь: 3600 м².
Этаж / Этажность: 1 / 2.
1/33
Код объекта: 335003.
Тип объекта: Помещение свободного назначения.
Площадь: 1385 м².
Этаж / Этажность: 1 / 3.
1/39
1/7
Код объекта: 335251.
Тип объекта: Производственное помещение.
Площадь: 3500 м².
Этаж / Этажность: 1 / 1.

Не хочу искать, перезвоните мне!

Оставьте номер телефона, наш специалист свяжется с вами и поможет с подбором недвижимости!