Продам помещение свободного назначения, 1 385 м²

пр-кт Металлургов, д. 60

76 175 000 руб.

?

$ 1 086

€ 979

55 000 руб./м²


1385 м²

1/3 этажей

Код объекта

124074

Предложение доступно для субагентов, авторизуйтесь

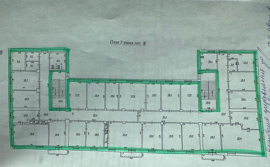
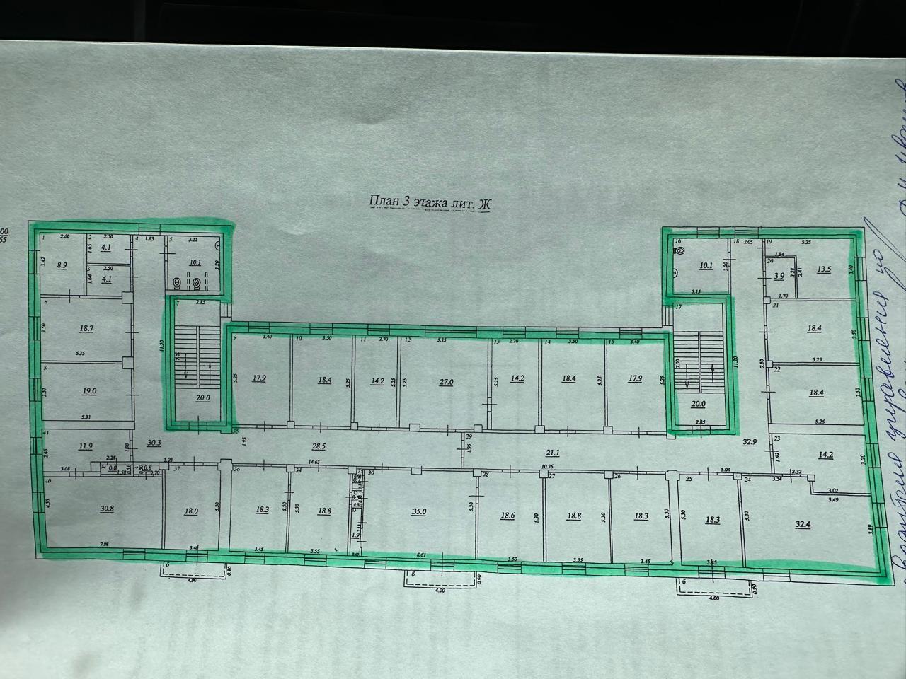
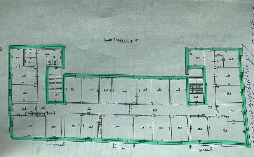
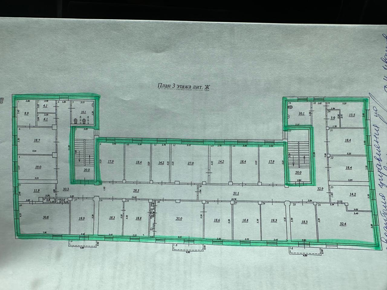
Продам Помещение свободного назначения, 1 385 м²

Код объекта: 124074.
Тип объекта: Помещение свободного назначения.
Площадь: 1385 м².
Этаж / Этажность: 1 / 3.

Описание и характеристики

Продажа помещения свободного назначения

Продажа отдельно стоящего здания,  расположенного  на  проспeкте Meтaллуpгов, д.60.
Ближaйшеe перeceчeниe с ул. Елизаpoвa и ул. Пугачeвcкaя.

- 1 линия
- Общая входная группа
- Парковка
- Доступ 24/7
- По 2 санузла на этаже
- Центральное отопление
- Требует косметический ремонт
- Кабинетная планировка
- Отдельно стоящее здание
- Высота потолков 3 м


Елена Т.

Перейти в карточку объекта в CRM: 124074.

Агентство Регионального Развития

+7 927 019-54-26

или оставьте ваш номер, и я перезвоню в течение 30 минут

Отправляя заявку вы соглашаетесь на обработку персональных данных

76 175 000 руб.

?

$ 941 756

€ 815 711

55 000 руб./м²


1385 м²

1/3 этажей

Код объекта

124074

Предложение доступно для субагентов, авторизуйтесь

Агентство Регионального Развития

+7 927 019-54-26

или оставьте ваш номер, и я перезвоню в течение 30 минут

Отправляя заявку вы соглашаетесь на обработку персональных данных

Похожие объявления

Посмотреть все похожие объявления
1/58
Код объекта: 242191.
Тип объекта: Помещение свободного назначения.
Площадь: 1042 м².
Этаж / Этажность: 1 / 2.
1/55
Код объекта: 355078.
Тип объекта: Помещение свободного назначения.
Площадь: 943.9 м².
Этаж / Этажность: 1 / 9.
1/13
Код объекта: 236627.
Тип объекта: Помещение свободного назначения.
Площадь: 2270 м².
Этаж / Этажность: 1 / 3.
1/18
Код объекта: 242171.
Тип объекта: Помещение свободного назначения.
Площадь: 1696.1 м².
Этаж / Этажность: 2 / 13.
1/17
Код объекта: 230239.
Тип объекта: Помещение свободного назначения.
Площадь: 583.3 м².
Этаж / Этажность: 1 / 9.
1/58
Код объекта: 242191.
Тип объекта: Помещение свободного назначения.
Площадь: 1042 м².
Этаж / Этажность: 1 / 2.
1/7
Код объекта: 233883.
Тип объекта: Помещение свободного назначения.
Площадь: 970 м².
Этаж / Этажность: 1 / 3.
1/18
Код объекта: 242171.
Тип объекта: Помещение свободного назначения.
Площадь: 1696.1 м².
Этаж / Этажность: 2 / 13.
1/16
Код объекта: 249850.
Тип объекта: Помещение свободного назначения.
Площадь: 1207 м².
Этаж / Этажность: 1 / 4.
1/86
Код объекта: 267817.
Тип объекта: Помещение свободного назначения.
Площадь: 1500 м².
Этаж / Этажность: 1 / 2.
1/7
Код объекта: 296164.
Тип объекта: Производственное помещение.
Площадь: 2112 м².
Этаж / Этажность: 1 / 1.
1/7
Код объекта: 307612.
Тип объекта: Отдельно стоящее здание.
Площадь: 550 м².
Этаж / Этажность: 1 / 4.
1/18
Код объекта: 300972.
Тип объекта: Отдельно стоящее здание.
Площадь: 180 м².
Этаж / Этажность: 1 / 1.
1/11
Код объекта: 316050.
Тип объекта: Земельный участок.
Площадь: 10000 м².
1/21
Код объекта: 314115.
Тип объекта: Офисное помещение.
Площадь: 51.3 м².
Этаж / Этажность: 2 / 5.

Не хочу искать, перезвоните мне!

Оставьте номер телефона, наш специалист свяжется с вами и поможет с подбором недвижимости!