Сдам отдельно стоящее здание, 70 м²

поселок Зубчаниновка, ул Изыскательская, д. 34

14 000 руб.

?

$ 1 086

€ 979

200 руб./м²


70 м²

1/2 этажей

Код объекта

97938

Предложение доступно для субагентов, авторизуйтесь

Сдам отдельно стоящее здание, 70 м²

Код объекта: 97938.
Тип объекта: Складское помещение.
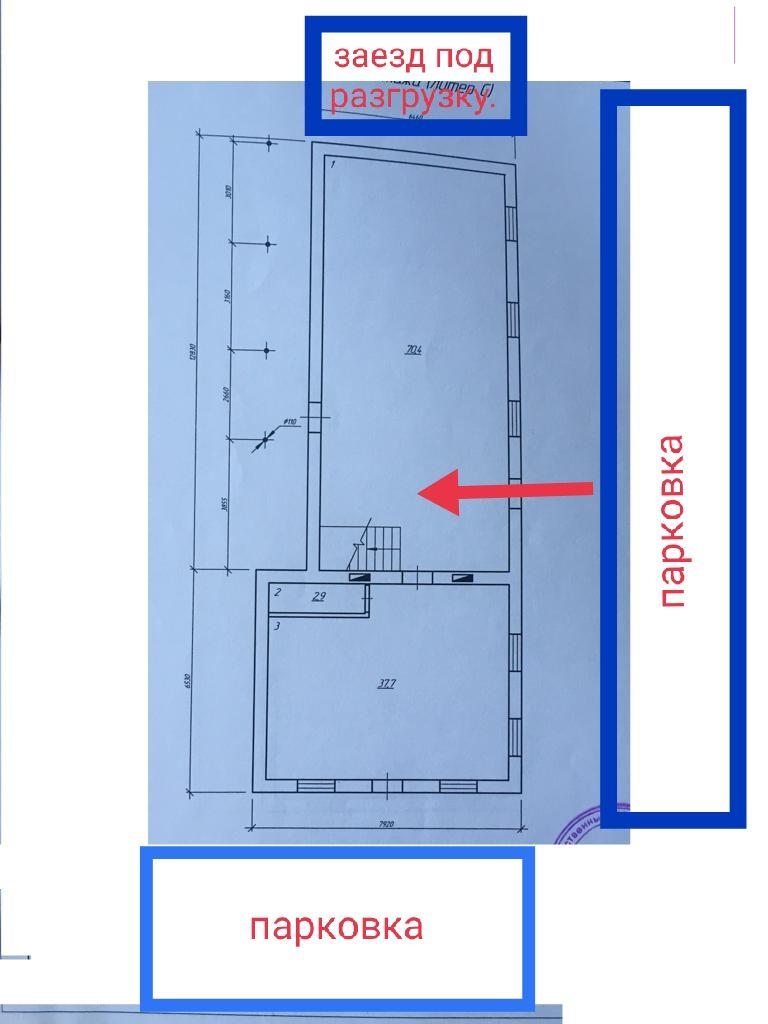
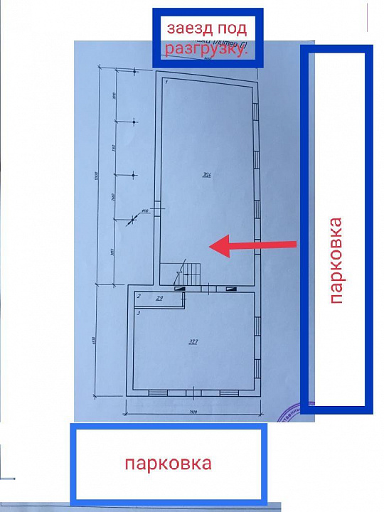
Площадь: 70 м².
Этаж / Этажность: 1 / 2.

Описание и характеристики

Сдам помещение в проходном месте.

Сдаю в аренду  помещение на оживленной улице в п.Зубчаниновка.
У Вас есть уникальная возможность первым снять помещение в проходном месте в п.Зубчаниновка.
Большой поток родителей и учеников 34 школы,которая в 200 метров от магазина обеспечит Вам стабильную выручку.
Отдельный вход с ул Транзитная.
Возможность парковки прямо перед входом.
Большой трафик.
Школа в достаточной удаленности для алкогольной лицензии.
Вы вкладываетесь в ремонт и получаете помещение с низкой арендой на несколько лет.
Договоренности закрепим любым удобным для Вас способом.
Заведено 30 кВт.
Вода и водоотведение централизованные
Есть возможность дополнительного входа для погрузо разгрузочных работ.
На 2 этаже можно организовать офис или дополнительный склад продукции.
Также сделаем ремонт под вас.
Рассмотрим любые условия.
Звоните прямо сейчас.
Мы обязательно договоримся по условиям и  времени показа помещения .

Александр
Помощь с оформлением ипотеки и покупки в лизинг.


Подписывайтесь на наш профиль, чтобы узнавать о новых локациях первыми!

Перейти в карточку объекта в CRM: 97938.

Агентство Регионального Развития

+7 927 019-54-26

или оставьте ваш номер, и я перезвоню в течение 30 минут

Отправляя заявку вы соглашаетесь на обработку персональных данных

14 000 руб.

?

$ 182

€ 156

200 руб./м²


70 м²

1/2 этажей

Код объекта

97938

Предложение доступно для субагентов, авторизуйтесь

Агентство Регионального Развития

+7 927 019-54-26

или оставьте ваш номер, и я перезвоню в течение 30 минут

Отправляя заявку вы соглашаетесь на обработку персональных данных

Похожие объявления

Посмотреть все похожие объявления
1/4
Код объекта: 261267.
Тип объекта: Складское помещение.
Площадь: 70 м².
Этаж / Этажность: 1 / 1.
1/8
Код объекта: 414624.
Тип объекта: Складское помещение.
Площадь: 20.4 м².
Этаж / Этажность: 1 / 1.
1/8
Код объекта: 416253.
Тип объекта: Складское помещение.
Площадь: 39.6 м².
Этаж / Этажность: 1 / 1.
1/4
Код объекта: 261267.
Тип объекта: Складское помещение.
Площадь: 70 м².
Этаж / Этажность: 1 / 1.
1/11
Код объекта: 401039.
Тип объекта: Складское помещение.
Площадь: 59.9 м².
Этаж / Этажность: 1 / 4.
1/16
Код объекта: 390201.
Тип объекта: Складское помещение.
Площадь: 63 м².
Этаж / Этажность: 1 / 2.
1/19
Код объекта: 425344.
Тип объекта: Складское помещение.
Площадь: 57.4 м².
Этаж / Этажность: 1 / 1.
1/10
Код объекта: 413402.
Тип объекта: Складское помещение.
Площадь: 50 м².
Этаж / Этажность: -1 / 4.
1/6
Код объекта: 262188.
Тип объекта: Земельный участок.
Площадь: 1200 м².
1/39
Код объекта: 260919.
Тип объекта: Отдельно стоящее здание.
Площадь: 1000 м².
Этаж / Этажность: -1 / 3.
1/26
Код объекта: 260839.
Тип объекта: Отдельно стоящее здание.
Площадь: 720 м².
Этаж / Этажность: 3 / 3.
1/12
Код объекта: 258320.
Тип объекта: Земельный участок.
Площадь: 600 м².
1/12
Код объекта: 239936.
Тип объекта: Помещение свободного назначения.
Площадь: 30 м².
Этаж / Этажность: -1 / 1.

Не хочу искать, перезвоните мне!

Оставьте номер телефона, наш специалист свяжется с вами и поможет с подбором недвижимости!