Продается недостроенная гостиница на федеральной автодороге на земле 1,5 Га

ул Новая, д. 11

18 000 000 руб.

?

$ 1 086

€ 979

3 600 руб./м²


5000

1/1 этажей

Код объекта

131312

Предложение доступно для субагентов, авторизуйтесь

Продается недостроенная гостиница на федеральной автодороге на земле 1,5 Га

Код объекта: 131312.
Тип объекта: Продажа бизнеса.
Площадь: 5000 .
Этаж / Этажность: 1 / 1.

Описание и характеристики

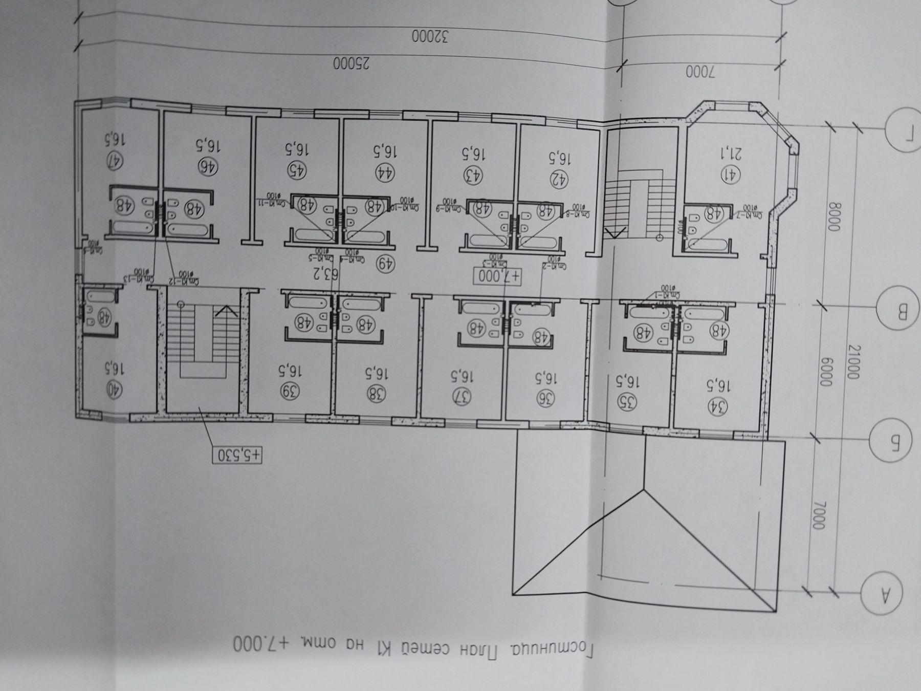
Продается недостроенная гостиница на федеральной автодороге Р 229 (Урал – Самара - Волгоград) на земле 0.5 Га по адресу: Самарская область, Волжский район, п. Зелененький, д.72 за 18 000 000 рублей
Земля – 0,5 Га (50 соток) в собственности.

Недостроенное здание с проектной документацией на 3 этажа общей площадью 1070 кв. м.
По проекту на 1-ом этаже кафе/столовая.
На втором и третьем этаже расположена гостиница на 32 номера.

Полный пакет документации на здание и землю. Без обременений.

Дорога федерального значения проходит в обход г. Самары, соединяет Урал, Самара, Саратов, Волгоград.
Автодорога Р-229 дублирует направление федеральной трассы - Р-228 Сызрань — Саратов — Волгоград — идущей по правому берегу Волги и также ведущей к границе с Казахстаном.
Объект находится у дороги рядом с населенным пунктом Зелененький.  

Очень большой трафик грузовых и легковых автомобилей.
В летнее время очень много автомобилей едут в сторону юга и обратно.

Разрешение на заезд с автомобильной дороги общего пользования федерального значения оформлено на федеральном уровне.
Есть разрешение Дорнадзора и Минтранса на примыкание объекта: заезд, полоса торможения и полоса разгона.
Все официально оформлено, узаконены знаки дорожного движения
Разрешения МВД, бордюры алюминиевые со световыми опорами, фонари.
Установлены опоры освещения по всей территории (в собственности).

В посëлке установлен ШРП (шкафной регуляторный пункт), заявка на подключение газа подана.

Своя электрическая подстанция на 400 кВт.
Коммуникации и электричество подведены.
Электричество подведено под землей в ПВХ трубе.

Также можно приобрести весь комплекс на территории 1,5 Га целиком.
Есть проектная документация на весь комплекс.

На территории располагаются:

Магазин автозапчастей
Магазин продукты

Действующий арендный бизнес;
Отдельно стоящее здание (душ, туалет)
Баня, летняя беседка с мангальной зоной
Платная круглосуточная стоянка на 120 машиномест.
Грузовой шиномонтаж с арендатором (оформлен)

Произведены подготовительные работы под АЗС.
Закопаны 2 емкости для пожарных нужд.
Залит фундамент под здание АЗС, подведены электричество и коммуникации.

Круглосуточная охрана
Видеонаблюдение по всему периметру
Охранная сигнализация

Роман Б
Помощь с оформлением ипотеки и покупки в лизинг.


Подписывайтесь на наш профиль, чтобы узнавать о новых локациях первыми!

Перейти в карточку объекта в CRM: 131312.

Агентство Регионального Развития

+7 927 019-54-26

или оставьте ваш номер, и я перезвоню в течение 30 минут

Отправляя заявку вы соглашаетесь на обработку персональных данных

18 000 000 руб.

?

$ 227 652

€ 195 785

3 600 руб./м²


5000

1/1 этажей

Код объекта

131312

Предложение доступно для субагентов, авторизуйтесь

Агентство Регионального Развития

+7 927 019-54-26

или оставьте ваш номер, и я перезвоню в течение 30 минут

Отправляя заявку вы соглашаетесь на обработку персональных данных

Похожие объявления

Посмотреть все похожие объявления
1/12
Код объекта: 401614.
Тип объекта: Продажа бизнеса.
Площадь: 390700 м².
Этаж / Этажность: 1 / 1.
1/56
Код объекта: 405027.
Тип объекта: Продажа бизнеса.
Площадь: 5000 .
Этаж / Этажность: 1 / 1.
1/56
Код объекта: 405027.
Тип объекта: Продажа бизнеса.
Площадь: 5000 .
Этаж / Этажность: 1 / 1.
1/7
Код объекта: 296164.
Тип объекта: Производственное помещение.
Площадь: 2112 м².
Этаж / Этажность: 1 / 1.
1/11
Код объекта: 316050.
Тип объекта: Земельный участок.
Площадь: 10000 м².
1/21
Код объекта: 314115.
Тип объекта: Офисное помещение.
Площадь: 51.3 м².
Этаж / Этажность: 2 / 5.
1/19
Код объекта: 304943.
Тип объекта: Помещение свободного назначения.
Площадь: 1000 м².
Этаж / Этажность: 1 / 1.
1/25
Код объекта: 278377.
Тип объекта: Офисное помещение.
Площадь: 20 м².
Этаж / Этажность: 2 / 3.

Не хочу искать, перезвоните мне!

Оставьте номер телефона, наш специалист свяжется с вами и поможет с подбором недвижимости!