Здание на 1 линии ул.Куйбышева

ул Куйбышева, д. 65

200 000 000 руб.

?

$ 1 086

€ 979

202 429 руб./м²


988 м²

1/2 этажей

Код объекта

110990

Предложение доступно для субагентов, авторизуйтесь

Здание на 1 линии ул.Куйбышева

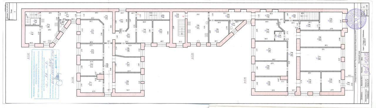
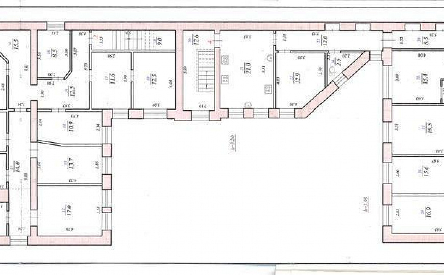
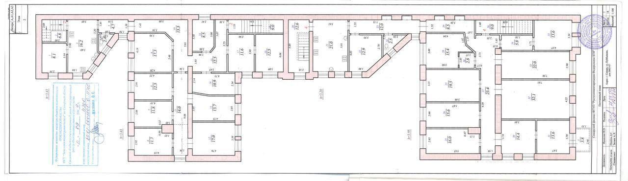
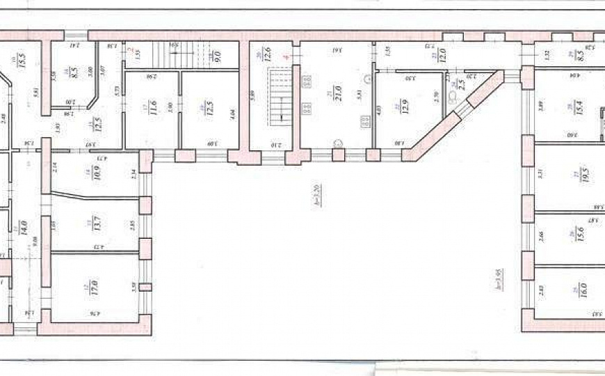
Код объекта: 110990.
Тип объекта: Отдельно стоящее здание.
Площадь: 988 м².
Этаж / Этажность: 1 / 2.

Описание и характеристики

От собственника! Без комиссии!

Продажа здания в историческом центре г.Самары на первой линии ул.Куйбышева, вблизи пл.Революции.

Характеристики:
- 1 линия
- Отдельная входная группа
- Своя парковка
- Доступ 24/7
- ХВС/ГВС
- Свой санузел
- Центральное отопление
- Есть кондиционер
- Хороший ремонт
- Кабинетная планировка
- Отдельно стоящее здание
- Без лифта
- Высота потолков 4 м
- Видеонаблюдение
- С окнами
- Инфраструктура: Кафе/столовые, Магазины, Банки

Дополнительная информация:
Здание признано памятником истории. Охранное предписание распространяется только на фасад здания.
Все центральные коммуникации.
Часть здания занимают арендаторы.
Наличие четырех входов, центральный вход с ул.Куйбышева.
Земельный участок 788 кв.м. оформлен в собственность, межевание проведено.
Два внутренних дворика с собственной парковкой.
Наличие теплового узла, эл.мощность 50 кВт.
Высокий автомобильный и пешеходный трафик в течение всего дня.

По всем вопросам можете обращаться к представителю собственника: Наталья Г. и Ирина Р.
Помощь с оформлением ипотеки и покупки в лизинг.


Подписывайтесь на наш профиль, чтобы узнавать о новых локациях первыми!

Перейти в карточку объекта в CRM: 110990.

Агентство Регионального Развития

+7 927 019-54-26

или оставьте ваш номер, и я перезвоню в течение 30 минут

Отправляя заявку вы соглашаетесь на обработку персональных данных

200 000 000 руб.

?

$ 2 567 908

€ 2 176 511

202 429 руб./м²


988 м²

1/2 этажей

Код объекта

110990

Предложение доступно для субагентов, авторизуйтесь

Агентство Регионального Развития

+7 927 019-54-26

или оставьте ваш номер, и я перезвоню в течение 30 минут

Отправляя заявку вы соглашаетесь на обработку персональных данных

Похожие объявления

Посмотреть все похожие объявления
1/56
Код объекта: 260535.
Тип объекта: Отдельно стоящее здание.
Площадь: 2398 м².
Этаж / Этажность: 1 / 3.
1/42
Код объекта: 336084.
Тип объекта: Отдельно стоящее здание.
Площадь: 1272.8 м².
Этаж / Этажность: 1 / 3.
1/4
Код объекта: 399665.
Тип объекта: Отдельно стоящее здание.
Площадь: 1960.7 м².
Этаж / Этажность: 3 / 3.
1/32
Код объекта: 377695.
Тип объекта: Отдельно стоящее здание.
Площадь: 5164.9 м².
Этаж / Этажность: 1 / 5.
1/50
Код объекта: 252453.
Тип объекта: Отдельно стоящее здание.
Площадь: 7841.6 м².
Этаж / Этажность: 1 / 4.
1/10
Код объекта: 230159.
Тип объекта: Отдельно стоящее здание.
Площадь: 700 м².
Этаж / Этажность: -1 / 2.
1/42
Код объекта: 336084.
Тип объекта: Отдельно стоящее здание.
Площадь: 1272.8 м².
Этаж / Этажность: 1 / 3.
1/28
Код объекта: 336086.
Тип объекта: Отдельно стоящее здание.
Площадь: 708.1 м².
Этаж / Этажность: 1 / 4.
1/13
Код объекта: 286433.
Тип объекта: Отдельно стоящее здание.
Площадь: 780 м².
Этаж / Этажность: 2 / 2.
1/81
Код объекта: 240131.
Тип объекта: Отдельно стоящее здание.
Площадь: 920 м².
Этаж / Этажность: 1 / 2.
1/7
Код объекта: 296164.
Тип объекта: Производственное помещение.
Площадь: 2112 м².
Этаж / Этажность: 1 / 1.
1/11
Код объекта: 316050.
Тип объекта: Земельный участок.
Площадь: 10000 м².
1/21
Код объекта: 314115.
Тип объекта: Офисное помещение.
Площадь: 51.3 м².
Этаж / Этажность: 2 / 5.
1/19
Код объекта: 304943.
Тип объекта: Помещение свободного назначения.
Площадь: 1000 м².
Этаж / Этажность: 1 / 1.
1/21
Код объекта: 282251.
Тип объекта: Складское помещение.
Площадь: 95600 м².
Этаж / Этажность: 1 / 1.

Не хочу искать, перезвоните мне!

Оставьте номер телефона, наш специалист свяжется с вами и поможет с подбором недвижимости!