Продам помещение свободного назначения, 1 042 м²

ул Литвинова, д. 302Б

75 000 000 руб.

?

$ 1 086

€ 979

71 977 руб./м²


1042 м²

1/2 этажей

Код объекта

107241

Предложение доступно для субагентов, авторизуйтесь

Продам Помещение свободного назначения, 1 042 м²

Код объекта: 107241.
Тип объекта: Помещение свободного назначения.
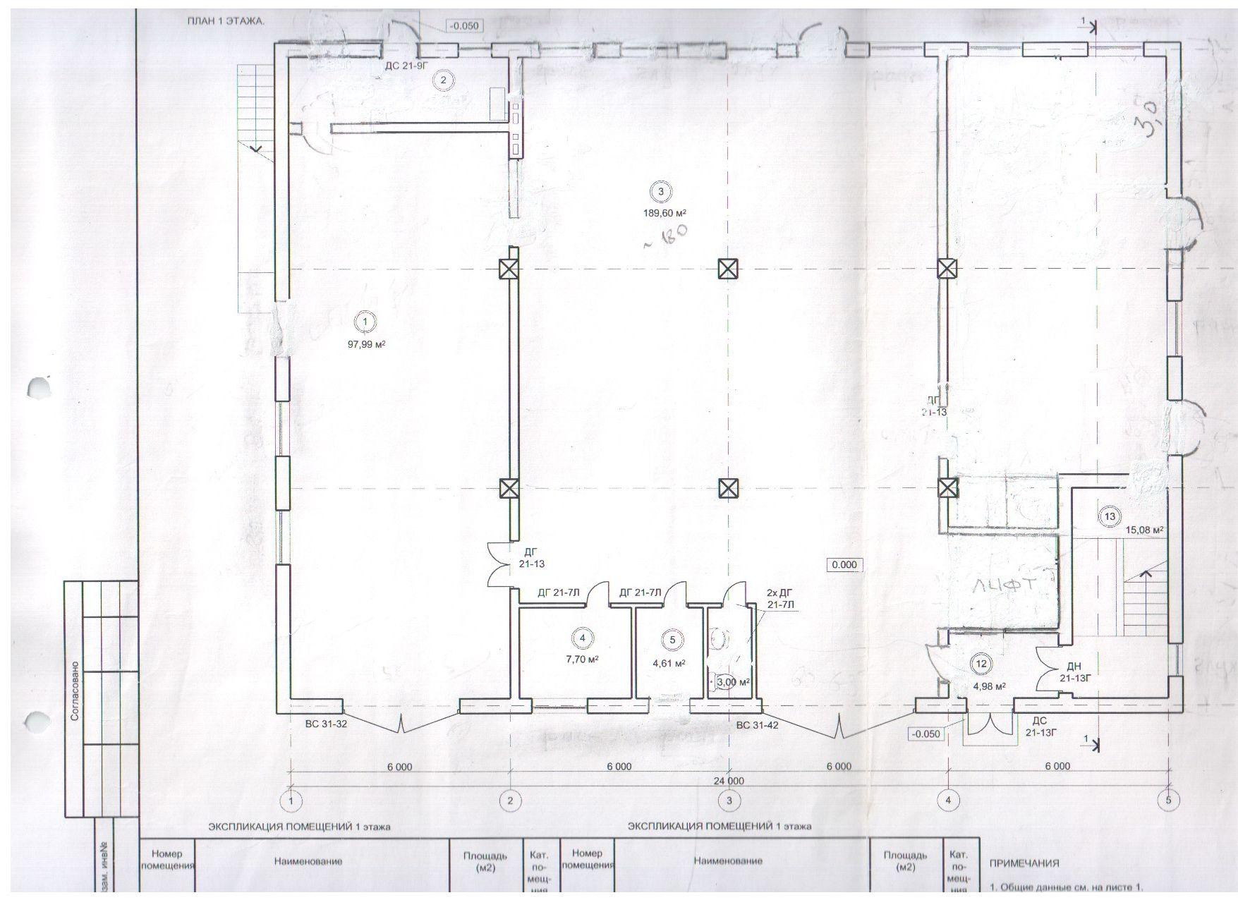
Площадь: 1042 м².
Этаж / Этажность: 1 / 2.

Описание и характеристики

Продаю помещение на 1 линии.

Продаю коммерческое помещение на первой линии.

Удобные подъездные пути.
Площадь здания 1042 м2
Спереди здания асфальтированная площадка.
Производственно-складское помещение
Состоит из 3 этажей.
Характеристики:
Новое здание построено  с помощью новейших технологий.
Окна теплые , 3 камерные известного производителя.
- Теплое помещение отапливается собственной газовой котельной.
- 2 этажное здание. С мансардной крышей.
- Доступ 24/7
- ХВС водоснабжение. Водонагреватель.
- Несколько санузлов
- Высота потолков 3,5 м
- Высота ворот 3 м.  ширина 4 метра.
- Лифтовая шахта есть.Проект предусматривает установку лифта.
- Подъемные ворота.
- Напольное покрытие: Антипыль, Плитка
- Предельная нагрузка 8 т /кв.м
- Максимальная мощность 15 кВт с возможностью увеличения при необходимости.
- Подъездные пути - Под грузовой транспорт
- Площадка рядом с помещением ,
- Вся земля на территории покрыта асфальтом.
- Место  во дворе для маневра транспорта
- Системы безопасности: Пожарная, Охранная, Видеонаблюдение

Александр А.
Помощь с оформлением ипотеки и покупки в лизинг.


Подписывайтесь на наш профиль, чтобы узнавать о новых локациях первыми!

Перейти в карточку объекта в CRM: 107241.

Агентство Регионального Развития

+7 927 019-54-26

или оставьте ваш номер, и я перезвоню в течение 30 минут

Отправляя заявку вы соглашаетесь на обработку персональных данных

75 000 000 руб.

?

$ 927 230

€ 803 129

71 977 руб./м²


1042 м²

1/2 этажей

Код объекта

107241

Предложение доступно для субагентов, авторизуйтесь

Агентство Регионального Развития

+7 927 019-54-26

или оставьте ваш номер, и я перезвоню в течение 30 минут

Отправляя заявку вы соглашаетесь на обработку персональных данных

Похожие объявления

Посмотреть все похожие объявления
1/33
Код объекта: 335003.
Тип объекта: Помещение свободного назначения.
Площадь: 1385 м².
Этаж / Этажность: 1 / 3.
1/55
Код объекта: 355078.
Тип объекта: Помещение свободного назначения.
Площадь: 943.9 м².
Этаж / Этажность: 1 / 9.
1/13
Код объекта: 236627.
Тип объекта: Помещение свободного назначения.
Площадь: 2270 м².
Этаж / Этажность: 1 / 3.
1/18
Код объекта: 242171.
Тип объекта: Помещение свободного назначения.
Площадь: 1696.1 м².
Этаж / Этажность: 2 / 13.
1/17
Код объекта: 230239.
Тип объекта: Помещение свободного назначения.
Площадь: 583.3 м².
Этаж / Этажность: 1 / 9.
1/1
Код объекта: 354843.
Тип объекта: Помещение свободного назначения.
Площадь: 927 м².
Этаж / Этажность: 1 / 4.
1/55
Код объекта: 355078.
Тип объекта: Помещение свободного назначения.
Площадь: 943.9 м².
Этаж / Этажность: 1 / 9.
1/19
Код объекта: 264943.
Тип объекта: Помещение свободного назначения.
Площадь: 895 м².
Этаж / Этажность: 1 / 1.
1/7
Код объекта: 233883.
Тип объекта: Помещение свободного назначения.
Площадь: 970 м².
Этаж / Этажность: 1 / 3.
1/8

34 000 000 руб.

37 778 руб./м²

Код объекта: 275167.
Тип объекта: Помещение свободного назначения.
Площадь: 900 м².
Этаж / Этажность: 1 / 1.
1/7
Код объекта: 296164.
Тип объекта: Производственное помещение.
Площадь: 2112 м².
Этаж / Этажность: 1 / 1.
1/7
Код объекта: 307612.
Тип объекта: Отдельно стоящее здание.
Площадь: 550 м².
Этаж / Этажность: 1 / 4.
1/18
Код объекта: 300972.
Тип объекта: Отдельно стоящее здание.
Площадь: 180 м².
Этаж / Этажность: 1 / 1.
1/11
Код объекта: 316050.
Тип объекта: Земельный участок.
Площадь: 10000 м².
1/21
Код объекта: 314115.
Тип объекта: Офисное помещение.
Площадь: 51.3 м².
Этаж / Этажность: 2 / 5.

Не хочу искать, перезвоните мне!

Оставьте номер телефона, наш специалист свяжется с вами и поможет с подбором недвижимости!