Здание, 552 м²

ул Никитинская, д. 60

45 000 000 руб.

?

$ 1 086

€ 979

81 522 руб./м²


552 м²

1/2 этажей

Код объекта

106574

Предложение доступно для субагентов, авторизуйтесь

Здание, 552 м²

Код объекта: 106574.
Тип объекта: Помещение свободного назначения.
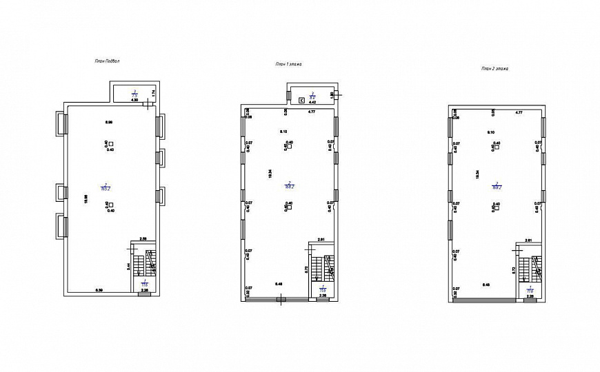
Площадь: 552 м².
Этаж / Этажность: 1 / 2.

Описание и характеристики

Продаётся отличное коммерческое здание свободного назначения, расположенное в самом сердце города — улица Никитинская!

Идеальное расположение: центр города, первая линия улицы, удобный вход с фасада здания.
Общая площадь: 552 кв.м. (два полноценных этажа плюс просторный цоколь).
Отличные технические характеристики:

- Черновые стены из качественного газобетона,
- высота потолков достигает 3,2 метров,
- панорамное витринное остекление обеспечивает максимальный световой поток,
- центральное водоснабжение и канализация,
- подключение газа и трёхфазного электричества  30 кВт с возможностью расширения мощности,
- действующая котельная позволяет самостоятельно регулировать отопление помещения.

Перед зданием предусмотрена удобная парковочная зона, гарантирующая комфорт клиентам и сотрудникам.

Прекрасная инфраструктура вокруг: хорошая доступность общественного транспорта, отличная видимость и рекламоносители на нескольких сторонах здания.

Потенциальные направления бизнеса:

- Торговый объект любого формата,
- Офисное пространство премиум-класса,
- Общепит высокой проходимости,
- Салон красоты или медицинский центр,
- Бизнес-центр или креативное пространство.

Возможность перевода помещения в нежилой фонд открывает дополнительные перспективы развития вашего бизнеса!
Для дополнительной информации обращайтесь прямо сейчас! Сделайте первый шаг навстречу своему успеху вместе с нами!
По просмотру звоните заранее, чтобы договориться об удобном времени и обеспечить доступ к помещению.
Сергей, Наталья

Помощь с оформлением ипотеки и покупки в лизинг.


Подписывайтесь на наш профиль, чтобы узнавать о новых локациях первыми!

Перейти в карточку объекта в CRM: 106574.

Агентство Регионального Развития

+7 927 019-54-26

или оставьте ваш номер, и я перезвоню в течение 30 минут

Отправляя заявку вы соглашаетесь на обработку персональных данных

45 000 000 руб.

?

$ 556 338

€ 481 877

81 522 руб./м²


552 м²

1/2 этажей

Код объекта

106574

Предложение доступно для субагентов, авторизуйтесь

Агентство Регионального Развития

+7 927 019-54-26

или оставьте ваш номер, и я перезвоню в течение 30 минут

Отправляя заявку вы соглашаетесь на обработку персональных данных

Похожие объявления

Посмотреть все похожие объявления
1/15
Код объекта: 259140.
Тип объекта: Помещение свободного назначения.
Площадь: 680 м².
Этаж / Этажность: 3 / 3.
1/9
Код объекта: 252799.
Тип объекта: Помещение свободного назначения.
Площадь: 250 м².
Этаж / Этажность: 1 / 2.
1/12
Код объекта: 256575.
Тип объекта: Помещение свободного назначения.
Площадь: 400 м².
Этаж / Этажность: -1 / 2.
1/33
Код объекта: 225007.
Тип объекта: Помещение свободного назначения.
Площадь: 440 м².
Этаж / Этажность: 1 / 3.
1/7
Код объекта: 233883.
Тип объекта: Помещение свободного назначения.
Площадь: 970 м².
Этаж / Этажность: 1 / 3.
1/19
Код объекта: 260306.
Тип объекта: Помещение свободного назначения.
Площадь: 500 м².
Этаж / Этажность: 1 / 1.
1/15
Код объекта: 259140.
Тип объекта: Помещение свободного назначения.
Площадь: 680 м².
Этаж / Этажность: 3 / 3.
1/12
Код объекта: 256575.
Тип объекта: Помещение свободного назначения.
Площадь: 400 м².
Этаж / Этажность: -1 / 2.
1/33
Код объекта: 281202.
Тип объекта: Помещение свободного назначения.
Площадь: 513 м².
Этаж / Этажность: -1 / 5.
1/21
Код объекта: 282281.
Тип объекта: Помещение свободного назначения.
Площадь: 700 м².
Этаж / Этажность: 1 / 2.
1/7
Код объекта: 296164.
Тип объекта: Производственное помещение.
Площадь: 2112 м².
Этаж / Этажность: 1 / 1.
1/7
Код объекта: 307612.
Тип объекта: Отдельно стоящее здание.
Площадь: 550 м².
Этаж / Этажность: 1 / 4.
1/18
Код объекта: 300972.
Тип объекта: Отдельно стоящее здание.
Площадь: 180 м².
Этаж / Этажность: 1 / 1.
1/11
Код объекта: 316050.
Тип объекта: Земельный участок.
Площадь: 10000 м².
1/21
Код объекта: 314115.
Тип объекта: Офисное помещение.
Площадь: 51.3 м².
Этаж / Этажность: 2 / 5.

Не хочу искать, перезвоните мне!

Оставьте номер телефона, наш специалист свяжется с вами и поможет с подбором недвижимости!