Торговая площадь в аренду

г Тольятти, б-р Приморский, д 43В

300 000 руб.

?

$ 1 086

€ 979

300 руб./м²


1000 м²

1/3 этажей

Код объекта

114439

Предложение доступно для субагентов, авторизуйтесь

Торговая площадь в аренду

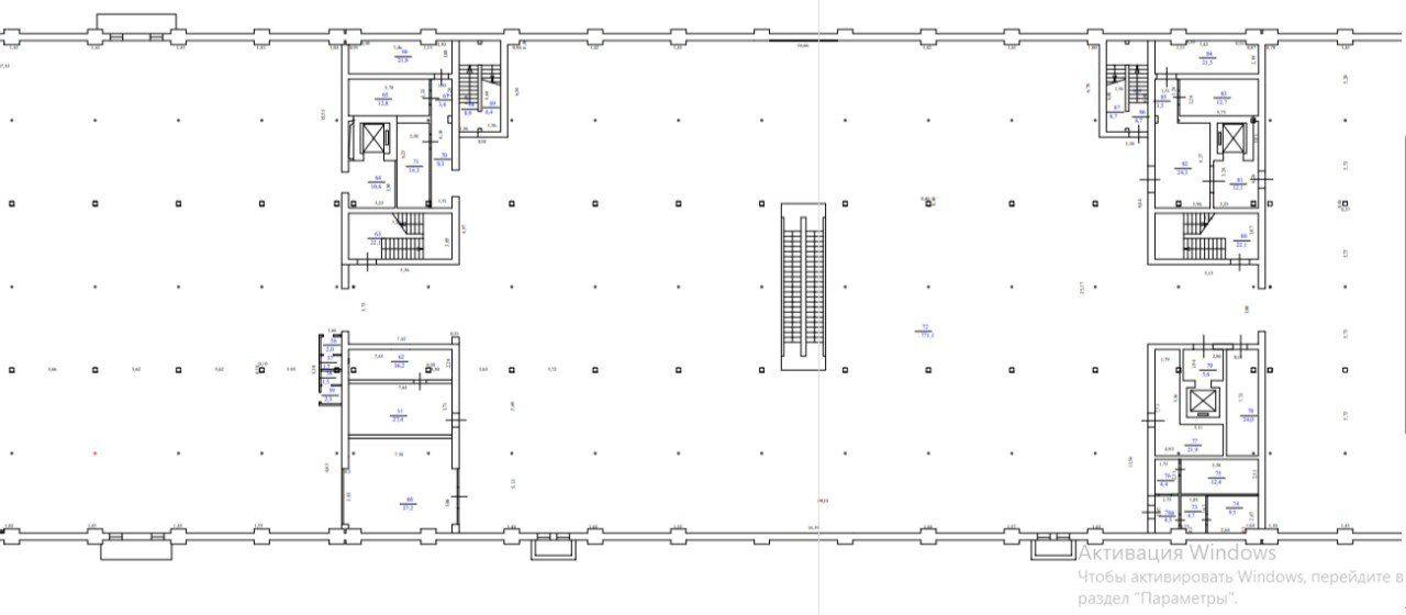
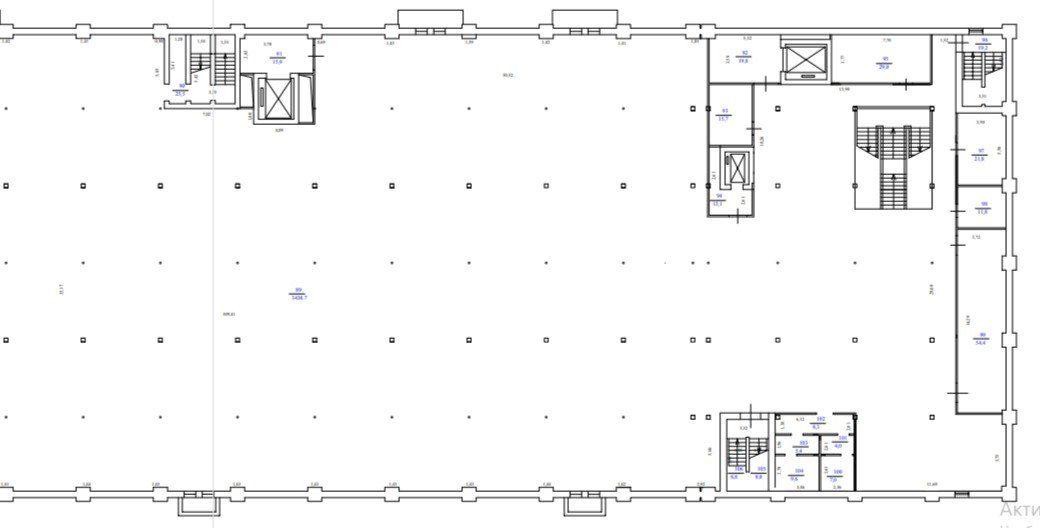
Код объекта: 114439.
Тип объекта: Отдельно стоящее здание.
Площадь: 1000 м².
Этаж / Этажность: 1 / 3.

Описание и характеристики

Помещения в аренду в Спортивном-деловом центре

Предлагаются к аренде современные коммерческие помещения в новом, динамично развивающемся торгово-деловом центре в Тольятти. Отличное место для открытия торговых точек, спортивных клубов или специализированных магазинов.

Преимущества и характеристики:

Разнообразие площадей: просторные помещения различной площади, идеально подходящие для магазинов, фитнес-центров, салонов красоты и других коммерческих объектов.
Современная инфраструктура: современные инженерные системы, хорошая вентиляция и освещение, видеонаблюдение, охрана и поддержание комфорта.
Удобное расположение: высокий пешеходный и автомобильный трафик, отличная транспортная доступность, парковочные места на территории.
Гибкие условия аренды: возможна долгосрочная аренда с discutией условий, адаптированных под ваш бизнес.
Просторные входы и витрины: обеспечивают привлекательный внешний вид и удобство для посетителей и клиентов.
Развитая инфраструктура: кафе, рестораны, услуги для посетителей, что создает комфортную среду для вашего бизнеса.
Подойдет для различных форматов: спортивных клубов, специализированных магазинов, салонов, фитнес-центров и других видов коммерческой деятельности.

Заинтересовались? Свяжитесь с нами для получения дополнительной информации и организации просмотра!

По всем вопросам можете обращаться к представителю собственника: Руслан К.

Перейти в карточку объекта в CRM: 114439.

Агентство Регионального Развития

+7 927 019-54-26

или оставьте ваш номер, и я перезвоню в течение 30 минут

Отправляя заявку вы соглашаетесь на обработку персональных данных

300 000 руб.

?

$ 4 011

€ 3 384

300 руб./м²


1000 м²

1/3 этажей

Код объекта

114439

Предложение доступно для субагентов, авторизуйтесь

Агентство Регионального Развития

+7 927 019-54-26

или оставьте ваш номер, и я перезвоню в течение 30 минут

Отправляя заявку вы соглашаетесь на обработку персональных данных

Похожие объявления

Посмотреть все похожие объявления
1/29
Код объекта: 424433.
Тип объекта: Отдельно стоящее здание.
Площадь: 650 м².
Этаж / Этажность: 1 / 1.
1/16
Код объекта: 224070.
Тип объекта: Отдельно стоящее здание.
Площадь: 872.8 м².
Этаж / Этажность: 1 / 2.
1/51
Код объекта: 390190.
Тип объекта: Отдельно стоящее здание.
Площадь: 581.2 м².
Этаж / Этажность: 1 / 3.
1/28
Код объекта: 334960.
Тип объекта: Отдельно стоящее здание.
Площадь: 2036 м².
Этаж / Этажность: 1 / 2.
1/15
Код объекта: 350595.
Тип объекта: Отдельно стоящее здание.
Площадь: 300 м².
Этаж / Этажность: 1 / 2.
1/16
Код объекта: 224070.
Тип объекта: Отдельно стоящее здание.
Площадь: 872.8 м².
Этаж / Этажность: 1 / 2.
1/24
Код объекта: 373143.
Тип объекта: Отдельно стоящее здание.
Площадь: 1020.1 м².
Этаж / Этажность: 1 / 3.
1/20
Код объекта: 338511.
Тип объекта: Отдельно стоящее здание.
Площадь: 1000 м².
Этаж / Этажность: 1 / 1.
1/10
Код объекта: 382240.
Тип объекта: Отдельно стоящее здание.
Площадь: 779 м².
Этаж / Этажность: 1 / 1.
1/15
Код объекта: 260627.
Тип объекта: Отдельно стоящее здание.
Площадь: 1207.47 м².
Этаж / Этажность: 1 / 2.
1/21
Код объекта: 211699.
Тип объекта: Отдельно стоящее здание.
Площадь: 5500 м².
Этаж / Этажность: 1 / 3.
1/34
Код объекта: 300570.
Тип объекта: Отдельно стоящее здание.
Площадь: 3600 м².
Этаж / Этажность: 1 / 2.
1/39
1/7
Код объекта: 335251.
Тип объекта: Производственное помещение.
Площадь: 3500 м².
Этаж / Этажность: 1 / 1.
1/10
Код объекта: 278866.
Тип объекта: Земельный участок.
Площадь: 996 м².

Не хочу искать, перезвоните мне!

Оставьте номер телефона, наш специалист свяжется с вами и поможет с подбором недвижимости!