Помещение свободного назначения, ГАБ 132 м²

пер Второй Безымянный, д. 4А

4 500 000 руб.

?

$ 1 086

€ 979

34 091 руб./м²


132 м²

-1/5 этажей

Код объекта

118370

Предложение доступно для субагентов, авторизуйтесь

Помещение свободного назначения, ГАБ 132 м²

Код объекта: 118370.
Тип объекта: Готовый арендный бизнес.
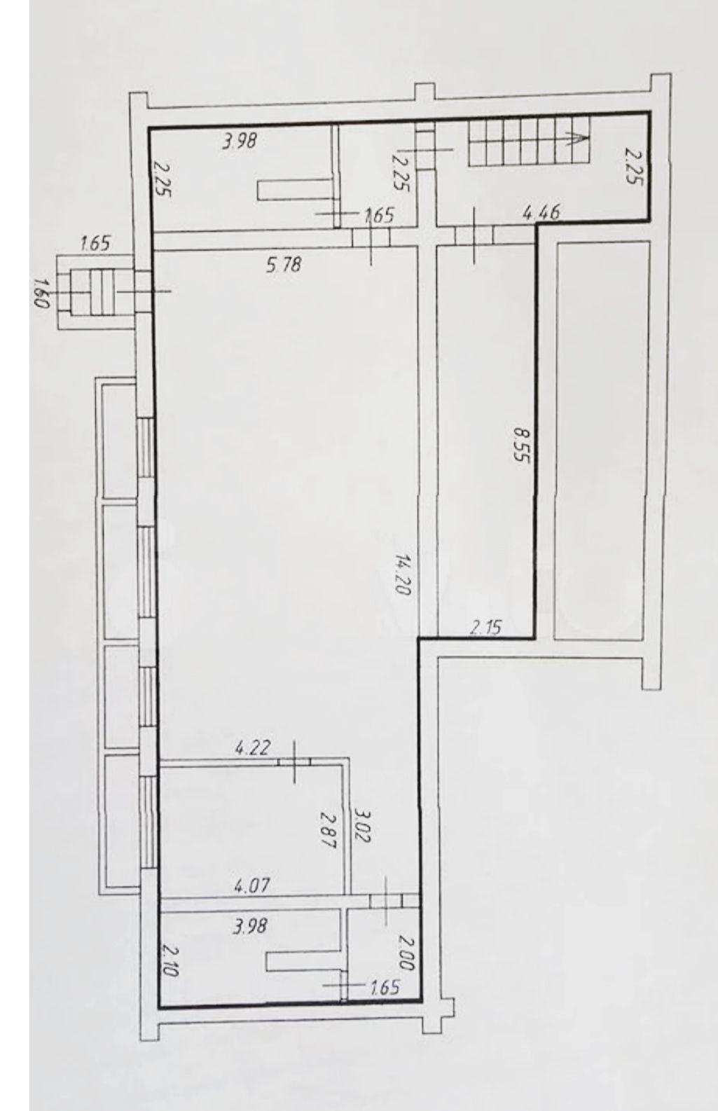
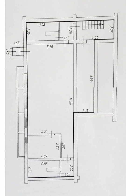
Площадь: 132 м².
Этаж / Этажность: -1 / 5.
Месячный арендный поток (МАП): 45000 руб.
Окупаемость: 8.3 лет
Доходность: 12 %

Описание и характеристики

Стоимость объекта: 4 500 000 руб.
Месячный арендный поток (МАП): 45 000 руб.
Окупаемость: 8.3 лет
Доходность: 12 %
Характеристики:

- Отдельная входная группа
- Общая парковка
- Доступ 24/7
- ХВС/ГВС
- Свой санузел
- Центральное отопление
- Открытая планировка
- Жилой дом
- Высота потолков 2.6 м
- Без мебели
- С окнами

Дополнительная информация:
Помещение 130 м2. Офисная часть 93м2. Склад 20м2.
Выделенная мощность 10 кВт 380.
Мокрая точка С/У. Отдельный вход с улицы  и дополнительно со стороны двора.
Пол керамогранит. Потолок, стены покраска.
Сдано в аренду, месячная арендная плата 45 000 р.
Хорошая транспортная доступность

По всем вопросам можете обращаться к представителю собственника: Роман Б.
Помощь с оформлением ипотеки и покупки в лизинг.


Подписывайтесь на наш профиль, чтобы узнавать о новых локациях первыми!

Перейти в карточку объекта в CRM: 118370.

Агентство Регионального Развития

+7 927 019-54-26

или оставьте ваш номер, и я перезвоню в течение 30 минут

Отправляя заявку вы соглашаетесь на обработку персональных данных

4 500 000 руб.

?

$ 55 110

€ 47 491

34 091 руб./м²


132 м²

-1/5 этажей

Код объекта

118370

Предложение доступно для субагентов, авторизуйтесь

Агентство Регионального Развития

+7 927 019-54-26

или оставьте ваш номер, и я перезвоню в течение 30 минут

Отправляя заявку вы соглашаетесь на обработку персональных данных

Похожие объявления

Посмотреть все похожие объявления
1/17
Код объекта: 224452.
Тип объекта: Готовый арендный бизнес.
Площадь: 50 м².
Этаж / Этажность: -1 / 3.
1/19
Код объекта: 272161.
Тип объекта: Готовый арендный бизнес.
Площадь: 48.7 м².
Этаж / Этажность: 2 / 2.
1/9
Код объекта: 297680.
Тип объекта: Готовый арендный бизнес.
Площадь: 27.5 м².
Этаж / Этажность: 3 / 4.
1/5
Код объекта: 270514.
Тип объекта: Готовый арендный бизнес.
Площадь: 66 м².
Этаж / Этажность: 1 / 1.
1/17
Код объекта: 377629.
Тип объекта: Готовый арендный бизнес.
Площадь: 36.2 м².
Этаж / Этажность: 1 / 2.
1/19
Код объекта: 306534.
Тип объекта: Готовый арендный бизнес.
Площадь: 112 м².
Этаж / Этажность: 2 / 2.
1/31
Код объекта: 254629.
Тип объекта: Готовый арендный бизнес.
Площадь: 162.4 м².
Этаж / Этажность: 1 / 1.
1/18
Код объекта: 338047.
Тип объекта: Готовый арендный бизнес.
Площадь: 135 м².
Этаж / Этажность: -1 / 10.
1/23
Код объекта: 294248.
Тип объекта: Готовый арендный бизнес.
Площадь: 101 м².
Этаж / Этажность: 1 / 5.
1/29
Код объекта: 371316.
Тип объекта: Готовый арендный бизнес.
Площадь: 136 м².
Этаж / Этажность: -1 / 5.
1/7
Код объекта: 296164.
Тип объекта: Производственное помещение.
Площадь: 2112 м².
Этаж / Этажность: 1 / 1.
1/26
Код объекта: 307426.
Тип объекта: Бизнес-центр/офисный центр.
Площадь: 210 м².
Этаж / Этажность: 4 / 4.
1/7
Код объекта: 307612.
Тип объекта: Отдельно стоящее здание.
Площадь: 550 м².
Этаж / Этажность: 1 / 4.
1/16
Код объекта: 308193.
Тип объекта: Земельный участок.
Площадь: 2000 м².
1/18
Код объекта: 300972.
Тип объекта: Отдельно стоящее здание.
Площадь: 180 м².
Этаж / Этажность: 1 / 1.

Не хочу искать, перезвоните мне!

Оставьте номер телефона, наш специалист свяжется с вами и поможет с подбором недвижимости!